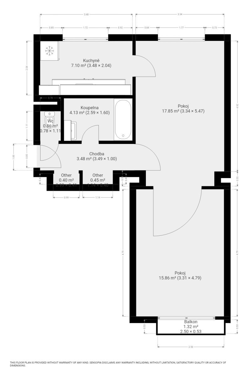
K dlouhodobému podnájmu nabízíme kompletně zrekonstruovaný byt o dispozici 2+1 v atraktivní lokalitě Brno-střed na ulici Bakalovo nábřeží. Byt o celkové výměře 55 m² se nachází v 5. podlaží cihlového domu s výtahem. Součástí podnájmu je také sklepní kóje a balkon orientovaný do klidného vnitrobloku.
Byt prošel pečlivou a moderní rekonstrukcí. Kuchyně je vybavena veškerými spotřebiči včetně lednice, myčky, elektrické trouby, varné desky, mikrovlnné trouby a digestoře. Při vaření vás navíc potěší krásný výhled na dvě hlavní brněnské dominanty – katedrálu Petrov a hrad Špilberk.
V koupelně se nachází vana i prostorný sprchový kout. Samozřejmostí je přípojka na pračku. Toaleta je samostatná, což přispívá k vyššímu komfortu bydlení. Ostatní místnosti jsou nezařízené, takže si je můžete vybavit podle vlastního vkusu a potřeb. Z jedné z nich je vstup na balkon.
Byt se nachází v lokalitě s výbornou občanskou vybaveností. V blízkosti najdete supermarkety Billa a Lidl, restaurace, kavárny, základní a mateřské školy, nemocnici Milosrdných bratří, lékárny i další služby. Dopravní dostupnost je výborná díky blízkým zastávkám MHD Vojtova, Křídlovická a Nemocnice Milosrdných bratří, odkud se snadno dostanete do všech částí Brna.
Přímo před domem se rozprostírá brněnská Náplavka, která nabízí příjemné místo pro odpočinek i procházky podél řeky.
Majitel preferuje zájemce bez domácích mazlíčků. Trvalý pobyt je možný po dohodě. Byt bude volný od 1. 6. a připraven k nastěhování.
Byt pronajímá Ideální nájemce – služba, se kterou budete bydlet bezstarostně a za férových podmínek. V případě potřeby vám pomůžeme s administrativou, nastavením plateb i řešením provozních záležitostí. Součástí je také speciální pojištění, které přispívá k bezstarostnému bydlení.
Cena:
24 000 Kč / (za měsíc)
Poznámka:
vratná jistota, 5 000 Kč náklady na bydlení, poplatek za podnájem
Uživatel serveru RealityMIX.cz (dále jen „Server“) dostupného na internetové adrese (URL) https://www.realitymix.cz, který provozuje společnost DALTEN media s.r.o., se sídlem Na Harfě 916/9a, Praha 9, 190 00, IČO: 271 35 306 (dále jen „Správce“) jako provozovateli tohoto Serveru uděluje svůj výslovný souhlas v souladu s ustanovením § 5 zákona č. 101/2000 Sb. O ochraně osobních údajů a o změně některých zákonů, v platném znění (dále jen „zákon o ochraně osobních údajů“), se zpracováním uživatelem poskytnutých osobních údajů a dalších dat.
Uživatel poskytuje Správci osobní údaje v rozsahu: jméno, příjmení, e-mailová adresa, telefonický kontakt a další data, a to z důvodu projeveného zájmu o nemovitost, kde prostřednictvím služby Serveru Správce osloví Uživatel inzerenta uvedeného v detailu
nemovitosti - Ideální nájemce (IČ 29300631) se zájmem o jeho služby.
Uživatel tyto osobní údaje poskytuje dobrovolně a bere na vědomí, že součástí služeb Správce, které Správce Uživateli poskytuje, je vyhledání všech Uživateli vyhovujících (dle parametrů - cena, typ nemovitosti, lokalita atd.) nemovitostí. Správce za tímto účelem provozuje aplikace Hlídací pes a newsletter. Tyto služby je možné z každého zaslaného emailu odhlásit. Souhlas se zpracováním osobních údajů Uživatel poskytuje Správci na dobu neurčitou s tím, že svůj udělený souhlas může Uživatel kdykoliv na drese správce info@realitymix.cz odvolat. Správce garantuje Uživateli i další práva uvedené v ustanovení §11 a §21 zákoba č. 101/200 Sb. Ve znění pozdějších předpisů.
Více informací o zpracování údajů získáte zde (realitymix.cz/zasady-ochrany-osobnich-udaju)