Nabízíme k pronájmu luxusní obchodní prostory v samém centru Brna, přímo na frekventované části náměstí Svobody.
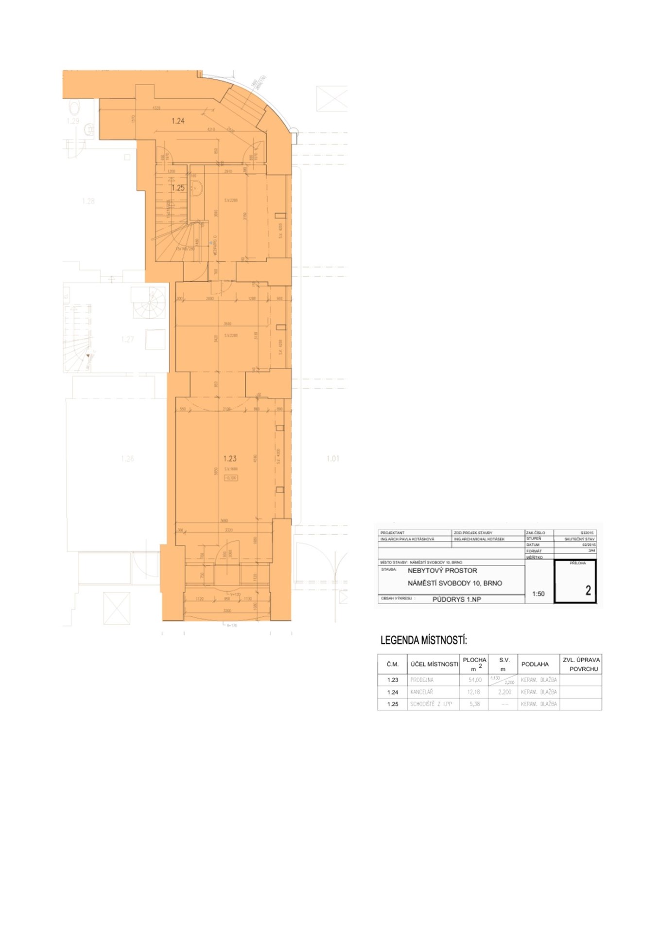
Jedná se o prodejnu o celkové výměře cca 120m2, která se skládá z prodejní plochy v přízemí o výměře cca 72m2, z obchodní galerie o výměře cca 37m2 (další prodejní plocha) a zázemí včetně skladu a toalety v suterénu o výměře cca 10m2. Veškeré prostory jsou propojené. Prostory jsou po rekonstrukci.
Prodejna se nachází ve známém domě u Čtyř Mamlasů a disponuje velkou výlohu se vstupem přímo na náměstí Svobody, tři výlohy směřují do průchodu do známé Alfa pasáže a jsou taktéž viditelné přímo u náměstí. Prostor je vhodný ke zřízení vesměs jakékoliv lukrativní prodejny, sídla firmy, či kavárny apod. Díky známosti domu a výborné polohy je zaručena vysoká fluktuace zákazníků.
Komerční prostor je možné propojit s vedlejším prostorem o výměře cca 290m2, směr do Alfa pasáže a tak v případě zájmu pronajímaný prostor zvětšit až na cca 410m2 v přízemí a suterénu. Možnost zřízení zahrádky ve vnitrobloku i do ulice.
Pronajímatel disponuje stavebním povolením na rekonstrukci gastro provozu a hledá lukrativního nájemníka na dlouhodobou spolupráci, se kterým by vytvořil významný gastro provoz.
V případě dotazů či zájmu o prohlídku se na nás neváhejte obrátit, jsme tu pro Vás.
Uživatel serveru RealityMIX.cz (dále jen „Server“) dostupného na internetové adrese (URL) https://www.realitymix.cz, který provozuje společnost DALTEN media s.r.o., se sídlem Na Harfě 916/9a, Praha 9, 190 00, IČO: 271 35 306 (dále jen „Správce“) jako provozovateli tohoto Serveru uděluje svůj výslovný souhlas v souladu s ustanovením § 5 zákona č. 101/2000 Sb. O ochraně osobních údajů a o změně některých zákonů, v platném znění (dále jen „zákon o ochraně osobních údajů“), se zpracováním uživatelem poskytnutých osobních údajů a dalších dat.
Uživatel poskytuje Správci osobní údaje v rozsahu: jméno, příjmení, e-mailová adresa, telefonický kontakt a další data, a to z důvodu projeveného zájmu o nemovitost, kde prostřednictvím služby Serveru Správce osloví Uživatel inzerenta uvedeného v detailu
nemovitosti - Icbreality s.r.o. (IČ 02710943) se zájmem o jeho služby.
Uživatel tyto osobní údaje poskytuje dobrovolně a bere na vědomí, že součástí služeb Správce, které Správce Uživateli poskytuje, je vyhledání všech Uživateli vyhovujících (dle parametrů - cena, typ nemovitosti, lokalita atd.) nemovitostí. Správce za tímto účelem provozuje aplikace Hlídací pes a newsletter. Tyto služby je možné z každého zaslaného emailu odhlásit. Souhlas se zpracováním osobních údajů Uživatel poskytuje Správci na dobu neurčitou s tím, že svůj udělený souhlas může Uživatel kdykoliv na drese správce info@realitymix.cz odvolat. Správce garantuje Uživateli i další práva uvedené v ustanovení §11 a §21 zákoba č. 101/200 Sb. Ve znění pozdějších předpisů.
Více informací o zpracování údajů získáte zde (realitymix.cz/zasady-ochrany-osobnich-udaju)