Pronájem novostavby bytu 1+kk s balkonem a sklepem, Brno ul. Křepelčí
Ve výhradním zastoupení majitele nabízíme nájem bytu 1+kk s balkonem a sklepem ve velmi žádané lokalitě výstavba Kamechy II. na ulici Křepelčí v městské části Žebětín. Jedná se o novostavbu bytového domu, jehož kolaudace proběhla 7/2024. Byt je situovaný ve 3.NP, bezbariérový přístup. Celková plocha bytu včetně balkonu a sklepa činí 38,7 m2. Orientace JV.
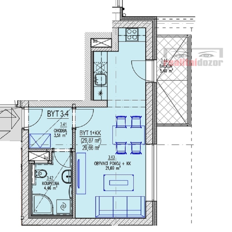
Dispozice: chodba 3,51 m2, kuchyně s pokojem 21,69 m2 a balkonem 5,4 m2, koupelna a WC 4,46 m2. Součástí bytu je sklep o výměře 3,45 m2 ve 2.PP domu.
Byt se nabízí nezařízený nábytkem: pouze nová kuchyňská linka + sklokeramická varná deska, vestavěná trouba, digestoř, lednice. V koupelně sprchový kout, umyvadlo se zrcadlem a nachystaný odpad pro automatickou pračku. Orientace bytu východ.
V koupelně s WC je keramický obklad, na podlaze dlažba, v předsíni dlažba. V Obytné místnosti plovoucí podlaha. Okna plastová, dodavatel dálkového přívodu tepla a ohřevu vody Brněnské teplárny.
Byt je vhodný pro max. 1-2 osoby, studenty, pracující. Domácí zvířata dle dohody. K nastěhování od 1.4.2026
Měsíční nájemné činí 13.800,- Kč + zálohy na služby 2100,- Kč + elektřina 1.000,- Kč nahlášená přímo na nájemníka.
Internet (Vodafone nebo Netbox) a TV nahlášen přímo na nájemníka.
Majitel požaduje 1 vratnou kauci 15900,- Kč.
Provize RK 13800,- Kč.
Prohlídky dle domluvy již nyní.
Dům se nachází v klidné lokalitě s přírodou na dosah a dostupností do centra Brna – MHD, tak přístup na D1. Lokalita je klidná, s přírodou na dosah a výbornou dostupností do centra Brna – MHD i napojením na D1. V okolí se nachází školky, sportoviště, velkoobchod Albert a restaurace Kam jinam. K Brněnské přehradě je to přibližně 20 minut pěšky a k Žebětínskému rybníku asi 5 minut.
Těšíme se na setkání při prohlídkách.
Cena:
13 800 Kč / (za měsíc)
Poznámka:
+ 2100 zálohy na služby + 1000 Kč elektřina
Dispozice/podlahová plocha:
1+kk/38 m²
Číslo zakázky:
REALITYMIX-2025005
Podrobné informace
Dispozice bytu:1+kk
Číslo podlaží v domě:3
Počet podlaží objektu:5
Užitná plocha:38 m²
Celková podlahová plocha:38 m²
Druh objektu:cihlová
Stav objektu:novostavba
Vlastnictví:osobní
Umístění objektu:sídliště
Elektřina:Elektro - 230 V
Voda:Voda - dálkový vodovod
Topení:Ústřední - dálkové
Odpad:Kanalizace
Energetická náročnost budovy:B - Velmi úsporná
Energetický ukazatel podle vyhlášky:č. 264/2020 Sb.
Uživatel serveru RealityMIX.cz (dále jen „Server“) dostupného na internetové adrese (URL) https://www.realitymix.cz, který provozuje společnost DALTEN media s.r.o., se sídlem Na Harfě 916/9a, Praha 9, 190 00, IČO: 271 35 306 (dále jen „Správce“) jako provozovateli tohoto Serveru uděluje svůj výslovný souhlas v souladu s ustanovením § 5 zákona č. 101/2000 Sb. O ochraně osobních údajů a o změně některých zákonů, v platném znění (dále jen „zákon o ochraně osobních údajů“), se zpracováním uživatelem poskytnutých osobních údajů a dalších dat.
Uživatel poskytuje Správci osobní údaje v rozsahu: jméno, příjmení, e-mailová adresa, telefonický kontakt a další data, a to z důvodu projeveného zájmu o nemovitost, kde prostřednictvím služby Serveru Správce osloví Uživatel inzerenta uvedeného v detailu
nemovitosti - REALITNÍ DOZOR, s.r.o. (IČ 29373654) se zájmem o jeho služby.
Uživatel tyto osobní údaje poskytuje dobrovolně a bere na vědomí, že součástí služeb Správce, které Správce Uživateli poskytuje, je vyhledání všech Uživateli vyhovujících (dle parametrů - cena, typ nemovitosti, lokalita atd.) nemovitostí. Správce za tímto účelem provozuje aplikace Hlídací pes a newsletter. Tyto služby je možné z každého zaslaného emailu odhlásit. Souhlas se zpracováním osobních údajů Uživatel poskytuje Správci na dobu neurčitou s tím, že svůj udělený souhlas může Uživatel kdykoliv na drese správce info@realitymix.cz odvolat. Správce garantuje Uživateli i další práva uvedené v ustanovení §11 a §21 zákoba č. 101/200 Sb. Ve znění pozdějších předpisů.
Více informací o zpracování údajů získáte zde (realitymix.cz/zasady-ochrany-osobnich-udaju)