Pronájem obchodního prostoru na ulici Horova v Brně
Nabízíme místo pro drobné podnikání. Pronájem samostatného obchodního prostoru v Brně-Žabovřeskách, nedaleko od tramvajové zastávky na ulici Horova.
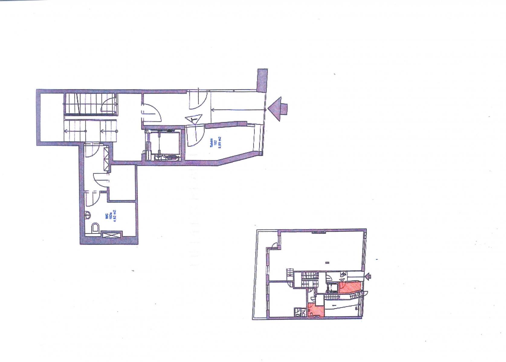
Hlavní obchodní plocha o velikosti 5,3m2, hliníkové výklady (výška cca 2,2 m) zahrnují praktické obslužné okénko do ulice, které umožňuje rychlý prodej bez nutnosti vstupu zákazníků, dveře jsou otevíratelné ven. Na podlaze je položena dlažba, podlahové topení, klimatizace, svítidla, zásuvky. Druhá samostatná místnost o velikosti 5,4 m, která může sloužit jako zázemí, WC, umyvadlo a malý sklad.
Záloha na služby: 649,- Kč/měsíc, měřidlo el. energie bude přepsáno přímo na nájemce. Kauce ve výši 13.000,-Kč. Provize RK ve výši jednoho měsíčního nájmu + DPH.
Vhodné pro pultový prodej, prezentaci zboží, káva sebou,
Uživatel serveru RealityMIX.cz (dále jen „Server“) dostupného na internetové adrese (URL) https://www.realitymix.cz, který provozuje společnost DALTEN media s.r.o., se sídlem Na Harfě 916/9a, Praha 9, 190 00, IČO: 271 35 306 (dále jen „Správce“) jako provozovateli tohoto Serveru uděluje svůj výslovný souhlas v souladu s ustanovením § 5 zákona č. 101/2000 Sb. O ochraně osobních údajů a o změně některých zákonů, v platném znění (dále jen „zákon o ochraně osobních údajů“), se zpracováním uživatelem poskytnutých osobních údajů a dalších dat.
Uživatel poskytuje Správci osobní údaje v rozsahu: jméno, příjmení, e-mailová adresa, telefonický kontakt a další data, a to z důvodu projeveného zájmu o nemovitost, kde prostřednictvím služby Serveru Správce osloví Uživatel inzerenta uvedeného v detailu
nemovitosti - FIEDLER REALITY s.r.o. (IČ 25557441) se zájmem o jeho služby.
Uživatel tyto osobní údaje poskytuje dobrovolně a bere na vědomí, že součástí služeb Správce, které Správce Uživateli poskytuje, je vyhledání všech Uživateli vyhovujících (dle parametrů - cena, typ nemovitosti, lokalita atd.) nemovitostí. Správce za tímto účelem provozuje aplikace Hlídací pes a newsletter. Tyto služby je možné z každého zaslaného emailu odhlásit. Souhlas se zpracováním osobních údajů Uživatel poskytuje Správci na dobu neurčitou s tím, že svůj udělený souhlas může Uživatel kdykoliv na drese správce info@realitymix.cz odvolat. Správce garantuje Uživateli i další práva uvedené v ustanovení §11 a §21 zákoba č. 101/200 Sb. Ve znění pozdějších předpisů.
Více informací o zpracování údajů získáte zde (realitymix.cz/zasady-ochrany-osobnich-udaju)