Světlý byt 3+kk, 60 m² s balkónem – prodej podílu, ideální k rekonstrukci podle vlastních představ
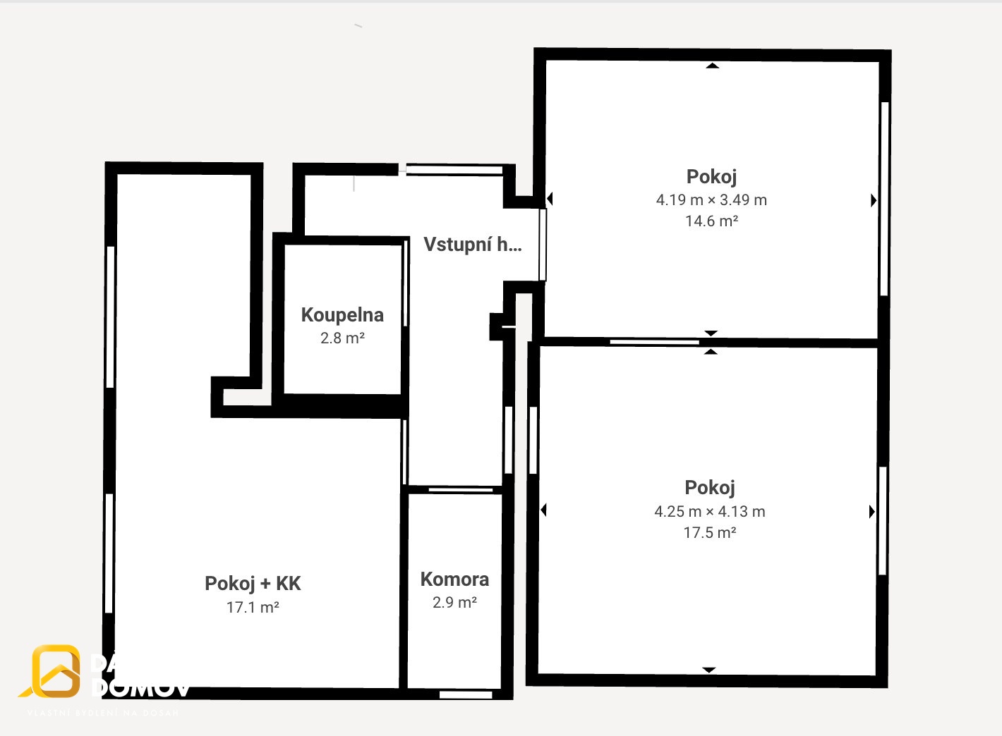
Nabízíme ke koupi podíl na světlém bytě o dispozici 3+kk a ploše 60 m² s balkónem, situovaném v 1. patře menšího bytového domu se čtyřmi bytovými jednotkami. Byt je v původním, udržovaném stavu a představuje ideální příležitost pro ty, kteří si chtějí vytvořit bydlení přesně podle svých představ – nemovitost je určena ke kompletní rekonstrukci.
Součástí prodeje jsou také dva prostorné sklepy, které poskytují dostatek úložného prostoru. K bytu náleží možnost parkování pro dvě vozidla přímo před domem, což zajišťuje pohodlné a bezproblémové parkování i pro vícečlennou domácnost.
V současnosti je byt vytápěn krbovými kamny. Do bytu je však zaveden plyn a k dispozici je i původní plynový kotel, který je možné po revizi znovu zprovoznit dle preferencí nového majitele.
Dům se nachází v klidné části obce na jejím okraji, v prostředí s dostatkem zeleně a minimálním provozem. Součástí užívání je také zahrádka, která nabízí příjemné posezení, relaxaci nebo prostor pro pěstování.
Tato nemovitost představuje zajímavou příležitost jak pro vlastní bydlení, tak i jako investici. Je vhodná pro rodinu, pár či jednotlivce, kteří hledají klidné bydlení s možností rekonstrukce a úprav dle vlastního vkusu.
Pro více informací nebo domluvení prohlídky mě neváhejte kontaktovat.
Pomocí naší hypoteční kalkulačky si můžete udělat orientační představu o výši měsíčních splátek hypotéky. O vše ostatní se pak postaráme my ve spolupráci s našimi obchodními partnery.
8 097 Kč
* Odhadovaná měsíční splátka vychází z výše úvěru Kč s pevnou úrokovou sazbou % po celou dobu trvání úvěru.
Prodáváte nemovitost a potřebujete zjistit její reálnou hodnotu?
Uživatel serveru RealityMIX.cz (dále jen „Server“) dostupného na internetové adrese (URL) https://www.realitymix.cz, který provozuje společnost DALTEN media s.r.o., se sídlem Na Harfě 916/9a, Praha 9, 190 00, IČO: 271 35 306 (dále jen „Správce“) jako provozovateli tohoto Serveru uděluje svůj výslovný souhlas v souladu s ustanovením § 5 zákona č. 101/2000 Sb. O ochraně osobních údajů a o změně některých zákonů, v platném znění (dále jen „zákon o ochraně osobních údajů“), se zpracováním uživatelem poskytnutých osobních údajů a dalších dat.
Uživatel poskytuje Správci osobní údaje v rozsahu: jméno, příjmení, e-mailová adresa, telefonický kontakt a další data, a to z důvodu projeveného zájmu o nemovitost, kde prostřednictvím služby Serveru Správce osloví Uživatel inzerenta uvedeného v detailu
nemovitosti - Dáme domov s.r.o. (IČ 19369859) se zájmem o jeho služby.
Uživatel tyto osobní údaje poskytuje dobrovolně a bere na vědomí, že součástí služeb Správce, které Správce Uživateli poskytuje, je vyhledání všech Uživateli vyhovujících (dle parametrů - cena, typ nemovitosti, lokalita atd.) nemovitostí. Správce za tímto účelem provozuje aplikace Hlídací pes a newsletter. Tyto služby je možné z každého zaslaného emailu odhlásit. Souhlas se zpracováním osobních údajů Uživatel poskytuje Správci na dobu neurčitou s tím, že svůj udělený souhlas může Uživatel kdykoliv na drese správce info@realitymix.cz odvolat. Správce garantuje Uživateli i další práva uvedené v ustanovení §11 a §21 zákoba č. 101/200 Sb. Ve znění pozdějších předpisů.
Více informací o zpracování údajů získáte zde (realitymix.cz/zasady-ochrany-osobnich-udaju)