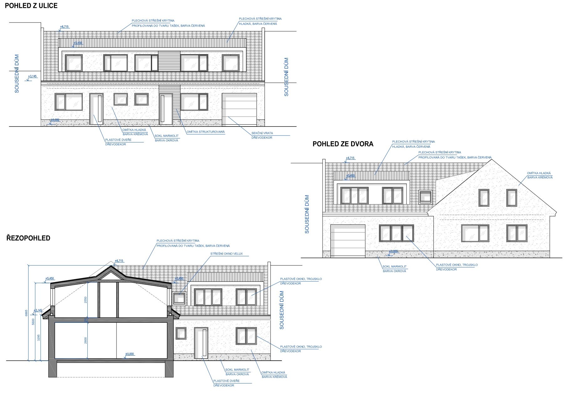
Ve výhradním zastoupení majitele nabízíme k prodeji rodinný dům v obci Brumovice, určený k kompletní rekonstrukci nebo demolici a následné nové výstavbě. Součástí prodeje je studie na přestavbu objektu na tři bytové jednotky a samostatný rodinný dům v zadní části zahrady, což dává nemovitosti velký investiční potenciál. Pozemek má navíc přístup i ze zadní části, a to po obecním pozemku, což výrazně usnadňuje případné rozdělení a samostatné využití zadní části parcely. Za zahradou je dle územního plánu plánovaná nová lokalita pro výstavbu. Celková plocha pozemku činí 858m2 a uliční šíře je 16 metrů. Všechny inženýrské sítě (voda, elektřina, plyn, kanalizace) jsou k dispozici jak u domu, tak i v zadní části pozemku. Brumovice se nacházejí v atraktivní vinařské oblasti a nabízejí výborné možnosti turistiky a cykloturistiky v malebném okolí. V případě zájmu o tuto nemovitost kontaktujte makléře.
Pomocí naší hypoteční kalkulačky si můžete udělat orientační představu o výši měsíčních splátek hypotéky. O vše ostatní se pak postaráme my ve spolupráci s našimi obchodními partnery.
11 593 Kč
* Odhadovaná měsíční splátka vychází z výše úvěru Kč s pevnou úrokovou sazbou % po celou dobu trvání úvěru.
Uživatel serveru RealityMIX.cz (dále jen „Server“) dostupného na internetové adrese (URL) https://www.realitymix.cz, který provozuje společnost DALTEN media s.r.o., se sídlem Na Harfě 916/9a, Praha 9, 190 00, IČO: 271 35 306 (dále jen „Správce“) jako provozovateli tohoto Serveru uděluje svůj výslovný souhlas v souladu s ustanovením § 5 zákona č. 101/2000 Sb. O ochraně osobních údajů a o změně některých zákonů, v platném znění (dále jen „zákon o ochraně osobních údajů“), se zpracováním uživatelem poskytnutých osobních údajů a dalších dat.
Uživatel poskytuje Správci osobní údaje v rozsahu: jméno, příjmení, e-mailová adresa, telefonický kontakt a další data, a to z důvodu projeveného zájmu o nemovitost, kde prostřednictvím služby Serveru Správce osloví Uživatel inzerenta uvedeného v detailu
nemovitosti - JRS real s.r.o. (IČ 17716471) se zájmem o jeho služby.
Uživatel tyto osobní údaje poskytuje dobrovolně a bere na vědomí, že součástí služeb Správce, které Správce Uživateli poskytuje, je vyhledání všech Uživateli vyhovujících (dle parametrů - cena, typ nemovitosti, lokalita atd.) nemovitostí. Správce za tímto účelem provozuje aplikace Hlídací pes a newsletter. Tyto služby je možné z každého zaslaného emailu odhlásit. Souhlas se zpracováním osobních údajů Uživatel poskytuje Správci na dobu neurčitou s tím, že svůj udělený souhlas může Uživatel kdykoliv na drese správce info@realitymix.cz odvolat. Správce garantuje Uživateli i další práva uvedené v ustanovení §11 a §21 zákoba č. 101/200 Sb. Ve znění pozdějších předpisů.
Více informací o zpracování údajů získáte zde (realitymix.cz/zasady-ochrany-osobnich-udaju)