Nabízíme k prodeji apartmán 1+KK v novém projektu „Resort Narcis“, který vznikl rekonstrukcí bývalé školy na Bublavě, v srdci Krušných hor. Tento projekt nabízí útulné horské bydlení, které spojuje komfort moderního apartmánu s atmosférou malebného horského prostředí, ideální pro rekreaci, trvalé bydlení nebo jako investici. Budova prošla kompletní přestavbou od základů po střechu a vznikly zde plně vybavené apartmány, připravené k okamžitému užívání.
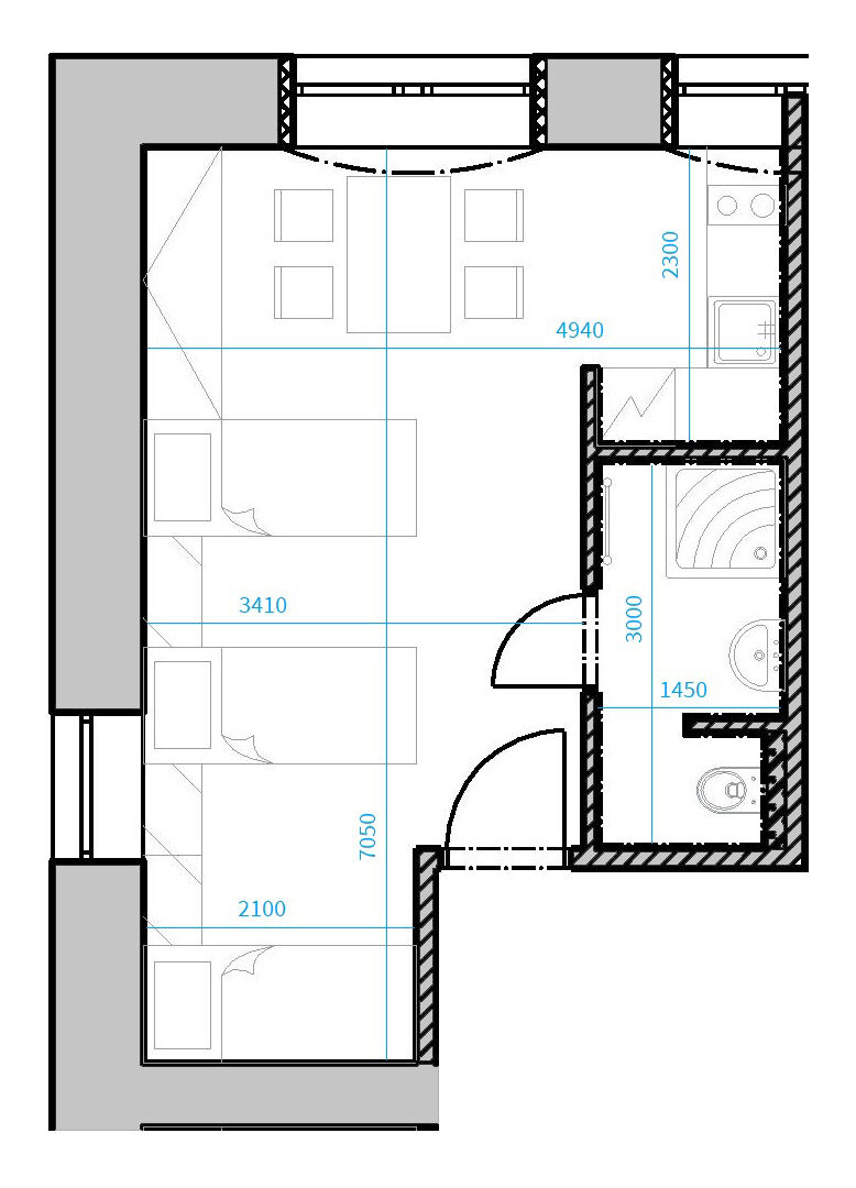
Tento apartmán o velikosti 30 m2 nabízí praktické a pohodlné uspořádání prostoru. Obytná část je vybavena manželskou postelí, šatní skříní, jídelním stolem se židlemi a dvěma nočními stolky, takže poskytuje vše potřebné pro pohodlný pobyt. Součástí bytu je jednoduchá kuchyňská linka s indukční dvouplotýnkou. Koupelna s toaletou, umyvadlem a sprchovým koutem se zasklenou zástěnou. Teplou vodu zajišťuje vlastní elektrický bojler. Komfortní elektrické podlahové topení přispívá k příjemnému a útulnému prostředí i během chladnějších měsíců.
Každý apartmán nabízí praktické a pohodlné řešení prostoru a zachovává charakter původní budovy. Lokalita je klidná a malebná, přímo v horách, s výbornou dostupností z Česka i Německa. Apartmány se nacházejí jen pár minut od sjezdovek, běžeckých tratí i cyklostezek, což poskytuje ideální podmínky pro horskou turistiku, zimní i letní sporty a relaxaci v čisté přírodě.
V současnosti nabízíme prvních 18 jednotek dokončených v rámci projektu. Koupě každého apartmánu zahrnuje povinné dokoupení parkovacího místa a sklepní kóje, aby byla zajištěna plná funkčnost a komfort objektu. Pro více informací, kompletní nabídku a detaily jednotlivých apartmánů navštivte prosím www.resortnarcis.cz
Pomocí naší hypoteční kalkulačky si můžete udělat orientační představu o výši měsíčních splátek hypotéky. O vše ostatní se pak postaráme my ve spolupráci s našimi obchodními partnery.
13 361 Kč
* Odhadovaná měsíční splátka vychází z výše úvěru Kč s pevnou úrokovou sazbou % po celou dobu trvání úvěru.
Prodáváte nemovitost a potřebujete zjistit její reálnou hodnotu?
Uživatel serveru RealityMIX.cz (dále jen „Server“) dostupného na internetové adrese (URL) https://www.realitymix.cz, který provozuje společnost DALTEN media s.r.o., se sídlem Na Harfě 916/9a, Praha 9, 190 00, IČO: 271 35 306 (dále jen „Správce“) jako provozovateli tohoto Serveru uděluje svůj výslovný souhlas v souladu s ustanovením § 5 zákona č. 101/2000 Sb. O ochraně osobních údajů a o změně některých zákonů, v platném znění (dále jen „zákon o ochraně osobních údajů“), se zpracováním uživatelem poskytnutých osobních údajů a dalších dat.
Uživatel poskytuje Správci osobní údaje v rozsahu: jméno, příjmení, e-mailová adresa, telefonický kontakt a další data, a to z důvodu projeveného zájmu o nemovitost, kde prostřednictvím služby Serveru Správce osloví Uživatel inzerenta uvedeného v detailu
nemovitosti - RK SALZMANN (IČ 44656408) se zájmem o jeho služby.
Uživatel tyto osobní údaje poskytuje dobrovolně a bere na vědomí, že součástí služeb Správce, které Správce Uživateli poskytuje, je vyhledání všech Uživateli vyhovujících (dle parametrů - cena, typ nemovitosti, lokalita atd.) nemovitostí. Správce za tímto účelem provozuje aplikace Hlídací pes a newsletter. Tyto služby je možné z každého zaslaného emailu odhlásit. Souhlas se zpracováním osobních údajů Uživatel poskytuje Správci na dobu neurčitou s tím, že svůj udělený souhlas může Uživatel kdykoliv na drese správce info@realitymix.cz odvolat. Správce garantuje Uživateli i další práva uvedené v ustanovení §11 a §21 zákoba č. 101/200 Sb. Ve znění pozdějších předpisů.
Více informací o zpracování údajů získáte zde (realitymix.cz/zasady-ochrany-osobnich-udaju)