Představte si místo, kam se budete vždy rádi vracet. Klid, hory, čerstvý vzduch a pocit, že jste konečně zpomalili. Právě takové místo pro vás vzniká v malebné obci Bublava v Krušných horách. Připravujeme zde horské apartmány (zkolaudované jako byty), které můžete využívat pro vlastní odpočinek nebo jako chytrou investici. Rekonstrukce původního objektu běží naplno a s každým dnem dostává projekt konkrétnější podobu. Dokončení plánujeme na podzim 2026.
A to nejdůležitější – rezervovat si svůj apartmán můžete už teď. Zájem je velký a jednotky rychle mizí, mimo jiné i díky velmi příznivé ceně kolem 100 000 Kč/m². Na výběr máte dispozice od útulných 1+kk až po prostorné 3+kk. Pokud hledáte něco výjimečného, apartmány č. 23–26 jsou mezonety s jedinečnou atmosférou. Každý byt má navíc vlastní balkon, lodžii nebo terasu, kde si vychutnáte ranní kávu s výhledem na hory.
Postaráme se i o vše ostatní – rádi vám zajistíme financování i profesionální správu. Vy tak můžete jen přijíždět a užívat si, nebo nechat apartmán vydělávat. Očekávaný čistý výnos se pohybuje kolem 8 % ročně po odečtení nákladů na správu. Tohle není jen nemovitost. Je to místo, kam budete chtít utéct z každodenního shonu – a zároveň investice, která dává smysl.
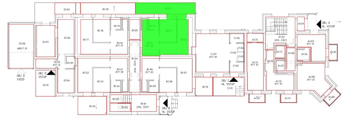
Byt č. 6 má dispozici 2+kk, plochu 35 m2 a patří k němu terasa/předzahrádka o ploše 14 m2. Nachází se v přízemí a je nasměrován na severovýchod, takže z něj uvidíte na kostel nebo sjezdovky.
Horské byty se pro vás připravují na adrese bývalého rekreačního střediska na adrese Bublava 755. Bublava leží kousek od městečka Kraslice a za kopcem už vidíte do Německa. Přímo v Bublavě jsou sjezdovky na Olověném vrchu, do Německa si můžete zajet na koupaliště nebo do aquaparku. K tomu krásné kopce lákající na výlety nebo kolo.
Ozvěte se mi, pokud potřebujete bližší informace jako jsou standardy, vytápění, platební kalendář, podmínky správy nebo pokud chcete mít porovnání s jinými volnými apartmány.
Pomocí naší hypoteční kalkulačky si můžete udělat orientační představu o výši měsíčních splátek hypotéky. O vše ostatní se pak postaráme my ve spolupráci s našimi obchodními partnery.
14 167 Kč
* Odhadovaná měsíční splátka vychází z výše úvěru Kč s pevnou úrokovou sazbou % po celou dobu trvání úvěru.
Prodáváte nemovitost a potřebujete zjistit její reálnou hodnotu?
Uživatel serveru RealityMIX.cz (dále jen „Server“) dostupného na internetové adrese (URL) https://www.realitymix.cz, který provozuje společnost DALTEN media s.r.o., se sídlem Na Harfě 916/9a, Praha 9, 190 00, IČO: 271 35 306 (dále jen „Správce“) jako provozovateli tohoto Serveru uděluje svůj výslovný souhlas v souladu s ustanovením § 5 zákona č. 101/2000 Sb. O ochraně osobních údajů a o změně některých zákonů, v platném znění (dále jen „zákon o ochraně osobních údajů“), se zpracováním uživatelem poskytnutých osobních údajů a dalších dat.
Uživatel poskytuje Správci osobní údaje v rozsahu: jméno, příjmení, e-mailová adresa, telefonický kontakt a další data, a to z důvodu projeveného zájmu o nemovitost, kde prostřednictvím služby Serveru Správce osloví Uživatel inzerenta uvedeného v detailu
nemovitosti - QARA s.r.o. (IČ 01740113) se zájmem o jeho služby. Tato společnost je součástí seskupení/sítě/franšízového modelu realitních kanceláří, jejich seznam můžete zobrazit kliknutím na tento odkaz.
QARA s.r.o. Ostrava (IČ 01740113) , QARA s.r.o. Brno (IČ 01740113) , QARA s.r.o. (IČ 01740113)
Uživatel tyto osobní údaje poskytuje dobrovolně a bere na vědomí, že součástí služeb Správce, které Správce Uživateli poskytuje, je vyhledání všech Uživateli vyhovujících (dle parametrů - cena, typ nemovitosti, lokalita atd.) nemovitostí. Správce za tímto účelem provozuje aplikace Hlídací pes a newsletter. Tyto služby je možné z každého zaslaného emailu odhlásit. Souhlas se zpracováním osobních údajů Uživatel poskytuje Správci na dobu neurčitou s tím, že svůj udělený souhlas může Uživatel kdykoliv na drese správce info@realitymix.cz odvolat. Správce garantuje Uživateli i další práva uvedené v ustanovení §11 a §21 zákoba č. 101/200 Sb. Ve znění pozdějších předpisů.
Více informací o zpracování údajů získáte zde (realitymix.cz/zasady-ochrany-osobnich-udaju)