Nabízíme k prodeji novostavbu (hrubou stavbu), která byla vystavěna v roce 2025, na slunném pozemku v katastru obce Bukovec.
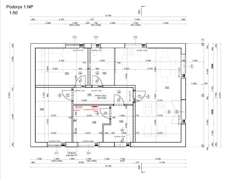
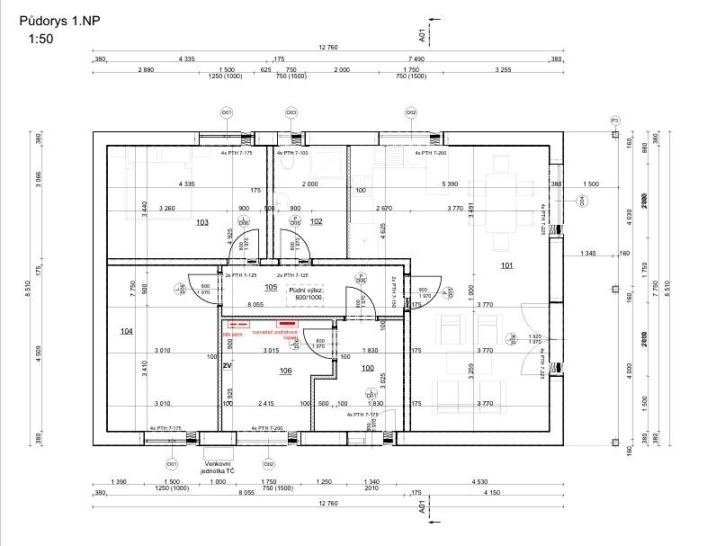
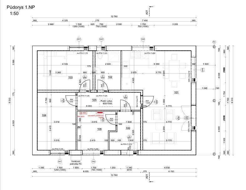
Jedná se o jednopodlažní rodinný dům typu bungalov o dispozičním řešením 3KK - vystavěny na zastavěné ploše 121 m2 a na pozemku o plošné výměře 1072 m2.
Parametry nemovitosti:
- Podlahová plocha 89 m2
- Dispoziční řešení 3KK a nalezneme zde:
- Zádveří 6,37 m2
- Chodbu 6,85 m2
- Obývací pokoj + kuchyni 34,18 m2
- Koupelnu 6,13 m2
- Ložnici 13,27 m2
- Pokoj 13,58 m2
- Technickou místnost 8,2 m2
Zásadní výhodou této nemovitosti je zejména její umístění v klidné části obce, s krásným výhledem na panorama Beskyd a do širokého okolí.
Jako konstrukce obvodových stěn byly použity tepelněizolační cihly s minerální izolací Porotherm 38 T Profi P8. Na střeše bude položena plechová krytina v barvě antracit. Vytápění je plánováno tepelným čerpadlem. Zdroj vody je z vlastní studny, která je již vybudovaná. Odpady budou řešeny do ČOV.
Příjezd k rodinným domům je řešen po obecní komunikaci a dále po soukromém pozemku, na kterém budou mít noví vlastníci spoluvlastnický podíl o velikosti 1/2 pozemku o výměře 112 m2.
Dům je možno koupit ve stavu stávajícím, případně po dohodě s majitelem s možností dostavby do jakéhokoliv stavu i celkového dokončení.
Koupi domu můžete financovat pomocí hypotéky, s jejímž vyřízením vám rádi zdarma pomůžeme.
Pro více informací či domluvení prohlídky volejte makléři.
Pomocí naší hypoteční kalkulačky si můžete udělat orientační představu o výši měsíčních splátek hypotéky. O vše ostatní se pak postaráme my ve spolupráci s našimi obchodními partnery.
18 219 Kč
* Odhadovaná měsíční splátka vychází z výše úvěru Kč s pevnou úrokovou sazbou % po celou dobu trvání úvěru.
Uživatel serveru RealityMIX.cz (dále jen „Server“) dostupného na internetové adrese (URL) https://www.realitymix.cz, který provozuje společnost DALTEN media s.r.o., se sídlem Na Harfě 916/9a, Praha 9, 190 00, IČO: 271 35 306 (dále jen „Správce“) jako provozovateli tohoto Serveru uděluje svůj výslovný souhlas v souladu s ustanovením § 5 zákona č. 101/2000 Sb. O ochraně osobních údajů a o změně některých zákonů, v platném znění (dále jen „zákon o ochraně osobních údajů“), se zpracováním uživatelem poskytnutých osobních údajů a dalších dat.
Uživatel poskytuje Správci osobní údaje v rozsahu: jméno, příjmení, e-mailová adresa, telefonický kontakt a další data, a to z důvodu projeveného zájmu o nemovitost, kde prostřednictvím služby Serveru Správce osloví Uživatel inzerenta uvedeného v detailu
nemovitosti - Listrum real s.r.o. (IČ 27812332) se zájmem o jeho služby.
Uživatel tyto osobní údaje poskytuje dobrovolně a bere na vědomí, že součástí služeb Správce, které Správce Uživateli poskytuje, je vyhledání všech Uživateli vyhovujících (dle parametrů - cena, typ nemovitosti, lokalita atd.) nemovitostí. Správce za tímto účelem provozuje aplikace Hlídací pes a newsletter. Tyto služby je možné z každého zaslaného emailu odhlásit. Souhlas se zpracováním osobních údajů Uživatel poskytuje Správci na dobu neurčitou s tím, že svůj udělený souhlas může Uživatel kdykoliv na drese správce info@realitymix.cz odvolat. Správce garantuje Uživateli i další práva uvedené v ustanovení §11 a §21 zákoba č. 101/200 Sb. Ve znění pozdějších předpisů.
Více informací o zpracování údajů získáte zde (realitymix.cz/zasady-ochrany-osobnich-udaju)