Prodej rodinného domu 4+kk s garáží a zahradou, Buštěhrad
Prodej rodinného domu s nízkou energetickou náročností (PENB - C). Nemovitost se nachází v klidné rezidenční části města Buštěhrad, se skvělou dostupností do Prahy.
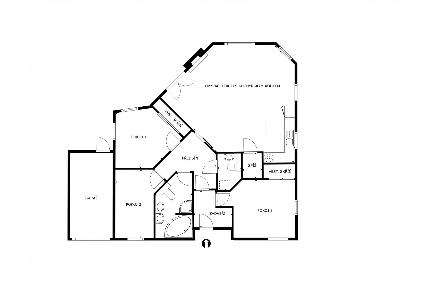
Dům o dispozici 4+kk s garáží, parkovacím stáním a zahradou nabízí současnou užitnou plochu 139 m2 a zároveň zajímavý potenciál budoucího rozšíření až na přibližně 210 - 230 m2 díky připravenému půdnímu prostoru. Bydlení je nyní řešeno jako bezbariérové, celé v jedné úrovni.
Základní parametry domu:
- užitná plocha domu: 139 m2
- půdní prostor připravený pro vestavbu: cca 100 m2
- potenciální užitná plocha po dokončení: až cca 210 - 230 m2
Dominantou domu je obývací pokoj s kuchyňským koutem a krbem. Z obývací části je přímý vstup na terasu a do zahrady. Dispozice zahrnuje tři samostatné ložnice, koupelnu s rohovou vanou, sprchovým koutem, dvěma umyvadly a WC, dále samostatné WC. Zahrada poskytuje dostatek soukromí pro relaxaci i rodinné posezení.
Velkou výhodou domu je půdní prostor nad celou plochou domu, který je již od výstavby připraven pro případnou obytnou vestavbu. Budoucí úpravou lze obytnou plochu domu rozšířit přibližně o 60 - 80 % oproti současné podlahové ploše. Půda má střešní okna, pochozí podlahu. V současnosti slouží jako světlý a praktický úložný prostor.
Parkování je zajištěno v garáži, další parkovací místo je k dispozici na vlastním pozemku a parkovat lze také před domem.
Hlavní přednosti nemovitosti:
- přízemní rodinný dům 4+kk bez schodů (bezbariérové řešení)
- půda s potenciálem dalšího využití
- podlahové vytápění a krb v obývacím pokoji
- garáž + další parkovací místo na pozemku
- zahrada s terasou
- nízká energetická náročnost (PENB C)
- klidná lokalita
- skvělá dopravní dostupnost do Prahy
Město Buštěhrad nabízí příjemné bydlení v blízkosti přírody a zároveň rychlou dostupnost do Prahy.
Pokud hledáte dům s příjemnou atmosférou a potenciálem dalšího rozšíření, rádi vás přivítáme na osobní prohlídce.
Pomocí naší hypoteční kalkulačky si můžete udělat orientační představu o výši měsíčních splátek hypotéky. O vše ostatní se pak postaráme my ve spolupráci s našimi obchodními partnery.
66 723 Kč
* Odhadovaná měsíční splátka vychází z výše úvěru Kč s pevnou úrokovou sazbou % po celou dobu trvání úvěru.
Uživatel serveru RealityMIX.cz (dále jen „Server“) dostupného na internetové adrese (URL) https://www.realitymix.cz, který provozuje společnost DALTEN media s.r.o., se sídlem Na Harfě 916/9a, Praha 9, 190 00, IČO: 271 35 306 (dále jen „Správce“) jako provozovateli tohoto Serveru uděluje svůj výslovný souhlas v souladu s ustanovením § 5 zákona č. 101/2000 Sb. O ochraně osobních údajů a o změně některých zákonů, v platném znění (dále jen „zákon o ochraně osobních údajů“), se zpracováním uživatelem poskytnutých osobních údajů a dalších dat.
Uživatel poskytuje Správci osobní údaje v rozsahu: jméno, příjmení, e-mailová adresa, telefonický kontakt a další data, a to z důvodu projeveného zájmu o nemovitost, kde prostřednictvím služby Serveru Správce osloví Uživatel inzerenta uvedeného v detailu
nemovitosti - Bohemia reality (IČ 70548714) se zájmem o jeho služby.
Uživatel tyto osobní údaje poskytuje dobrovolně a bere na vědomí, že součástí služeb Správce, které Správce Uživateli poskytuje, je vyhledání všech Uživateli vyhovujících (dle parametrů - cena, typ nemovitosti, lokalita atd.) nemovitostí. Správce za tímto účelem provozuje aplikace Hlídací pes a newsletter. Tyto služby je možné z každého zaslaného emailu odhlásit. Souhlas se zpracováním osobních údajů Uživatel poskytuje Správci na dobu neurčitou s tím, že svůj udělený souhlas může Uživatel kdykoliv na drese správce info@realitymix.cz odvolat. Správce garantuje Uživateli i další práva uvedené v ustanovení §11 a §21 zákoba č. 101/200 Sb. Ve znění pozdějších předpisů.
Více informací o zpracování údajů získáte zde (realitymix.cz/zasady-ochrany-osobnich-udaju)