Prodej stavebního pozemku 827 m2 včetně stavebního povolení a projektu v obci Býšť
Nabízíme rovinatý pozemek v nové zástavbě, s vydaným stavebním povolením, včetně projektu na výstavbu rodinného domku v obci Býšť v okrese Pardubice.
Aktuálně je k pozemku vydáno stavební povolení pro výstavbu rodinného domu na který je zpracovaný projekt. Povolení i projekt jsou zahrnuty v ceně prodeje .
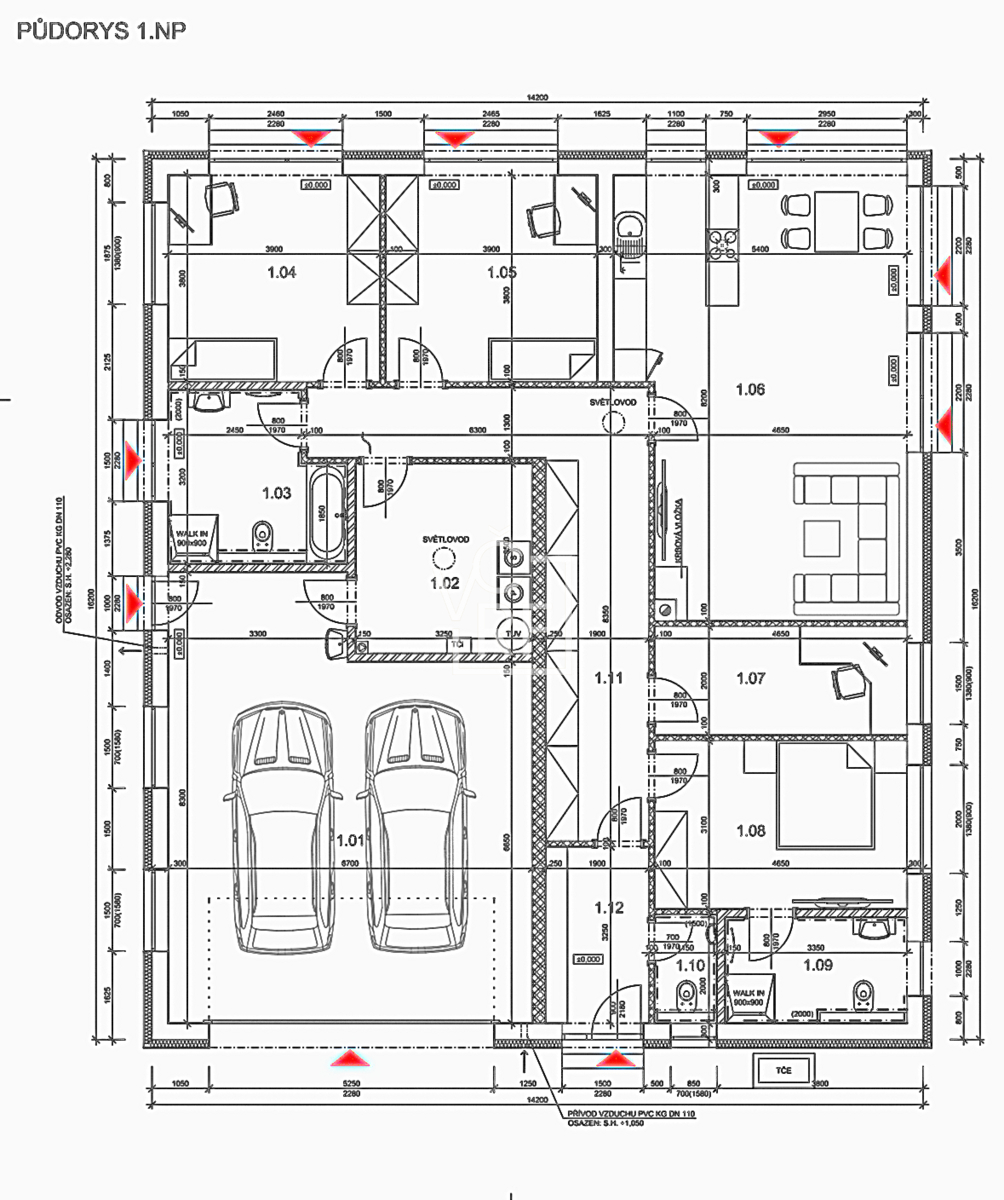
•Projekt RD typu Bungalov
Užitná plocha je navrhnuta na celkových 200 m2, včetně garáže o rozloze 50 m2.
•Dispozice RD: centrální chodba, ložnice s koupelnou a WC, pracovna, prostorný obývací pokoj s krbem spojený s kuchyní, dva dětské pokoje, koupelna s vanou, sprchovým koutem a WC, technická místnost a již zmíněná garáž.
Výhoda tedy je, že můžete okamžitě začít s výstavbou a ušetříte si tak spoustu času a nervů s povolením a úřady.
Projektová dokumentace včetně stavebního povolení jsou zahrnuty v kupní ceně.
-Celková plocha pozemku je 827 m².
-Pozemek je napojen na elektřinu, plynovod, vodovod a kanalizaci.
Pozemek je situován v klidné lokalitě s jižní expozicí.
V blízkosti se nachází veškerá občanská vybavenost, včetně obchodů, škol a zdravotnických zařízení. Jde o ideální lokalitu s dostupností 10 - 20 minut do měst jako jsou například Hradec Králové, nebo Pardubice.
V případě zájmu o prohlídku mě neváhejte kontaktovat.
Pomocí naší hypoteční kalkulačky si můžete udělat orientační představu o výši měsíčních splátek hypotéky. O vše ostatní se pak postaráme my ve spolupráci s našimi obchodními partnery.
23 888 Kč
* Odhadovaná měsíční splátka vychází z výše úvěru Kč s pevnou úrokovou sazbou % po celou dobu trvání úvěru.
Uživatel serveru RealityMIX.cz (dále jen „Server“) dostupného na internetové adrese (URL) https://www.realitymix.cz, který provozuje společnost DALTEN media s.r.o., se sídlem Na Harfě 916/9a, Praha 9, 190 00, IČO: 271 35 306 (dále jen „Správce“) jako provozovateli tohoto Serveru uděluje svůj výslovný souhlas v souladu s ustanovením § 5 zákona č. 101/2000 Sb. O ochraně osobních údajů a o změně některých zákonů, v platném znění (dále jen „zákon o ochraně osobních údajů“), se zpracováním uživatelem poskytnutých osobních údajů a dalších dat.
Uživatel poskytuje Správci osobní údaje v rozsahu: jméno, příjmení, e-mailová adresa, telefonický kontakt a další data, a to z důvodu projeveného zájmu o nemovitost, kde prostřednictvím služby Serveru Správce osloví Uživatel inzerenta uvedeného v detailu
nemovitosti - VČRF Reality (IČ 21618089) se zájmem o jeho služby.
Uživatel tyto osobní údaje poskytuje dobrovolně a bere na vědomí, že součástí služeb Správce, které Správce Uživateli poskytuje, je vyhledání všech Uživateli vyhovujících (dle parametrů - cena, typ nemovitosti, lokalita atd.) nemovitostí. Správce za tímto účelem provozuje aplikace Hlídací pes a newsletter. Tyto služby je možné z každého zaslaného emailu odhlásit. Souhlas se zpracováním osobních údajů Uživatel poskytuje Správci na dobu neurčitou s tím, že svůj udělený souhlas může Uživatel kdykoliv na drese správce info@realitymix.cz odvolat. Správce garantuje Uživateli i další práva uvedené v ustanovení §11 a §21 zákoba č. 101/200 Sb. Ve znění pozdějších předpisů.
Více informací o zpracování údajů získáte zde (realitymix.cz/zasady-ochrany-osobnich-udaju)