Rodinný dům s nádherným výhledem na hrad Doubravka Ideální pro vícegenerační bydlení nebo investici
Virtuální prohlídka ve fotogalerii.
Rádi bychom vám představili jedinečnou příležitost ke koupi rodinného domu s možností vícegeneračního bydlení, nacházejícího se v klidné lokalitě na adrese Cajthamlova, Bystřany. Tento dům je ideální volbou jak pro rodiny hledající prostorné a pohodlné bydlení, tak pro investory, kteří chtějí využít potenciál nemovitosti jako více bytových jednotek.
Popis nemovitosti:
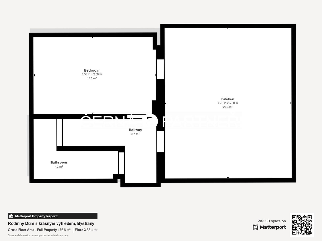
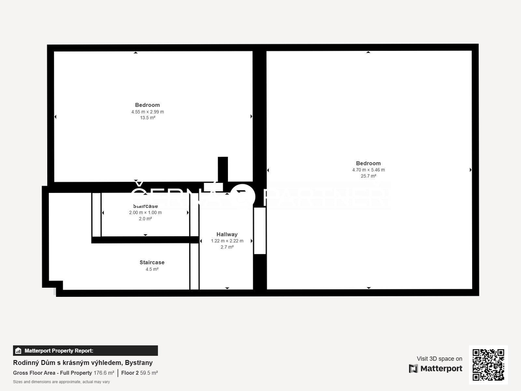
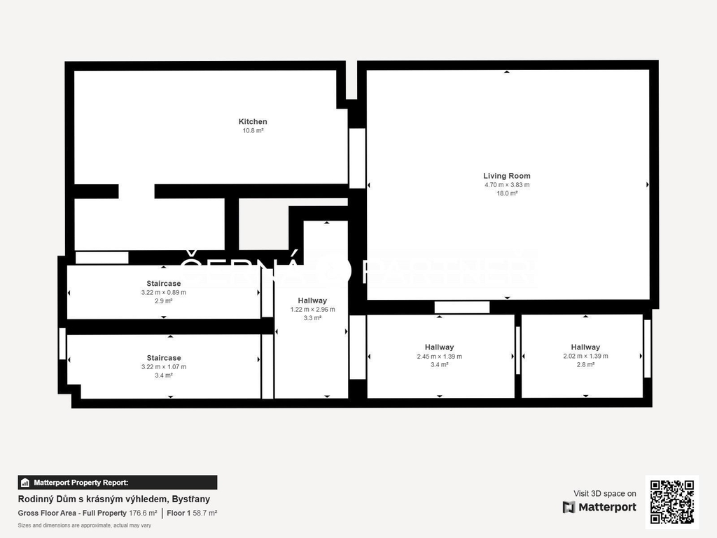
Rodinný dům nabízí celkem tři bytové jednotky, které zaručují dostatek prostoru a soukromí pro všechny obyvatele. V přízemí se nachází útulná jednotka 1+1, která je ideální pro prarodiče nebo jako startovací byt pro mladé páry. Na prvním patře najdete prostornou dispozici 2+0, která nabízí dostatek prostoru. Druhé patro pak disponuje moderní jednotkou 2+kk s krásným výhledem na okolní krajinu.
Celková užitná plocha domu činí 200 m a je připravena ihned k nastěhování.
Zahrada a okolí:
Jedním z největších lákadel této nemovitosti je rozlehlá zahrada o výměře 470 m, která nabízí nespočet možností pro využití. Ať už toužíte po okrasné zahradě, místu pro dětské hry nebo vlastní zeleninové zahrádce, zde se vaše přání stane skutečností. Na zahradě se nachází i pergola, ideální pro letní posezení s rodinou a přáteli, a kůlna na nářadí, která poskytuje dostatek úložného prostoru.
Technické vybavení:
Dům je vybaven plynovým vytápěním, což zajišťuje efektivní a úsporný provoz. Pro ohřev vody je k dispozici bojler, který zajistí dostatek teplé vody pro všechny bytové jednotky.
Lokalita:
Nemovitost se nachází v blízkosti centra, avšak v klidné oblasti, což zajišťuje komfortní bydlení s veškerou občanskou vybaveností na dosah ruky. Ať už potřebujete nakoupit, zajít na kávu, nebo se vydat na procházku po okolí, vše máte nadosah.
Pokud hledáte domov, který nabízí klid, prostor a skvělé zázemí pro více generací nebo výhodnou investici, neváhejte nás kontaktovat pro více informací nebo sjednání prohlídky. Tato nemovitost je připravena splnit vaše sny o dokonalém bydlení.
Pomocí naší hypoteční kalkulačky si můžete udělat orientační představu o výši měsíčních splátek hypotéky. O vše ostatní se pak postaráme my ve spolupráci s našimi obchodními partnery.
24 252 Kč
* Odhadovaná měsíční splátka vychází z výše úvěru Kč s pevnou úrokovou sazbou % po celou dobu trvání úvěru.
Uživatel serveru RealityMIX.cz (dále jen „Server“) dostupného na internetové adrese (URL) https://www.realitymix.cz, který provozuje společnost DALTEN media s.r.o., se sídlem Na Harfě 916/9a, Praha 9, 190 00, IČO: 271 35 306 (dále jen „Správce“) jako provozovateli tohoto Serveru uděluje svůj výslovný souhlas v souladu s ustanovením § 5 zákona č. 101/2000 Sb. O ochraně osobních údajů a o změně některých zákonů, v platném znění (dále jen „zákon o ochraně osobních údajů“), se zpracováním uživatelem poskytnutých osobních údajů a dalších dat.
Uživatel poskytuje Správci osobní údaje v rozsahu: jméno, příjmení, e-mailová adresa, telefonický kontakt a další data, a to z důvodu projeveného zájmu o nemovitost, kde prostřednictvím služby Serveru Správce osloví Uživatel inzerenta uvedeného v detailu
nemovitosti - Anna Černá Reality (IČ 13986872) se zájmem o jeho služby.
Uživatel tyto osobní údaje poskytuje dobrovolně a bere na vědomí, že součástí služeb Správce, které Správce Uživateli poskytuje, je vyhledání všech Uživateli vyhovujících (dle parametrů - cena, typ nemovitosti, lokalita atd.) nemovitostí. Správce za tímto účelem provozuje aplikace Hlídací pes a newsletter. Tyto služby je možné z každého zaslaného emailu odhlásit. Souhlas se zpracováním osobních údajů Uživatel poskytuje Správci na dobu neurčitou s tím, že svůj udělený souhlas může Uživatel kdykoliv na drese správce info@realitymix.cz odvolat. Správce garantuje Uživateli i další práva uvedené v ustanovení §11 a §21 zákoba č. 101/200 Sb. Ve znění pozdějších předpisů.
Více informací o zpracování údajů získáte zde (realitymix.cz/zasady-ochrany-osobnich-udaju)