KOMFORTNĚ PLNĚ ZAŘÍZENÝ PROSVĚTLENÝ BYT V NOVÉM DOMĚ – JAVORNÁ – CHKO ŠUMAVA
Světlý vzdušný apartmán 2+kk o podlahové ploše 42 m2, kompletně plně vybavený.
Lokalita: ŠUMAVA, malebná obec Javorná ležící v CHKO Šumava na spojnici města Klatovy a jen 10 km od známého rekreačního střediska Železná Ruda. V obci jsou dva lyžařské vleky a čtyři sjezdovky o délce 2 km. Svou nadmořskou výškou 850 m n.m. a okolní krajinou je Javorná situována do šumavského podhůří s nádhernou zalesněnou krajinou s úžasnými výhledy do vnitrozemí.
Popis domu: komplexní rekonstrukcí bývalého hotelu vznikl nádherný a moderní bytový dům od architekta nominovaného na Českou cenu za architekturu. Součástí je vlastní zázemí s kolárnou a lyžárnou. Dům má moderní architektonickou tvář, je dokonale zateplený, okna jsou plastová s izolačním trojsklem v antracitovém odstínu. Topení zajišťují tři moderní, inteligentní a účinná tepelná čerpadla vzduch/voda zn. NIBE F 2040. Samozřejmostí je i vlastní parkoviště s vymezeným stání pro jednotlivé byty. Kolaudace domu proběhla v prosinci 2022 a ve dvou objektech je celkem 40 bytových jednotek. Napojen je na obecní vodovod a kanalizaci, zajištěna je i správa domu s úklidem a zimní údržbou parkoviště. Správa domu může dokonce zajistit i komerční pronájem apartmánu v době, kdy by ho vlastník nevyužíval – tím se z apartmánu stává výnosová investice!
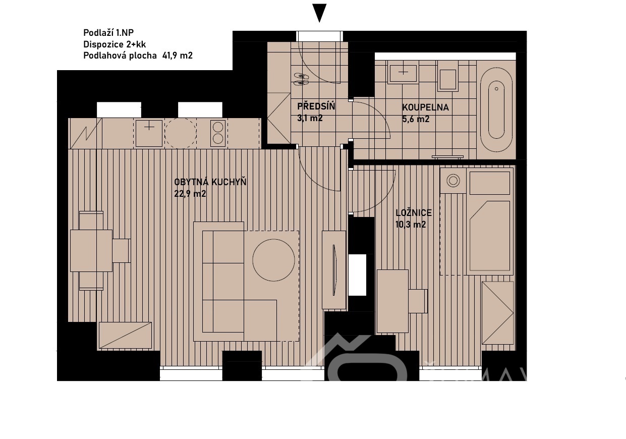
Popis apartmánu: světlost, vzdušnost a stylové značkové vybavení je první, co vás upoutá při vstupu do vlastního bytu. Ten se nachází v 1.NP hned vedle relaxační zóny, situovaný je na jihozápad. Dispozičně se jedná o byt 2+kk, kdy v předsíni je vestavěná prostorná šatní stěna s věšáky. Vlevo je vstup do koupelny s vanou a skleněnou zástěnou, bateriemi Hansgrohe, závěsným WC a otopným žebříkem. Obývací pokoj s kuchyňskou linkou i vedlejší samostatná ložnice má bezparapetová okna začínajícími od podlahy – to dodává této místnosti dostatek světla. Podlahová krytina je z vinylu s dekorem dřeva. Kompletní nábytkové vybavení je od firmy Hanák (kuchyňská linka, vestavěná skříň v předsíni, nábytek v obývací místnosti a vestavěné skříně v ložnici). Čalouněný nábytek je od firmy UNAR (rozkládací pohovka s matrací pro každodenní užívání v plné velikosti 180/200 cm, manželská postel v ložnici o velikosti 180/200 cm). Kuchyňská linka je kompletně vybavena spotřebičemi zn. Elektrolux (velká lednička, mrazák, varná deska, mikrovlnná trouba s grilem, velká myčka a digestoř). Součástí je i televizor Samsung. Vytápění je možno ovládat dálkově s aplikací v telefonu, k dispozici je WIFI, Smart TV a vstupní dveře jsou zabezpečeny elektronickým číselným kódem. K dispozici je uzamykatelná lyžárna / kolárna pro valstníky apartmánů. Cena bez povize RK.
Cena: vč. kompletního vybavení.
Pomocí naší hypoteční kalkulačky si můžete udělat orientační představu o výši měsíčních splátek hypotéky. O vše ostatní se pak postaráme my ve spolupráci s našimi obchodními partnery.
18 179 Kč
* Odhadovaná měsíční splátka vychází z výše úvěru Kč s pevnou úrokovou sazbou % po celou dobu trvání úvěru.
Prodáváte nemovitost a potřebujete zjistit její reálnou hodnotu?
Uživatel serveru RealityMIX.cz (dále jen „Server“) dostupného na internetové adrese (URL) https://www.realitymix.cz, který provozuje společnost DALTEN media s.r.o., se sídlem Na Harfě 916/9a, Praha 9, 190 00, IČO: 271 35 306 (dále jen „Správce“) jako provozovateli tohoto Serveru uděluje svůj výslovný souhlas v souladu s ustanovením § 5 zákona č. 101/2000 Sb. O ochraně osobních údajů a o změně některých zákonů, v platném znění (dále jen „zákon o ochraně osobních údajů“), se zpracováním uživatelem poskytnutých osobních údajů a dalších dat.
Uživatel poskytuje Správci osobní údaje v rozsahu: jméno, příjmení, e-mailová adresa, telefonický kontakt a další data, a to z důvodu projeveného zájmu o nemovitost, kde prostřednictvím služby Serveru Správce osloví Uživatel inzerenta uvedeného v detailu
nemovitosti - Šumavská realitka (IČ 21318182) se zájmem o jeho služby.
Uživatel tyto osobní údaje poskytuje dobrovolně a bere na vědomí, že součástí služeb Správce, které Správce Uživateli poskytuje, je vyhledání všech Uživateli vyhovujících (dle parametrů - cena, typ nemovitosti, lokalita atd.) nemovitostí. Správce za tímto účelem provozuje aplikace Hlídací pes a newsletter. Tyto služby je možné z každého zaslaného emailu odhlásit. Souhlas se zpracováním osobních údajů Uživatel poskytuje Správci na dobu neurčitou s tím, že svůj udělený souhlas může Uživatel kdykoliv na drese správce info@realitymix.cz odvolat. Správce garantuje Uživateli i další práva uvedené v ustanovení §11 a §21 zákoba č. 101/200 Sb. Ve znění pozdějších předpisů.
Více informací o zpracování údajů získáte zde (realitymix.cz/zasady-ochrany-osobnich-udaju)