Prodej prostorného řadového domu 4+1 s garáží a zahradou – Čáslavice u Třebíče
Nabízíme ke koupi velmi dobře udržovaný řadový rodinný dům o užitné ploše 136 m² nacházející se v klidné a vyhledávané obci Čáslavice. Dům má dvě nadzemní podlaží, je plně podsklepený a připravený k okamžitému nastěhování. Ideální pro rodinné bydlení s veškerým komfortem a výbornou dostupností do Třebíče (cca 12 minut jízdy).
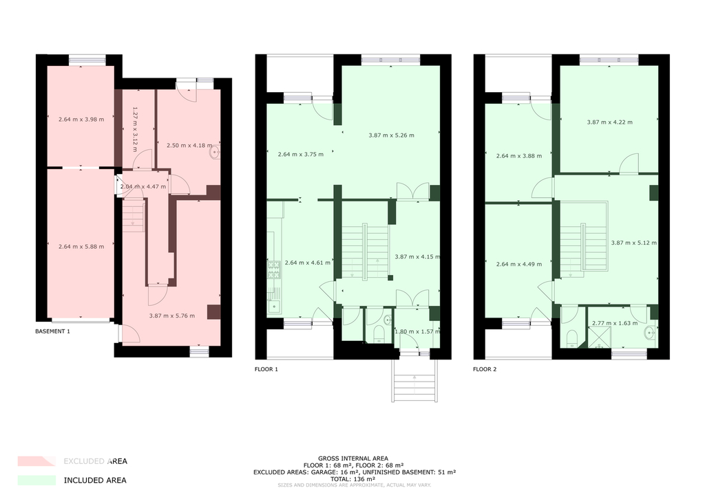
Dispozice:
Přízemí: světlý obývací pokoj s jídelním koutem, kuchyně s novou moderní linkou (vestavná myčka a sporák), předsíň, prostorná chodba, samostatná toaleta, spíž a dva balkony
Patro: tři neprůchozí pokoje, koupelna, samostatná toaleta, chodba a další dva balkony
Suterén: garáž, dílna, úložné prostory, vstup na zahradu
Zahrada: zpevněná dlážděná terasa, domek vhodný jako dílna či sklad zahradního nářadí, skleník, zadní přístup z vedlejší cesty
Technický stav a vybavení:
- Výborný technický stav – suchý, čistý a obyvatelný bez nutnosti investic
- Nové rozvody vody a elektřiny
- Plastová okna, betonové podlahy
- Vytápění plynovým kotlem – nízké provozní náklady
- Nová kuchyňská linka včetně spotřebičů
Výhody lokality – Čáslavice:
- Klidné venkovské prostředí s rychlou dostupností do Třebíče (MHD i auto)
- V obci se nachází obchod, školka, restaurace a další základní občanská vybavenost
- Možnosti procházek, sportovního vyžití i relaxace v okolní přírodě
- Přátelská komunita, bezpečné prostředí pro rodinu s dětmi
Tento dům nabízí kombinaci komfortního bydlení, technického stavu bez nutných investic a praktického zázemí, včetně garáže, zahrady a dílny. Doporučujeme osobní prohlídku – kontaktujte nás pro domluvení termínu.
Pomocí naší hypoteční kalkulačky si můžete udělat orientační představu o výši měsíčních splátek hypotéky. O vše ostatní se pak postaráme my ve spolupráci s našimi obchodními partnery.
24 252 Kč
* Odhadovaná měsíční splátka vychází z výše úvěru Kč s pevnou úrokovou sazbou % po celou dobu trvání úvěru.
Uživatel serveru RealityMIX.cz (dále jen „Server“) dostupného na internetové adrese (URL) https://www.realitymix.cz, který provozuje společnost DALTEN media s.r.o., se sídlem Na Harfě 916/9a, Praha 9, 190 00, IČO: 271 35 306 (dále jen „Správce“) jako provozovateli tohoto Serveru uděluje svůj výslovný souhlas v souladu s ustanovením § 5 zákona č. 101/2000 Sb. O ochraně osobních údajů a o změně některých zákonů, v platném znění (dále jen „zákon o ochraně osobních údajů“), se zpracováním uživatelem poskytnutých osobních údajů a dalších dat.
Uživatel poskytuje Správci osobní údaje v rozsahu: jméno, příjmení, e-mailová adresa, telefonický kontakt a další data, a to z důvodu projeveného zájmu o nemovitost, kde prostřednictvím služby Serveru Správce osloví Uživatel inzerenta uvedeného v detailu
nemovitosti - SMS reality s.r.o. (IČ 04095421) se zájmem o jeho služby.
Uživatel tyto osobní údaje poskytuje dobrovolně a bere na vědomí, že součástí služeb Správce, které Správce Uživateli poskytuje, je vyhledání všech Uživateli vyhovujících (dle parametrů - cena, typ nemovitosti, lokalita atd.) nemovitostí. Správce za tímto účelem provozuje aplikace Hlídací pes a newsletter. Tyto služby je možné z každého zaslaného emailu odhlásit. Souhlas se zpracováním osobních údajů Uživatel poskytuje Správci na dobu neurčitou s tím, že svůj udělený souhlas může Uživatel kdykoliv na drese správce info@realitymix.cz odvolat. Správce garantuje Uživateli i další práva uvedené v ustanovení §11 a §21 zákoba č. 101/200 Sb. Ve znění pozdějších předpisů.
Více informací o zpracování údajů získáte zde (realitymix.cz/zasady-ochrany-osobnich-udaju)