Hledáte rodinný dům s potenciálem vícegeneračního bydlení, investice nebo kombinace vlastního bydlení a pronájmu? Nabízíme ke koupi rodinný dům na adrese Černuc 182, situovaný v klidné obci s dobrou dostupností do Kladna i Prahy.
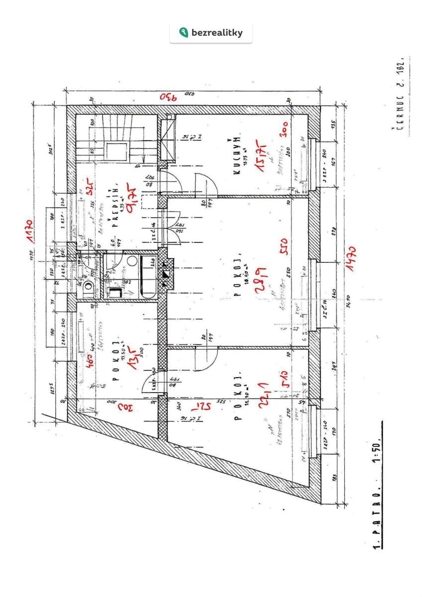
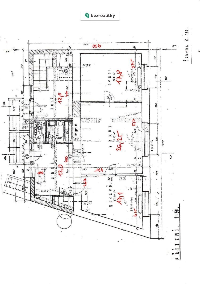
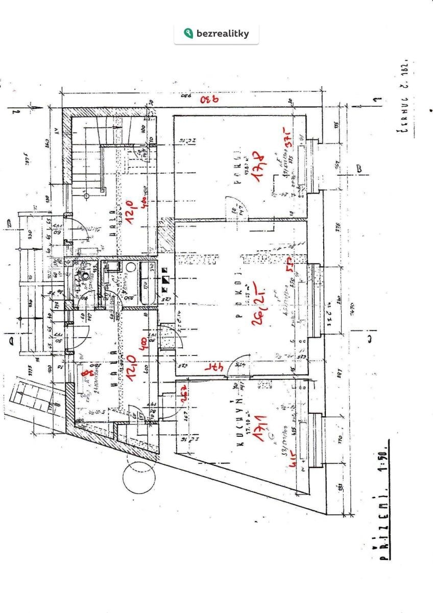
Dům má celkovou podlahovou plochu 186,2 m² a zastavěnou plochu 84 m², stojí na pozemku o výměře 250 m². Nemovitost je dispozičně upravena na dvě samostatné obytné části s vlastním vstupem a nabízí tak možnost dvougeneračního bydlení.
První obytná část (dispozičně 2+1) má podlahovou plochu 78,7 m². Druhá obytná část (dispozičně 3+1) nabízí 107,5 m². Dispozice odpovídají dostupným plánkům, zásahy do dispozic byly realizovány v minulosti v rámci stavebních úprav.
Nemovitost prošla poslední stavební úpravou v roce 1980, kdy došlo k přístavbě 2. nadzemního podlaží a rekonstrukci přízemí. V posledních letech však nebyly prováděny významné modernizace, dům je tak převážně v původním stavu. To představuje zajímavou příležitost pro nového majitele přizpůsobit si nemovitost dle vlastních představ – ať už formou postupné rekonstrukce, sjednocení obytných částí, nebo optimalizace pro investiční využití.
Konstrukce domu je kombinovaná (kámen, cihla, tvárnice). Dům není zateplený, střecha je původní, okna byla měněna přibližně před 15 lety (plastová, dvojskla), stejně tak vstupní dveře jsou plastové. Elektroinstalace i rozvody vody jsou rovněž původní. Dům je bez známek vlhkosti či zatékání.
Vytápění je řešeno odděleně pro jednotlivé části domu. Jedna část je vytápěna ústředně kondenzačním plynovým kotlem (stáří cca 15 let, pravidelné revize), druhá část ústředním topením s kotlem na pevná paliva, umístěným ve sklepě. Dům je napojen na obecní vodovod, s možností čerpání vody ze studny. Odpad je řešen septikem/žumpou, přičemž obec plánuje realizaci kanalizace s napojením na obecní čistírnu odpadních vod.
Součástí domu je sklep o výměře 32 m². Na pozemku se nachází vedlejší stavba, aktuálně využívaná jako garáž pro dva osobní vozy, dále je možné parkování na dvoře. Majitel preferuje prodej nemovitosti včetně stávajícího vybavení, tedy ve stavu, v jakém je aktuálně nabízena.
Obec Černuc nabízí kompletní občanskou vybavenost – naleznete zde obecní úřad, poštu, základní školu (1. stupeň), mateřskou školu, družinu, obchod, restauraci i sportoviště. Další široké zázemí poskytují nedaleké Velvary vzdálené pouhé 4 km, kde je k dispozici městský úřad, škola, školka, obchody, služby, sportoviště i lékař. Černuc leží strategicky mezi městy Slaný, Kladno, Kralupy nad Vltavou a Roudnicí nad Labem, přičemž do každého z nich se dostanete autem přibližně za 15–20 minut. Výborná je také dostupnost do Prahy - autem do centra zhruba 30–35 minut (D8, exit 18 Velvary), na Pražský okruh přibližně 15 minut a na letiště Václava Havla kolem 30 minut. K dispozici je rovněž pravidelné autobusové i vlakové spojení na Masarykovo nádraží, které Vás do centra Prahy dopraví přibližně do hodiny. Okolí je ideální pro rodinné bydlení – nabízí klid, minimum provozu, lesy i cyklotrasy a příjemné prostředí pro každodenní život.
Nemovitost představuje zajímavou příležitost pro klienty, kteří hledají prostorný rodinný dům s možností odděleného užívání dvou částí a zároveň si chtějí dům upravit dle vlastních představ. Díky své dispozici a potenciálu nabízí flexibilní využití i dlouhodobou perspektivu. Tato nemovitost je určena výhradně přímým zájemcům o koupi. Na inzerát můžete také reagovat přímo na webu Bezrealitky.
Pomocí naší hypoteční kalkulačky si můžete udělat orientační představu o výši měsíčních splátek hypotéky. O vše ostatní se pak postaráme my ve spolupráci s našimi obchodními partnery.
28 301 Kč
* Odhadovaná měsíční splátka vychází z výše úvěru Kč s pevnou úrokovou sazbou % po celou dobu trvání úvěru.
reklama
reklama
Mapa
* Umístění na mapě je na základě GPS informací dodaných realitní kanceláří.
* Pozice na mapě je pouze orientační.
Souhlas se zpracováním osobních údajů
Uživatel serveru RealityMIX.cz (dále jen „Server“) dostupného na internetové adrese (URL) https://www.realitymix.cz, který provozuje společnost DALTEN media s.r.o., se sídlem Na Harfě 916/9a, Praha 9, 190 00, IČO: 271 35 306 (dále jen „Správce“) jako provozovateli tohoto Serveru uděluje svůj výslovný souhlas v souladu s ustanovením § 5 zákona č. 101/2000 Sb. O ochraně osobních údajů a o změně některých zákonů, v platném znění (dále jen „zákon o ochraně osobních údajů“), se zpracováním uživatelem poskytnutých osobních údajů a dalších dat.
Uživatel poskytuje Správci osobní údaje v rozsahu: jméno, příjmení, e-mailová adresa, telefonický kontakt a další data, a to z důvodu projeveného zájmu o nemovitost, kde prostřednictvím služby Serveru Správce osloví Uživatel inzerenta uvedeného v detailu
nemovitosti - Bezrealitky s.r.o. (IČ 08063168) se zájmem o jeho služby.
Uživatel tyto osobní údaje poskytuje dobrovolně a bere na vědomí, že součástí služeb Správce, které Správce Uživateli poskytuje, je vyhledání všech Uživateli vyhovujících (dle parametrů - cena, typ nemovitosti, lokalita atd.) nemovitostí. Správce za tímto účelem provozuje aplikace Hlídací pes a newsletter. Tyto služby je možné z každého zaslaného emailu odhlásit. Souhlas se zpracováním osobních údajů Uživatel poskytuje Správci na dobu neurčitou s tím, že svůj udělený souhlas může Uživatel kdykoliv na drese správce info@realitymix.cz odvolat. Správce garantuje Uživateli i další práva uvedené v ustanovení §11 a §21 zákoba č. 101/200 Sb. Ve znění pozdějších předpisů.
Více informací o zpracování údajů získáte zde (realitymix.cz/zasady-ochrany-osobnich-udaju)