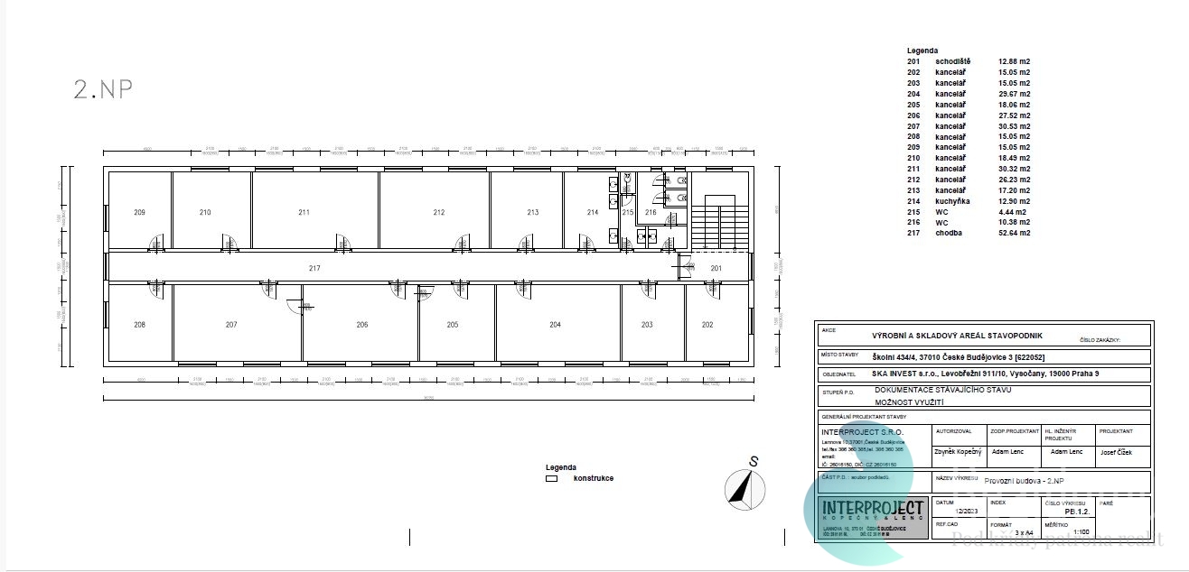
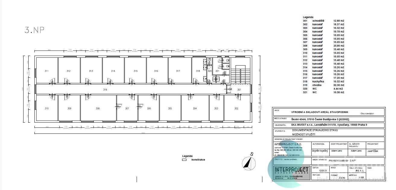
Prodej, administrativní budova, Školní ul., České Budějovice, 1260 m2
REALDOMUS Vám ve výhradním zastoupení majitele zprostředkuje prodej administrativně obchodní budovy v obchodní zóně v ulici Školní v Českých Budějovicích.
Budova je kompletně zrekonstruována a připravena pro zájemce, který si pouze vybere finální úpravu povrchů užitných ploch, jenž budou provedeny na míru dle jeho potřeb a požadavků.
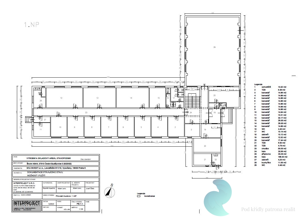
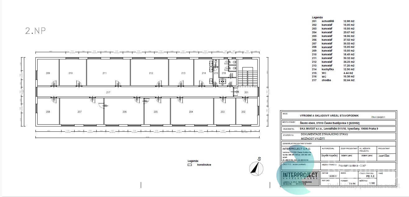
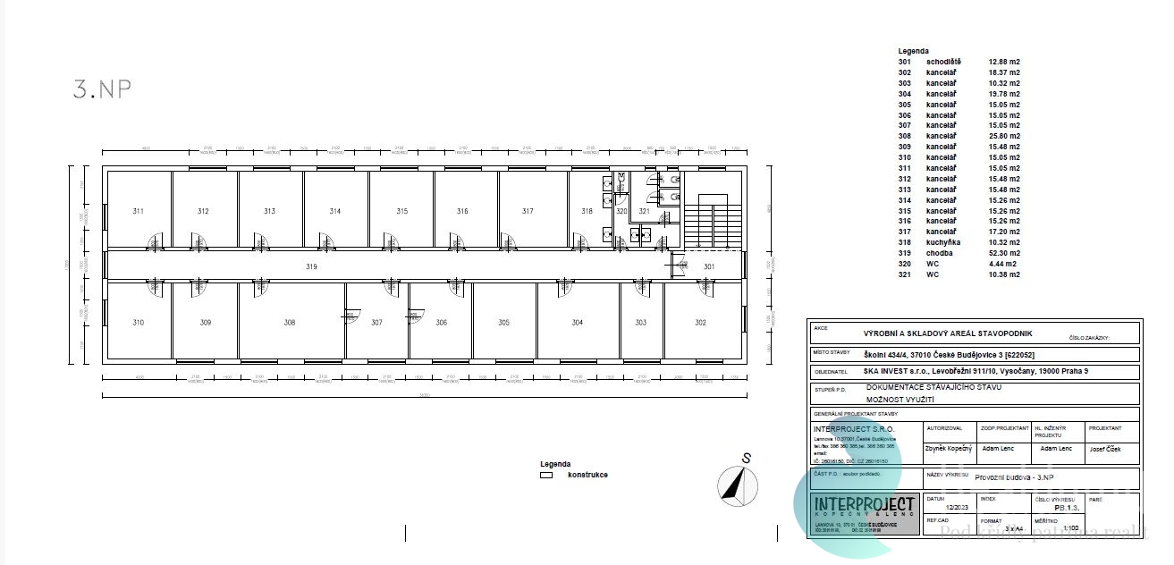
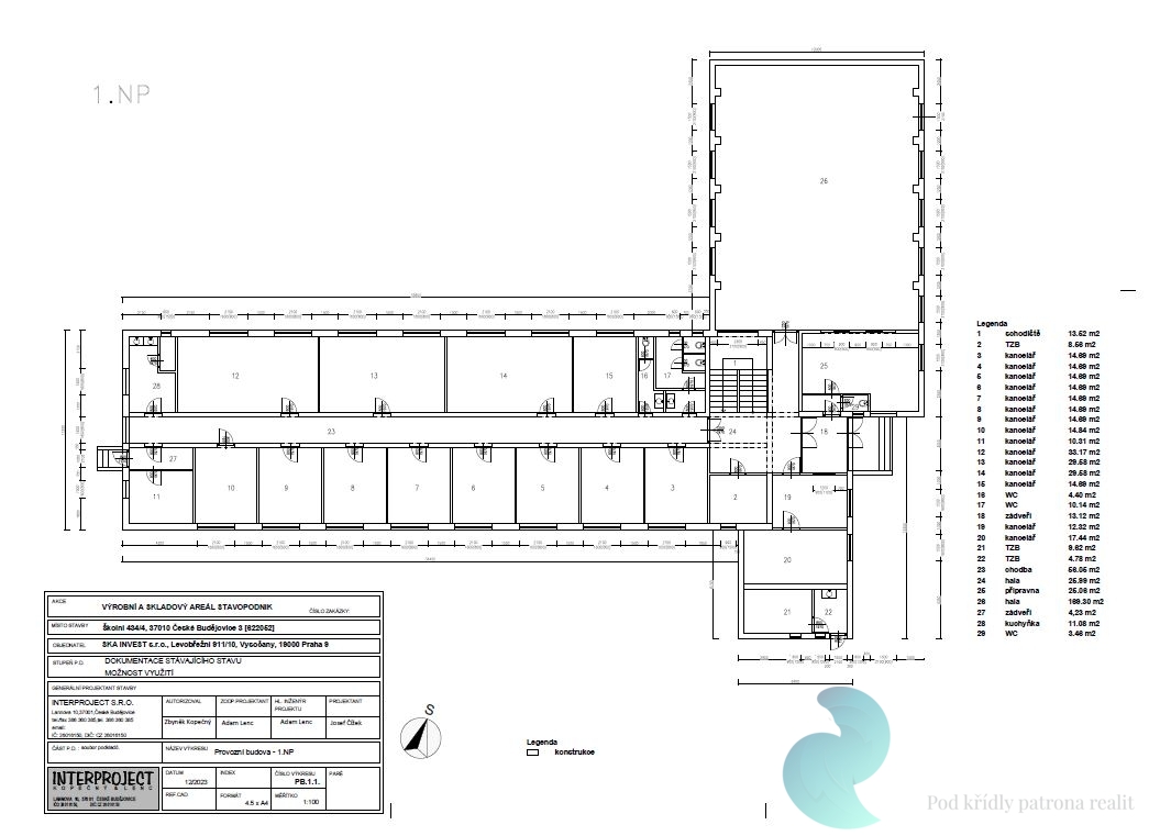
Předmět prodeje je kompletní tří podlažní administrativní budova, která se z 37 kanceláří, archivu, sociálního zázemí a obchodní prostory o výměře 169 m2.
Zájmové budova se nachází v uzavřeném areálu, který je přístupný (24/7) elektronicky ovládanou vjezdovou bránou.
Součástí předmětu prodeje je pozemek před budovou a také ve vnitrobloku o celkové výměře cca. 1.850 m2, které nabízí parkovací kapacity pro osobní i nákladní vozový park.
Bližší technické informace a podmínky transakce Vám poskytne REALDOMUS.
Uživatel serveru RealityMIX.cz (dále jen „Server“) dostupného na internetové adrese (URL) https://www.realitymix.cz, který provozuje společnost DALTEN media s.r.o., se sídlem Na Harfě 916/9a, Praha 9, 190 00, IČO: 271 35 306 (dále jen „Správce“) jako provozovateli tohoto Serveru uděluje svůj výslovný souhlas v souladu s ustanovením § 5 zákona č. 101/2000 Sb. O ochraně osobních údajů a o změně některých zákonů, v platném znění (dále jen „zákon o ochraně osobních údajů“), se zpracováním uživatelem poskytnutých osobních údajů a dalších dat.
Uživatel poskytuje Správci osobní údaje v rozsahu: jméno, příjmení, e-mailová adresa, telefonický kontakt a další data, a to z důvodu projeveného zájmu o nemovitost, kde prostřednictvím služby Serveru Správce osloví Uživatel inzerenta uvedeného v detailu
nemovitosti - REALDOMUS s.r.o. (IČ 26070405) se zájmem o jeho služby.
Uživatel tyto osobní údaje poskytuje dobrovolně a bere na vědomí, že součástí služeb Správce, které Správce Uživateli poskytuje, je vyhledání všech Uživateli vyhovujících (dle parametrů - cena, typ nemovitosti, lokalita atd.) nemovitostí. Správce za tímto účelem provozuje aplikace Hlídací pes a newsletter. Tyto služby je možné z každého zaslaného emailu odhlásit. Souhlas se zpracováním osobních údajů Uživatel poskytuje Správci na dobu neurčitou s tím, že svůj udělený souhlas může Uživatel kdykoliv na drese správce info@realitymix.cz odvolat. Správce garantuje Uživateli i další práva uvedené v ustanovení §11 a §21 zákoba č. 101/200 Sb. Ve znění pozdějších předpisů.
Více informací o zpracování údajů získáte zde (realitymix.cz/zasady-ochrany-osobnich-udaju)