Prodej dvougeneračního domu 135 m2 s pozemkem 388 m2, Suché Vrbné - Č. Budějovice
Nabízíme k prodeji prostorný rodinný dům situovaný na rohové parcele v atraktivní a plně vybavené lokalitě Suché Vrbné, ulice Karla Uhlíře. Objekt je orientován na jihozápad, což zajišťuje dostatek denního světla po celý den. Díky poloze na rohu bloku navíc nabízí výjimečnou možnost vybudování bytového domu, což z něj činí mimořádně zajímavou investiční příležitost.
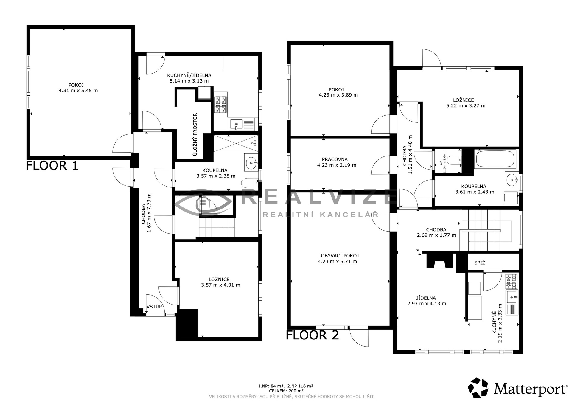
Dispozice nemovitosti
1. patro:
• bytová jednotka 4+kk
• 2 balkony
• světlé a příjemné obytné prostory
Přízemí:
• bytová jednotka 2+kk
• garáž s přímým vstupem
• předzahrádka, zahrada s venkovním posezením
Vybavení a technické parametry
• napojení na veškeré inženýrské sítě
• plastová okna
• plovoucí podlahy, koberce a dlažba podle typu místností
• krb v jídelně, který dodává interiéru atmosféru a poskytuje příjemné teplo
• kombinovaný plynový kotel – ekonomické vytápění i ohřev vody
Lokalita
Dům se nachází v místě s veškerou občanskou vybaveností: školy, školky, obchody, zdravotní služby i zastávky MHD jsou v pohodlné docházkové vzdálenosti. Lokalita nabízí klidné bydlení s výbornou dostupností do centra města.
Pro více informací, kontaktujte makléřku.
Pomocí naší hypoteční kalkulačky si můžete udělat orientační představu o výši měsíčních splátek hypotéky. O vše ostatní se pak postaráme my ve spolupráci s našimi obchodními partnery.
44 496 Kč
* Odhadovaná měsíční splátka vychází z výše úvěru Kč s pevnou úrokovou sazbou % po celou dobu trvání úvěru.
Uživatel serveru RealityMIX.cz (dále jen „Server“) dostupného na internetové adrese (URL) https://www.realitymix.cz, který provozuje společnost DALTEN media s.r.o., se sídlem Na Harfě 916/9a, Praha 9, 190 00, IČO: 271 35 306 (dále jen „Správce“) jako provozovateli tohoto Serveru uděluje svůj výslovný souhlas v souladu s ustanovením § 5 zákona č. 101/2000 Sb. O ochraně osobních údajů a o změně některých zákonů, v platném znění (dále jen „zákon o ochraně osobních údajů“), se zpracováním uživatelem poskytnutých osobních údajů a dalších dat.
Uživatel poskytuje Správci osobní údaje v rozsahu: jméno, příjmení, e-mailová adresa, telefonický kontakt a další data, a to z důvodu projeveného zájmu o nemovitost, kde prostřednictvím služby Serveru Správce osloví Uživatel inzerenta uvedeného v detailu
nemovitosti - RK Realvize s.r.o. (IČ 19893621) se zájmem o jeho služby.
Uživatel tyto osobní údaje poskytuje dobrovolně a bere na vědomí, že součástí služeb Správce, které Správce Uživateli poskytuje, je vyhledání všech Uživateli vyhovujících (dle parametrů - cena, typ nemovitosti, lokalita atd.) nemovitostí. Správce za tímto účelem provozuje aplikace Hlídací pes a newsletter. Tyto služby je možné z každého zaslaného emailu odhlásit. Souhlas se zpracováním osobních údajů Uživatel poskytuje Správci na dobu neurčitou s tím, že svůj udělený souhlas může Uživatel kdykoliv na drese správce info@realitymix.cz odvolat. Správce garantuje Uživateli i další práva uvedené v ustanovení §11 a §21 zákoba č. 101/200 Sb. Ve znění pozdějších předpisů.
Více informací o zpracování údajů získáte zde (realitymix.cz/zasady-ochrany-osobnich-udaju)