Prodej pěkného světlého bytu 3+kk, 66 m2, s terasou (7 m2) a parkovacím stáním, Rudolfovská tř. Česk
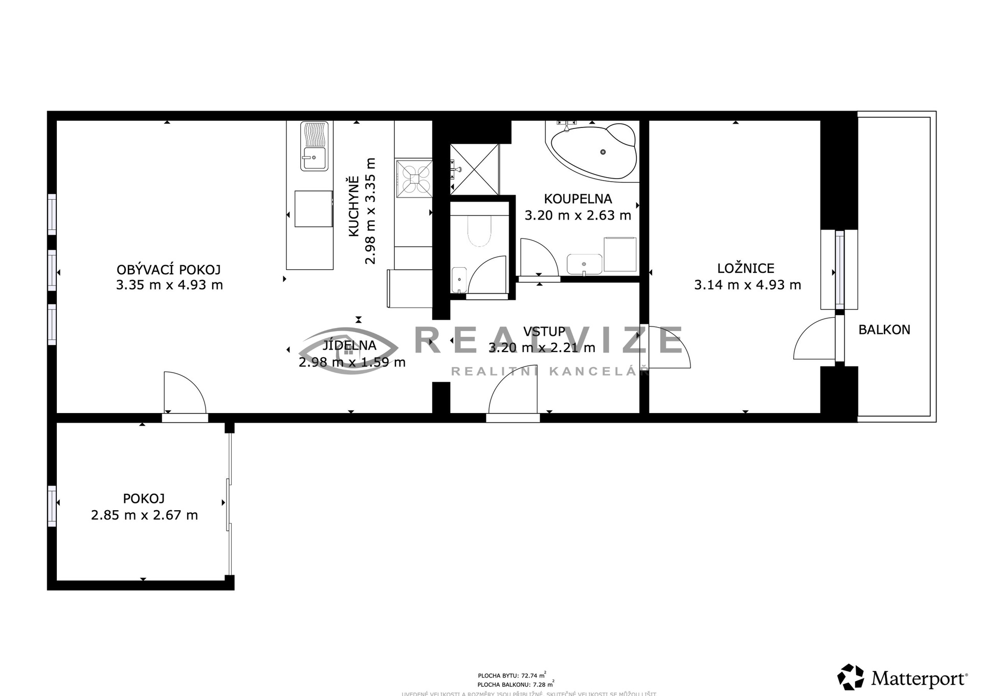
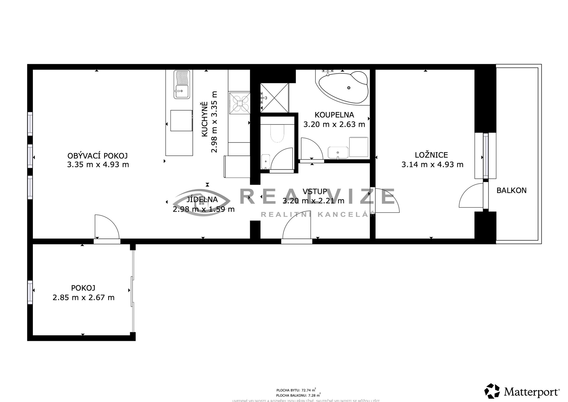
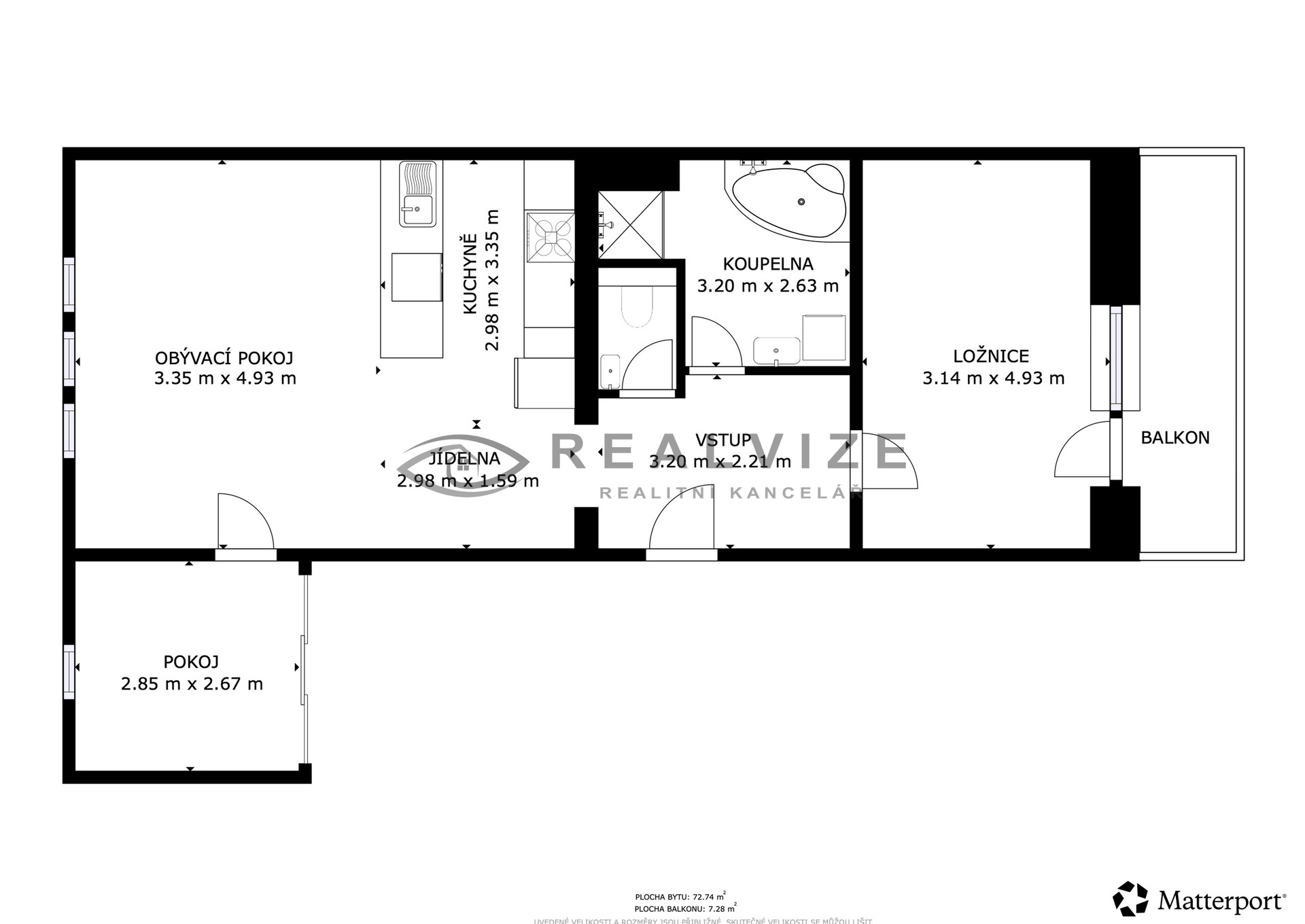
Nabízíme k prodeji velmi pěkný světlý byt 3+kk (cca 66 m2) s terasou (cca 7 m2) orientovanou do vnitrobloku s krásným výhledem na Černou věž a s parkovacím stáním v uzavřeném dvoře. Byt se nachází ve 4. patře (5) zděného bytového domu bez výtahu. Stáří bytu je cca 15 let a je ve velmi pěkném udržovaném stavu. Nabízí se s vybavením, které je vidět na fotkách, ale po dohodě s budoucím kupujícím je možné byt vyklidit. V ložnici je vestavěná prostorná skříň. Střešní okna do ulice jsou dřevěná zn. Velux, v pokoji s terasou jsou okna plastová. Koupelna disponuje rohovou vanou a sprchovým koutem, WC je samostatné. Byt je vytápěn pomocí radiátorů přes centrální plynový kotel pro celý dům, který zajišťuje rovněž ohřev vody. V koupelně je navíc podlahové topení (elektrický rošt) s vlastním ovladačem. Do budoucna se řeší možnost napojení na teplárnu. K dispozici je společný sklep a kolárna.
Součástí kupní ceny je podíl na pozemku v uzavřeném dvoře, kde se nachází parkovací stání k bytu, což je v této lokalitě obrovskou výhodou.
Na náměstí Přemysla Otakara II. dojdete pohodlně za 5 minut.
Byt je volný ihned.
V případě zájmu vám zajistíme výhodné financování.
Pro více informací a termín prohlídky volejte makléřce.
Pomocí naší hypoteční kalkulačky si můžete udělat orientační představu o výši měsíčních splátek hypotéky. O vše ostatní se pak postaráme my ve spolupráci s našimi obchodními partnery.
27 086 Kč
* Odhadovaná měsíční splátka vychází z výše úvěru Kč s pevnou úrokovou sazbou % po celou dobu trvání úvěru.
Prodáváte nemovitost a potřebujete zjistit její reálnou hodnotu?
Uživatel serveru RealityMIX.cz (dále jen „Server“) dostupného na internetové adrese (URL) https://www.realitymix.cz, který provozuje společnost DALTEN media s.r.o., se sídlem Na Harfě 916/9a, Praha 9, 190 00, IČO: 271 35 306 (dále jen „Správce“) jako provozovateli tohoto Serveru uděluje svůj výslovný souhlas v souladu s ustanovením § 5 zákona č. 101/2000 Sb. O ochraně osobních údajů a o změně některých zákonů, v platném znění (dále jen „zákon o ochraně osobních údajů“), se zpracováním uživatelem poskytnutých osobních údajů a dalších dat.
Uživatel poskytuje Správci osobní údaje v rozsahu: jméno, příjmení, e-mailová adresa, telefonický kontakt a další data, a to z důvodu projeveného zájmu o nemovitost, kde prostřednictvím služby Serveru Správce osloví Uživatel inzerenta uvedeného v detailu
nemovitosti - RK Realvize s.r.o. (IČ 19893621) se zájmem o jeho služby.
Uživatel tyto osobní údaje poskytuje dobrovolně a bere na vědomí, že součástí služeb Správce, které Správce Uživateli poskytuje, je vyhledání všech Uživateli vyhovujících (dle parametrů - cena, typ nemovitosti, lokalita atd.) nemovitostí. Správce za tímto účelem provozuje aplikace Hlídací pes a newsletter. Tyto služby je možné z každého zaslaného emailu odhlásit. Souhlas se zpracováním osobních údajů Uživatel poskytuje Správci na dobu neurčitou s tím, že svůj udělený souhlas může Uživatel kdykoliv na drese správce info@realitymix.cz odvolat. Správce garantuje Uživateli i další práva uvedené v ustanovení §11 a §21 zákoba č. 101/200 Sb. Ve znění pozdějších předpisů.
Více informací o zpracování údajů získáte zde (realitymix.cz/zasady-ochrany-osobnich-udaju)