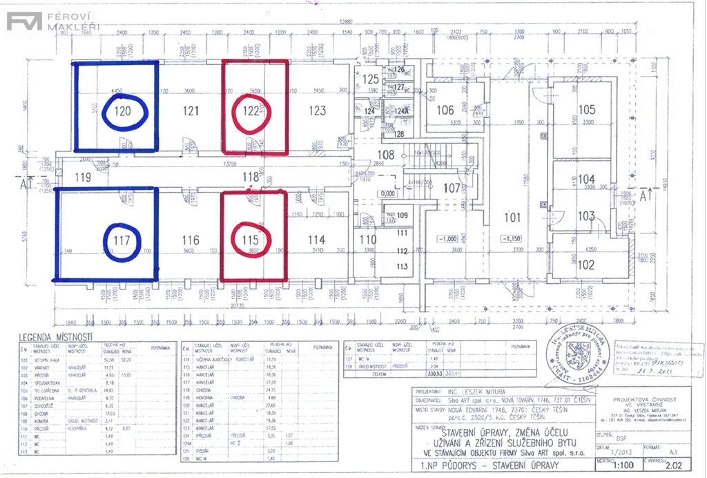
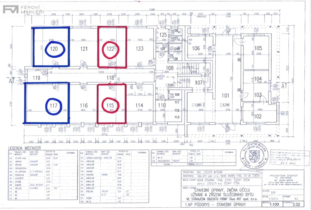
Nabízíme pronájem nebytových prostor na zajímavé adrese za rozumnou cenu. Komerční prostory se nacházejí v oploceném areálu v Českém Těšíně na ulici Nova Tovární. Jedná se o bezpečnou lokalitu s dostatkem parkovacích míst v areálu i mimo areál v těsné blízkosti pronajatých místností. Prostor v budově lze využít jako kanceláře, sklad, dílnu, ateliér nebo provozovnu. Jedná se o 4 místnosti v přízemí, 3 místnosti v prvním patře a 1 velká místnost ve druhém patře. Velikost místností je označena barevně na půdorysu, Červeně do 18 m2 - místnosti č. 115, 122, 215, 216, 217. Modře do 26 m2 místnosti č. 117 a č. 120. Zeleně 76 m2 místnost č. 307. Cena pronájmu včetně vytápění a internetového připojení a používání společné kuchyňky na chodbě a oddělených WC pro muže a ženy je za místnosti 18 m2 3500,- Kč/měsíc, za místnosti do 26 m2 4500,- Kč/měsíc a za největší místnost o velikosti 76,7 m2 je 12000,- Kč/měsíc. Spotřebu elektřiny, vody a tepla si platí nájemce dle vyúčtování skutečné spotřeby. Ke každému pronájmu je povinná měsíční platba za úklid v budově (mytí chodby, schodů, oken, dveří, kuchyňky, wc), údržba zeleně a odklízení sněhu 1000,- Kč. Pokud si nájemce pronajme více kanceláří, bude poskytnuta sleva. Provize RK v ceně jednoho nájmu platí nájemce. V areálu není kantýna, ale je možnost objednat si dovážku jídla dle denní nabídky.
Uživatel serveru RealityMIX.cz (dále jen „Server“) dostupného na internetové adrese (URL) https://www.realitymix.cz, který provozuje společnost DALTEN media s.r.o., se sídlem Na Harfě 916/9a, Praha 9, 190 00, IČO: 271 35 306 (dále jen „Správce“) jako provozovateli tohoto Serveru uděluje svůj výslovný souhlas v souladu s ustanovením § 5 zákona č. 101/2000 Sb. O ochraně osobních údajů a o změně některých zákonů, v platném znění (dále jen „zákon o ochraně osobních údajů“), se zpracováním uživatelem poskytnutých osobních údajů a dalších dat.
Uživatel poskytuje Správci osobní údaje v rozsahu: jméno, příjmení, e-mailová adresa, telefonický kontakt a další data, a to z důvodu projeveného zájmu o nemovitost, kde prostřednictvím služby Serveru Správce osloví Uživatel inzerenta uvedeného v detailu
nemovitosti - Féroví Makléři (IČ 05570743) se zájmem o jeho služby.
Uživatel tyto osobní údaje poskytuje dobrovolně a bere na vědomí, že součástí služeb Správce, které Správce Uživateli poskytuje, je vyhledání všech Uživateli vyhovujících (dle parametrů - cena, typ nemovitosti, lokalita atd.) nemovitostí. Správce za tímto účelem provozuje aplikace Hlídací pes a newsletter. Tyto služby je možné z každého zaslaného emailu odhlásit. Souhlas se zpracováním osobních údajů Uživatel poskytuje Správci na dobu neurčitou s tím, že svůj udělený souhlas může Uživatel kdykoliv na drese správce info@realitymix.cz odvolat. Správce garantuje Uživateli i další práva uvedené v ustanovení §11 a §21 zákoba č. 101/200 Sb. Ve znění pozdějších předpisů.
Více informací o zpracování údajů získáte zde (realitymix.cz/zasady-ochrany-osobnich-udaju)