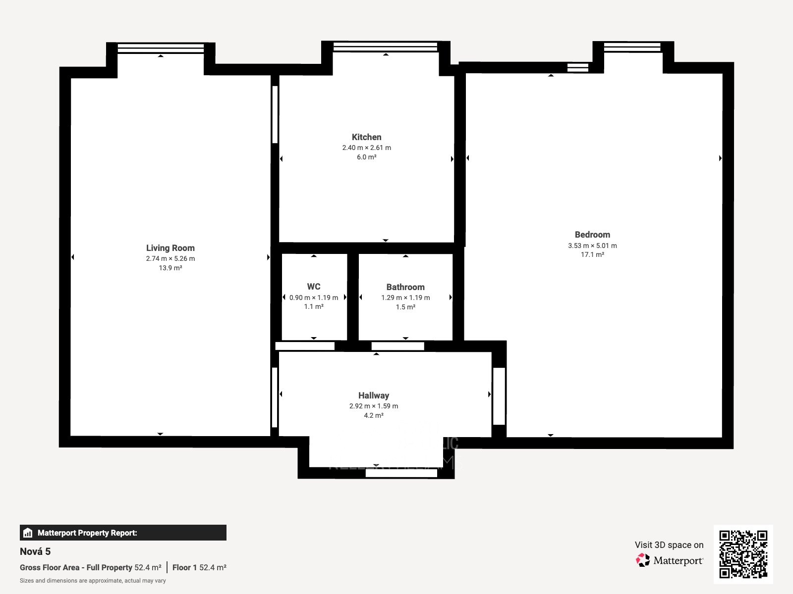
Nabízíme k prodeji vkusně zařízený a prakticky řešený byt o dispozici 2+1 (42,64 m² + dvě sklepní kóje 5,92 m²), který se nachází v klidné části města Cheb, na ulici Nová. Byt je situován ve 1. NP menšího bytového domu, což zajišťuje příjemnou atmosféru, soukromí a klidné bydlení.
Interiér působí útulně a je ve velmi dobrém technickém stavu, byt se prodává kompletně vybavený, takže je připraven k okamžitému užívání bez nutnosti dalších investic. Dispozice je praktická a maximálně využívá dostupný prostor – byt sestává z kuchyně, obývacího pokoje, ložnice, předsíně, koupelny a samostatného WC.
Velkým benefitem jsou francouzská okna v obývacím pokoji a ložnici, která prostor krásně prosvětlují a dodávají mu vzdušnost i příjemnou atmosféru.
Součástí jsou také dvě sklepní kóje, které poskytují nadstandardní úložný prostor.
Lokalita ulice Nová nabízí klidné rezidenční prostředí s výbornou dostupností do centra města Cheb. V okolí najdete veškerou občanskou vybavenost – obchody, služby, školy i zastávky MHD. Zároveň zde oceníte dostatek klidu a příjemné okolí pro každodenní život.
Tento byt představuje skvělou kombinaci praktičnosti, stavu a lokality – ideální volbu pro vlastní bydlení i jako chytrou investici s dlouhodobým potenciálem.
V případě zájmu o více informací nebo sjednání prohlídky mě neváhejte kontaktovat.
Pomocí naší hypoteční kalkulačky si můžete udělat orientační představu o výši měsíčních splátek hypotéky. O vše ostatní se pak postaráme my ve spolupráci s našimi obchodními partnery.
12 106 Kč
* Odhadovaná měsíční splátka vychází z výše úvěru Kč s pevnou úrokovou sazbou % po celou dobu trvání úvěru.
Prodáváte nemovitost a potřebujete zjistit její reálnou hodnotu?
Uživatel serveru RealityMIX.cz (dále jen „Server“) dostupného na internetové adrese (URL) https://www.realitymix.cz, který provozuje společnost DALTEN media s.r.o., se sídlem Na Harfě 916/9a, Praha 9, 190 00, IČO: 271 35 306 (dále jen „Správce“) jako provozovateli tohoto Serveru uděluje svůj výslovný souhlas v souladu s ustanovením § 5 zákona č. 101/2000 Sb. O ochraně osobních údajů a o změně některých zákonů, v platném znění (dále jen „zákon o ochraně osobních údajů“), se zpracováním uživatelem poskytnutých osobních údajů a dalších dat.
Uživatel poskytuje Správci osobní údaje v rozsahu: jméno, příjmení, e-mailová adresa, telefonický kontakt a další data, a to z důvodu projeveného zájmu o nemovitost, kde prostřednictvím služby Serveru Správce osloví Uživatel inzerenta uvedeného v detailu
nemovitosti - Keller Williams Czech Republic (IČ 07796340) se zájmem o jeho služby. Tato společnost je součástí seskupení/sítě/franšízového modelu realitních kanceláří, jejich seznam můžete zobrazit kliknutím na tento odkaz.
Keller Williams Czech Republic (IČ 07796340) , Nemovito by Keller Williams (IČ 10826971) , Keller Williams Czech Republic (IČ 07796340) , Keller Williams - centrála (IČ 06521924)
Uživatel tyto osobní údaje poskytuje dobrovolně a bere na vědomí, že součástí služeb Správce, které Správce Uživateli poskytuje, je vyhledání všech Uživateli vyhovujících (dle parametrů - cena, typ nemovitosti, lokalita atd.) nemovitostí. Správce za tímto účelem provozuje aplikace Hlídací pes a newsletter. Tyto služby je možné z každého zaslaného emailu odhlásit. Souhlas se zpracováním osobních údajů Uživatel poskytuje Správci na dobu neurčitou s tím, že svůj udělený souhlas může Uživatel kdykoliv na drese správce info@realitymix.cz odvolat. Správce garantuje Uživateli i další práva uvedené v ustanovení §11 a §21 zákoba č. 101/200 Sb. Ve znění pozdějších předpisů.
Více informací o zpracování údajů získáte zde (realitymix.cz/zasady-ochrany-osobnich-udaju)