Nabízíme k prodeji rodinný dům k částečné rekonstrukci na prostorném pozemku o rozloze 5664 m², situovaný v klidné a malebné vsi Zdeslavice, obec Chlístovice, okres Kutná Hora.
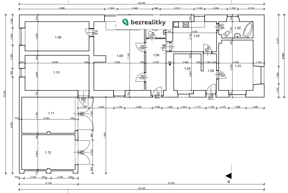
Dům má aktuálně dispozici 2+1 (70 m²), která je po rekonstrukci (nové rozvody elektřiny, vody, topení, sádrokartonové zateplené podhledy, plastová okna).Další dvě místnosti před rekonstrukcí v přízemí po dokončení nabídnou ještě
58 m². Celková podlahová plocha 1.NP činí 128 m².
Podkroví pak poskytne dalších velkorysých 130 m² a je připraveno na půdní vestavbu (vyvedena voda, odpady). Projekt půdní vestavby je součástí prodeje.
Celkově je možné tedy dosáhnout podlahové plochy 258 m².
Dům má nový krov a střechu krytou betonovou střešní krytinou KM Beta. Pod nezrekonstruovanou částí přízemí se nachází sklep s vodním pramenem vhodný k uskladnění ovoce a zeleniny.
Nemovitost je napojena na elektřinu, obecní vodovod a obecní kanalizaci, vytápění zajišťuje kotel na TP 5. emisní třídy do radiátorů. Máme již cenovou nabídku na změnu vytápění domu kotlem na pelety či tepelným čerpadlem.
Přímo u domu je studna, která je napojena do domácí vodárny umístěné ve sklepě a voda z ní slouží k zalévání zahrady v období sucha.
Nově je dům opatřen fasádou před dokončením.
Součástí nezrekonstruované části nemovitosti je další místnost 24 m² (bývalý chlév) s vchodem zvenčí, o kterou je možné obytnou část ještě rozšířit. Na ni pak navazuje přístavba prostorného dřevníku a garáže, které je možno též přetvořit dle vašich představ.
Naproti domu se nachází stavení se sedlovou střechou k rekonstrukci o zastavěné ploše cca 42 m², do kterého je přivedena elektřina.
Rozlehlá zahrada o 3184 m² s jezírkem, ořešákem, třešní, jabloněmi, švestkami, okrasnými dřevinami a zeleninovými záhony bezprostředně navazuje na dům, dalších 2480 m² zemědělské půdy je vzdálených pouhých 100 m od domu u místního rybníka.
Velikost pozemku nabízí možnost oddělení dvou stavebních parcel s vlastními příjezdy (v územním plánu obce se jedná o území určené k bydlení), a tím snadno financovat zbývající rekonstrukci.
Maringotka není součástí prodeje.
Zdeslavice jsou malá a velmi klidná obec obklopená krásnou přírodou, která osloví především zájemce hledající soukromí, venkovskou atmosféru, čisté ovzduší a únik z ruchu města. V dochozí vzdálenosti je les ideální k procházkám, cyklistice i dalším volnočasovým aktivitám a blízké rybníky Pastvický a Vidlák nabízejí v létě příjemné koupání.
Výhodou je také dobrá dopravní dostupnost. Spojení s Kutnou Horou a Kácovem zajišťuje autobus, autem jste v Kutné Hoře za 13 minut, v Praze na Chodově pak za 57 minut. Železniční zastávka je vzdálena 2,5 km, tj. cca 40 min pěší chůze.
Obchod se smíšeným zbožím a výdejní místo PPL se nachází v blízkých Chlístovicích (2 km), kompletní občanskou vybavenost pak naleznete v nedaleké Kutné Hoře, v Kolíně nebo Čáslavi.
V případě rychlého a spolehlivého jednání je možná i sleva. Tato nemovitost je určena výhradně přímým zájemcům o koupi. Na inzerát můžete také reagovat přímo na webu Bezrealitky.
Pomocí naší hypoteční kalkulačky si můžete udělat orientační představu o výši měsíčních splátek hypotéky. O vše ostatní se pak postaráme my ve spolupráci s našimi obchodními partnery.
27 936 Kč
* Odhadovaná měsíční splátka vychází z výše úvěru Kč s pevnou úrokovou sazbou % po celou dobu trvání úvěru.
reklama
reklama
Mapa
* Umístění na mapě je na základě GPS informací dodaných realitní kanceláří.
* Pozice na mapě je pouze orientační.
Souhlas se zpracováním osobních údajů
Uživatel serveru RealityMIX.cz (dále jen „Server“) dostupného na internetové adrese (URL) https://www.realitymix.cz, který provozuje společnost DALTEN media s.r.o., se sídlem Na Harfě 916/9a, Praha 9, 190 00, IČO: 271 35 306 (dále jen „Správce“) jako provozovateli tohoto Serveru uděluje svůj výslovný souhlas v souladu s ustanovením § 5 zákona č. 101/2000 Sb. O ochraně osobních údajů a o změně některých zákonů, v platném znění (dále jen „zákon o ochraně osobních údajů“), se zpracováním uživatelem poskytnutých osobních údajů a dalších dat.
Uživatel poskytuje Správci osobní údaje v rozsahu: jméno, příjmení, e-mailová adresa, telefonický kontakt a další data, a to z důvodu projeveného zájmu o nemovitost, kde prostřednictvím služby Serveru Správce osloví Uživatel inzerenta uvedeného v detailu
nemovitosti - Bezrealitky s.r.o. (IČ 08063168) se zájmem o jeho služby.
Uživatel tyto osobní údaje poskytuje dobrovolně a bere na vědomí, že součástí služeb Správce, které Správce Uživateli poskytuje, je vyhledání všech Uživateli vyhovujících (dle parametrů - cena, typ nemovitosti, lokalita atd.) nemovitostí. Správce za tímto účelem provozuje aplikace Hlídací pes a newsletter. Tyto služby je možné z každého zaslaného emailu odhlásit. Souhlas se zpracováním osobních údajů Uživatel poskytuje Správci na dobu neurčitou s tím, že svůj udělený souhlas může Uživatel kdykoliv na drese správce info@realitymix.cz odvolat. Správce garantuje Uživateli i další práva uvedené v ustanovení §11 a §21 zákoba č. 101/200 Sb. Ve znění pozdějších předpisů.
Více informací o zpracování údajů získáte zde (realitymix.cz/zasady-ochrany-osobnich-udaju)