Prodej usedlosti s možností vybudování 13 apartmánů, Lutová, Chlum u Třeboně
POZOR, usedlost s možností přestavby na apartmánové nebo vícegenerační bydlení za cenu bytu!
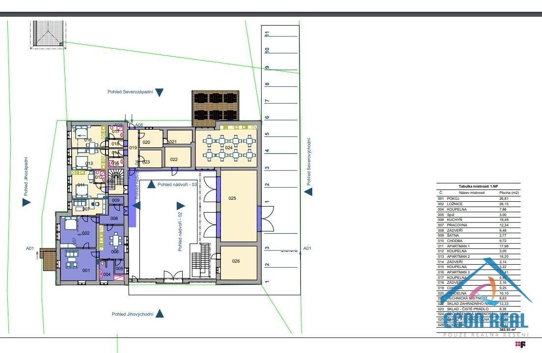
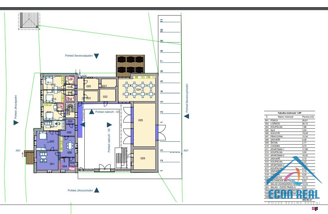
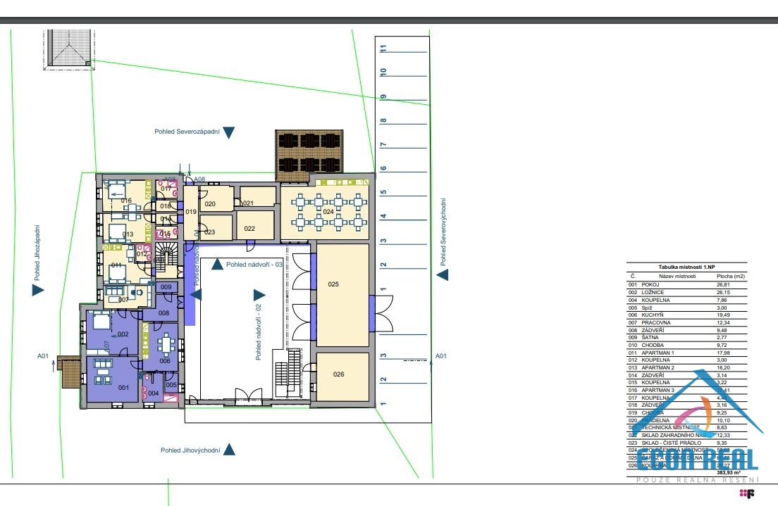
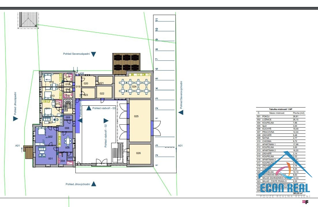
V nádherné krajině lesů, luk a rybníků, v blízkosti Třeboně a jejích krás a v přímém dosahu turistických a cyklistických tras, si Vám společnost ECON REAL dovoluje nabídnout prodej bývalé zemědělské usedlosti v obci Lutová, Chlum u Třeboně, s prostornou zahradou, připravené k realizaci investičního záměru apartmánového bydlení nejen na prázdniny, a to ve vyhledávaném okresu Jindřichův Hradec. Nemovitost s přilehlými pozemky, v blízkosti romantických rybníků a v zalesněné krajině, se prodává včetně funkčního 80m vrtu na dodávku vody, stávajícího vybavení a části materiálu na přestavbu.
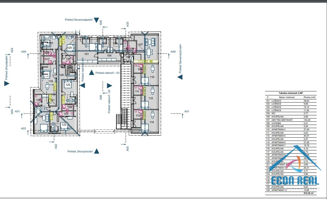
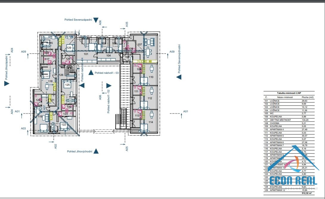
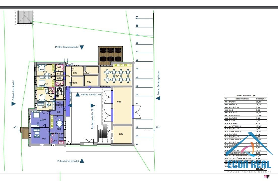
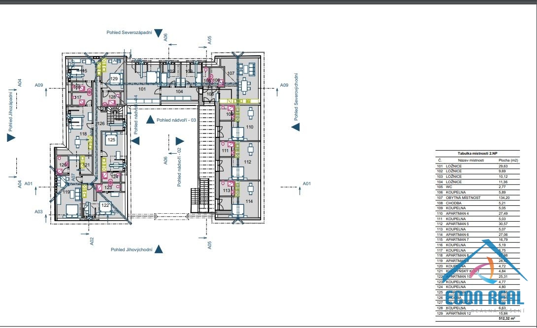
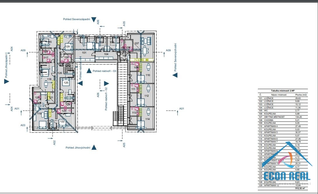
Možnost převzetí i zahradní techniky. Také budou zanechány stavební "schozy", čerpadlo - nautila a elektromagnetické filtry na vodu. Součástí prodeje je i studie řešení, návrh energetické nezávislosti stavby a vydaný projekt na dokončení penzionu se správcovským bytem, 13 apartmány pro rekreační účely, společenským zázemím a zahradou.
Nemovitost má vlastní zdroj vody 80 m. vrt, je připojena na elektrickou síť a v bezprostřední blízkosti usedlosti je i přípojka plynu. V rámci studie bylo počítáno s vytápění pomocí tepelného čerpadla. V nemovitosti byly očištěny zdi tzv. na cihlu, byl již realizován rozvod vody, dokončeny odpady, téměř dokončeny příčky v přízemí dle plánu a byl proveden vrt 80 metrů hluboký poskytující v podstatě nevyčerpatelnou zásobu pitné vody.
Půda je vyčištěná od dlažby a podsypu. Jímka je řešena s přepadem k čističce sousední nemovitosti, v návrhu řešení jsou i solární panely a tepelná čerpadla , která ze stavby dělají tzv. "ostrov" bez jakékoliv potřeby z venčí. Nemovitosti nejsou součástí obchodního majetku. Pro více informací kontaktujte makléře nemovitosti. Stavební povolení v ceně bude předáno dle potřeb zájemce. Možné využití nemovitostí jak pro podnikání, tak i pro vlastní bydlení.
Cena:
5 590 000 Kč
Poznámka:
V ceně vše včetně materiálu, techniky, právního servisu, advokátní úschovy a provize RK
Pomocí naší hypoteční kalkulačky si můžete udělat orientační představu o výši měsíčních splátek hypotéky. O vše ostatní se pak postaráme my ve spolupráci s našimi obchodními partnery.
22 632 Kč
* Odhadovaná měsíční splátka vychází z výše úvěru Kč s pevnou úrokovou sazbou % po celou dobu trvání úvěru.
Uživatel serveru RealityMIX.cz (dále jen „Server“) dostupného na internetové adrese (URL) https://www.realitymix.cz, který provozuje společnost DALTEN media s.r.o., se sídlem Na Harfě 916/9a, Praha 9, 190 00, IČO: 271 35 306 (dále jen „Správce“) jako provozovateli tohoto Serveru uděluje svůj výslovný souhlas v souladu s ustanovením § 5 zákona č. 101/2000 Sb. O ochraně osobních údajů a o změně některých zákonů, v platném znění (dále jen „zákon o ochraně osobních údajů“), se zpracováním uživatelem poskytnutých osobních údajů a dalších dat.
Uživatel poskytuje Správci osobní údaje v rozsahu: jméno, příjmení, e-mailová adresa, telefonický kontakt a další data, a to z důvodu projeveného zájmu o nemovitost, kde prostřednictvím služby Serveru Správce osloví Uživatel inzerenta uvedeného v detailu
nemovitosti - ECON REAL s.r.o. (IČ 28176588) se zájmem o jeho služby.
Uživatel tyto osobní údaje poskytuje dobrovolně a bere na vědomí, že součástí služeb Správce, které Správce Uživateli poskytuje, je vyhledání všech Uživateli vyhovujících (dle parametrů - cena, typ nemovitosti, lokalita atd.) nemovitostí. Správce za tímto účelem provozuje aplikace Hlídací pes a newsletter. Tyto služby je možné z každého zaslaného emailu odhlásit. Souhlas se zpracováním osobních údajů Uživatel poskytuje Správci na dobu neurčitou s tím, že svůj udělený souhlas může Uživatel kdykoliv na drese správce info@realitymix.cz odvolat. Správce garantuje Uživateli i další práva uvedené v ustanovení §11 a §21 zákoba č. 101/200 Sb. Ve znění pozdějších předpisů.
Více informací o zpracování údajů získáte zde (realitymix.cz/zasady-ochrany-osobnich-udaju)