Upozornění: Tato nabídka je rezervována konkrétním zájemcem a v rezervační lhůtě není k dispozici! S radostí vám představujeme novinku v nabídce - pro stornou bytovou jednotku 4+kk v první etapě výstavby moderního rezidenčního projektu Residence Karlovka, v Chotěvicích. Jedná se o krásné místo v podkrkonoší - 5min. do Hostinného, 20min. do Trutnova a Dvora Králové, 25min. do Vrchlabí.
Výstavba právě odstartovala a jednotky jsou nyní v prodeji - jde o skvělou příležitost pro ty, kdo chtějí spojit komfort bydlení v domě s výhodami moderní novostavby v krásné a klidné lokalitě.
Byt (C) je součástí trojdomu, a díky vlastní zahradě, terase a dvěma parkovacím místům nabízí plnohodnotný komfort srovnatelný s bydlením v rodinném domě. K dispozici je navíc i dobíjecí stanice pro elektromobil.
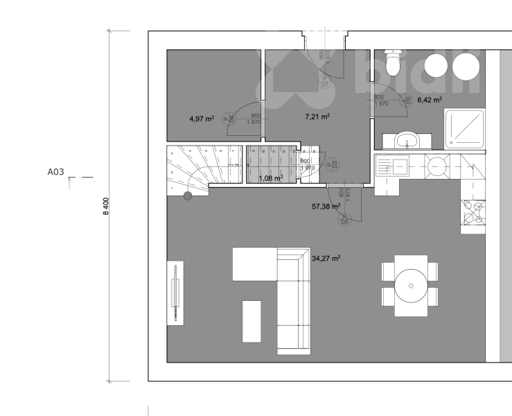
Dispozice a provedení:
Celková podlahová plocha bytu je 104 m2, k bytu náleží terasa o velikosti 15m2 a zahrada o výměře 315 m2. V přízemí se nachází prostorný obývací pokoj propojený s jídelnou a kuchyní, ze kterého je vstup na terasu a zahradu. V patře jsou tři samostatné ložnice. V každém patře je jedna koupelna.
Moderní technologie a vybavení:
Byt je vytápěn podlahovým topením napojeným na tepelné čerpadlo, které zajistí příjemné teplo a nízké provozní náklady. Dům je napojen na elektřinu, obecní vodovod a kanalizaci a je připraven pro připojení k vysokorychlostnímu internetu.
Tato jednotka je navíc vybavena vlastní fotovoltaickou elektrárnou o výkonu 5,4 kWp s bateriovým úložištěm 10 kWh, určenou pro ohřev vody.
Jednotka se prodává ve stavu "na klíč, tedy kompletně dokončená a připravená k nastěhování - bez kuchyňské linky, aby si nový majitel mohl zvolit řešení přesně podle svých představ. Vybrat si můžete i finální podobu interiérových prvků - podlahy, obklady, sanitu i interiérové dveře.
Chotěvice nabízí klidné prostředí s krásnými výhledy do krajiny a celodenním slunečním svitem. V obci je mateřská i základní škola, která je vzdálená jen 4 minuty jízdy autem. Navíc nedaleko domu vede cyklostezka, po které se děti dostanou ke škole bezpečně mimo hlavní silnici. V blízkosti se nachází i dětské hřiště, kulturní zázemí obce a příroda ideální pro aktivní životní styl.
V nabídce jsou aktuálně ještě další dvě jednotky.
Neváhejte se ozvat pro více informací.
Výhodné financování Vám rádi zdarma zajistíme.
Uživatel serveru RealityMIX.cz (dále jen „Server“) dostupného na internetové adrese (URL) https://www.realitymix.cz, který provozuje společnost DALTEN media s.r.o., se sídlem Na Harfě 916/9a, Praha 9, 190 00, IČO: 271 35 306 (dále jen „Správce“) jako provozovateli tohoto Serveru uděluje svůj výslovný souhlas v souladu s ustanovením § 5 zákona č. 101/2000 Sb. O ochraně osobních údajů a o změně některých zákonů, v platném znění (dále jen „zákon o ochraně osobních údajů“), se zpracováním uživatelem poskytnutých osobních údajů a dalších dat.
Uživatel poskytuje Správci osobní údaje v rozsahu: jméno, příjmení, e-mailová adresa, telefonický kontakt a další data, a to z důvodu projeveného zájmu o nemovitost, kde prostřednictvím služby Serveru Správce osloví Uživatel inzerenta uvedeného v detailu
nemovitosti - Bidli reality, a.s. (IČ 06790763) se zájmem o jeho služby. Tato společnost je součástí seskupení/sítě/franšízového modelu realitních kanceláří, jejich seznam můžete zobrazit kliknutím na tento odkaz.
Hypocentrum modré pyramidy - Praha (IČ ) , Hypocentrum modré pyramidy - Brno (IČ ) , Hypocentrum Modré pyramidy - Hradec Králové (IČ ) , Hypocentrum Modré pyramidy - České Budějovice (IČ ) , Hypocentrum Modré pyramidy - Pardubice (IČ ) , Hypocentrum Modré pyramidy - Plzeň (IČ ) , Hypocentrum Modré pyramidy - Ústí nad Labem (IČ ) , Hypocentrum Modré pyramidy - Ostrava (IČ ) , Hypocentrum Modré pyramidy - Olomouc (IČ ) , Bidli reality, a.s. (IČ 06790763)
Uživatel tyto osobní údaje poskytuje dobrovolně a bere na vědomí, že součástí služeb Správce, které Správce Uživateli poskytuje, je vyhledání všech Uživateli vyhovujících (dle parametrů - cena, typ nemovitosti, lokalita atd.) nemovitostí. Správce za tímto účelem provozuje aplikace Hlídací pes a newsletter. Tyto služby je možné z každého zaslaného emailu odhlásit. Souhlas se zpracováním osobních údajů Uživatel poskytuje Správci na dobu neurčitou s tím, že svůj udělený souhlas může Uživatel kdykoliv na drese správce info@realitymix.cz odvolat. Správce garantuje Uživateli i další práva uvedené v ustanovení §11 a §21 zákoba č. 101/200 Sb. Ve znění pozdějších předpisů.
Více informací o zpracování údajů získáte zde (realitymix.cz/zasady-ochrany-osobnich-udaju)