Dům s projektem pro kreativní a komerční využití v srdci Chotouně, okr. Kolín
Dům s projektem pro kreativní a komerční využití v srdci Chotouně, okr. Kolín
Hledáte místo pro vlastní ateliér, dílnu, kavárnu nebo komunitní centrum s bydlením pod jednou střechou? Pak právě tento dům v Chotouni může být Vaším novým projektem!
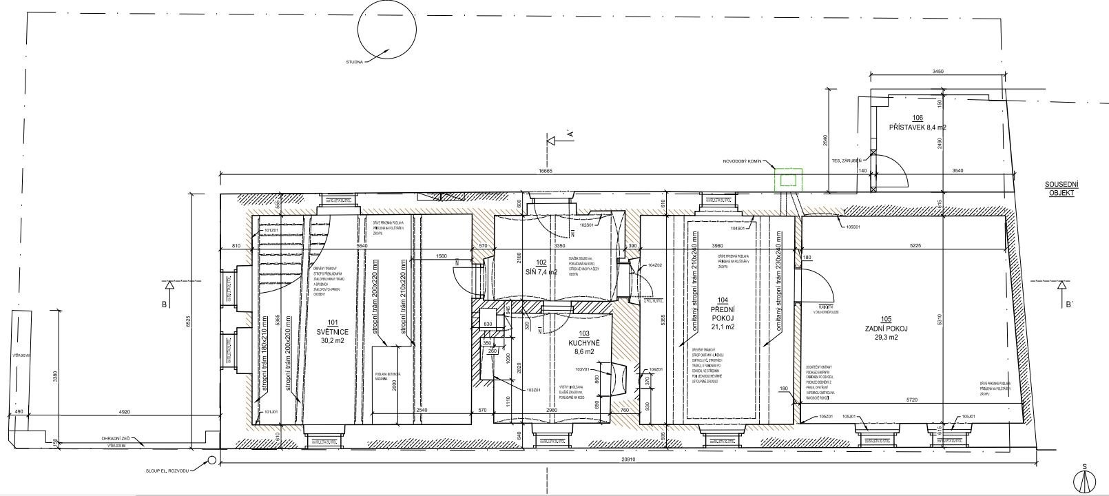
Nabízíme jedinečnou nemovitost o celkové ploše 293 m² (z toho 147 m² zastavěná plocha) s již schváleným projektem a stavebním povolením na kompletní obnovu. Dům je součástí bývalé zemědělské usedlosti s historickým šarmem – ideální prostor pro multifunkční využití.:
- Prostorem pro dílny, workshopy nebo showroom
- Zázemím pro kavárnu, galerie nebo komunitní aktivity
- Bydlením v horním patře s možností vytvoření krásného mezonetu
Interiér nyní zahrnuje vstupní chodbu, kuchyň, tři pokoje a přístavek. Dům má tradiční kamenné zdivo s nepálenými cihlami, trámové stropy a sedlovou střechu. Konstrukce je ve stabilním stavu – ideální základ pro novou vizi bez nutnosti zásadních stavebních zásahů.
Chotouň – poklidná lokalita s duší, kde minulost potkává současnost. Jen 25 minut jízdy autem do Prahy. Zastávka autobusu přímo u domu, vlaková dostupnost z Poříčan nebo Klučova. Kompletní občanská vybavenost v Českém Brodě.
Pokud hledáte místo, kde spojíte podnikání s kreativou a životním stylem – jste na správné adrese.
Zavolejte mi, ráda Vám tuto inspirativní nemovitost osobně představím.
Pomocí naší hypoteční kalkulačky si můžete udělat orientační představu o výši měsíčních splátek hypotéky. O vše ostatní se pak postaráme my ve spolupráci s našimi obchodními partnery.
14 980 Kč
* Odhadovaná měsíční splátka vychází z výše úvěru Kč s pevnou úrokovou sazbou % po celou dobu trvání úvěru.
Uživatel serveru RealityMIX.cz (dále jen „Server“) dostupného na internetové adrese (URL) https://www.realitymix.cz, který provozuje společnost DALTEN media s.r.o., se sídlem Na Harfě 916/9a, Praha 9, 190 00, IČO: 271 35 306 (dále jen „Správce“) jako provozovateli tohoto Serveru uděluje svůj výslovný souhlas v souladu s ustanovením § 5 zákona č. 101/2000 Sb. O ochraně osobních údajů a o změně některých zákonů, v platném znění (dále jen „zákon o ochraně osobních údajů“), se zpracováním uživatelem poskytnutých osobních údajů a dalších dat.
Uživatel poskytuje Správci osobní údaje v rozsahu: jméno, příjmení, e-mailová adresa, telefonický kontakt a další data, a to z důvodu projeveného zájmu o nemovitost, kde prostřednictvím služby Serveru Správce osloví Uživatel inzerenta uvedeného v detailu
nemovitosti - Keller Williams Czech Republic (IČ 07796340) se zájmem o jeho služby. Tato společnost je součástí seskupení/sítě/franšízového modelu realitních kanceláří, jejich seznam můžete zobrazit kliknutím na tento odkaz.
Keller Williams Czech Republic (IČ 07796340) , Nemovito by Keller Williams (IČ 10826971) , Keller Williams Czech Republic (IČ 07796340) , Keller Williams - centrála (IČ 06521924)
Uživatel tyto osobní údaje poskytuje dobrovolně a bere na vědomí, že součástí služeb Správce, které Správce Uživateli poskytuje, je vyhledání všech Uživateli vyhovujících (dle parametrů - cena, typ nemovitosti, lokalita atd.) nemovitostí. Správce za tímto účelem provozuje aplikace Hlídací pes a newsletter. Tyto služby je možné z každého zaslaného emailu odhlásit. Souhlas se zpracováním osobních údajů Uživatel poskytuje Správci na dobu neurčitou s tím, že svůj udělený souhlas může Uživatel kdykoliv na drese správce info@realitymix.cz odvolat. Správce garantuje Uživateli i další práva uvedené v ustanovení §11 a §21 zákoba č. 101/200 Sb. Ve znění pozdějších předpisů.
Více informací o zpracování údajů získáte zde (realitymix.cz/zasady-ochrany-osobnich-udaju)