Prodej komerčního objektu - nájemního domu v centru Chrudimi, 3 byty (210 m2), 3 nebyty (140 m2)
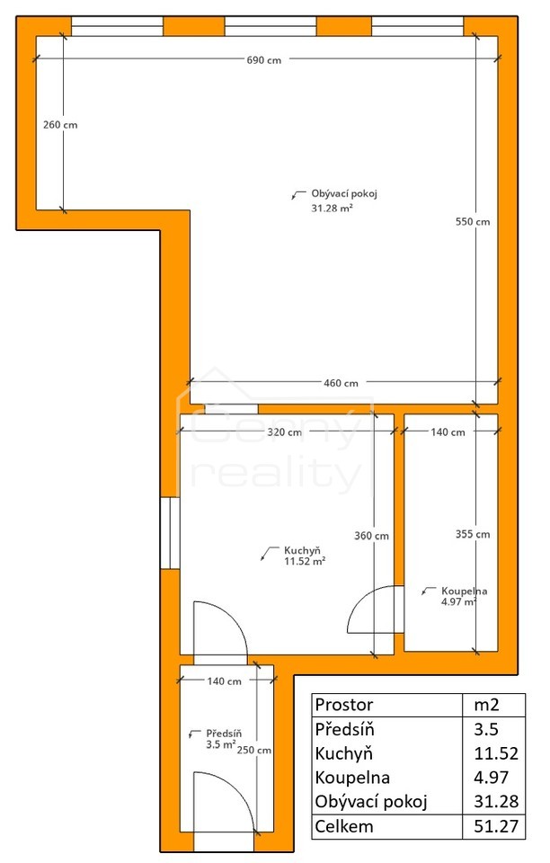
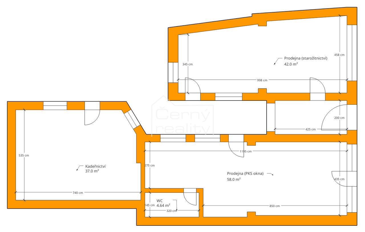
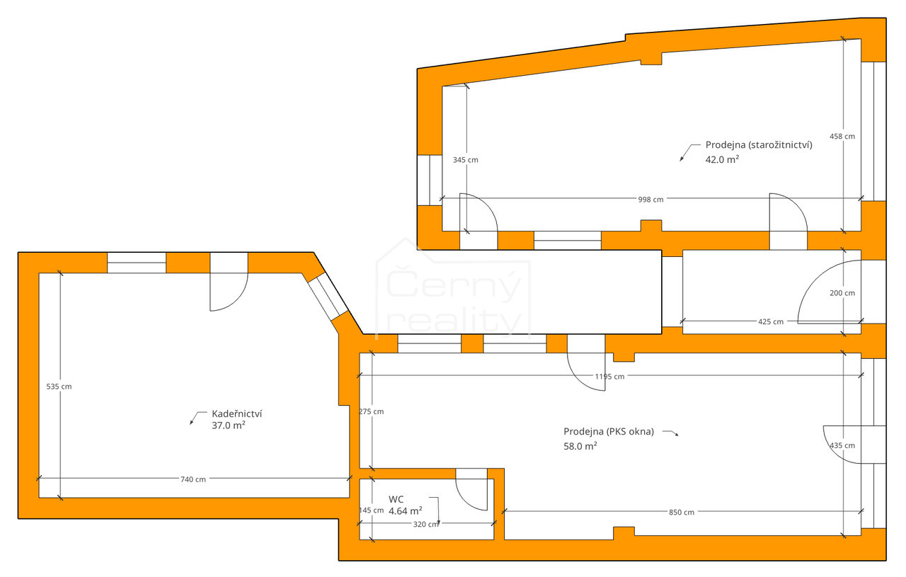
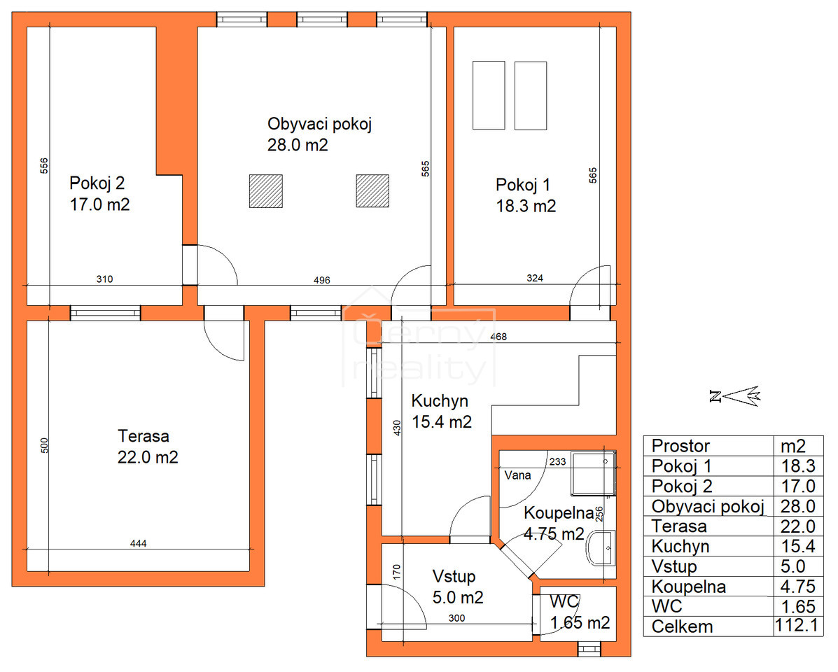
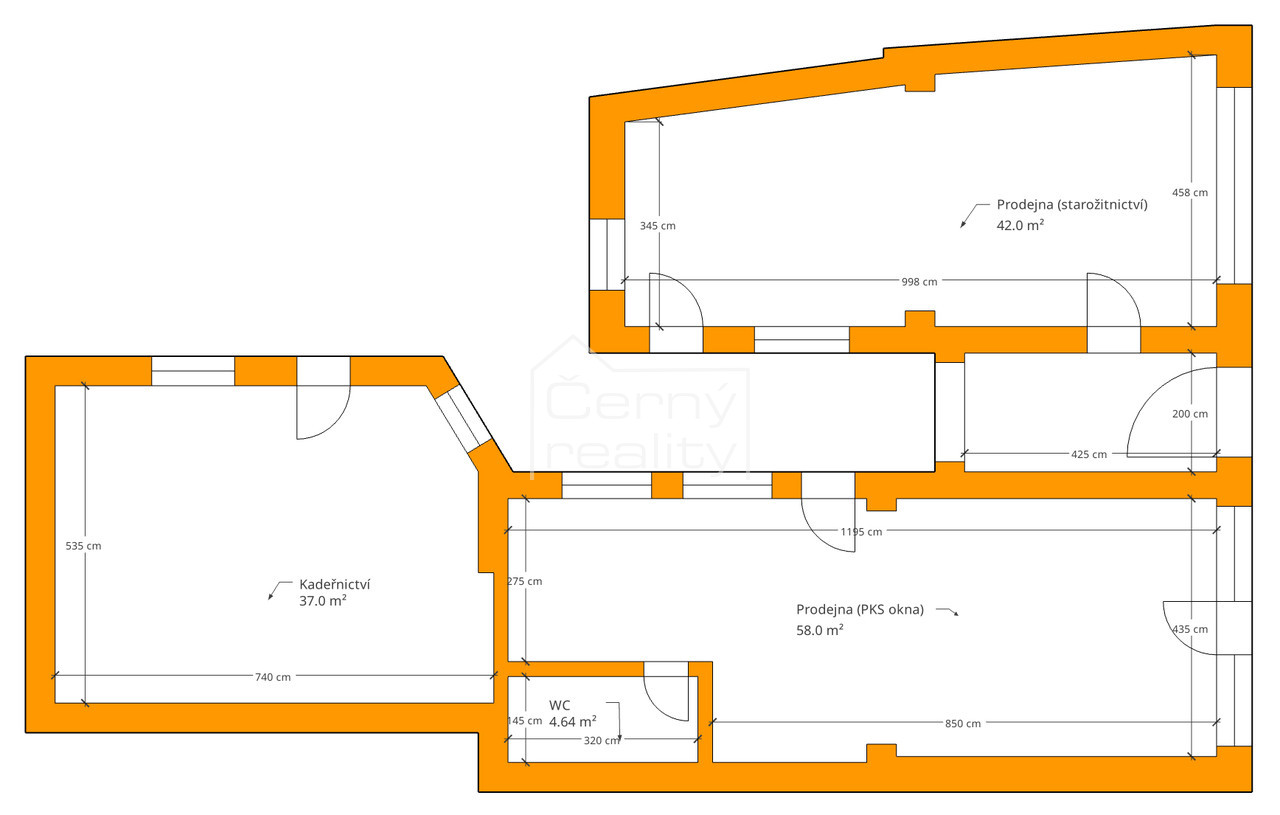
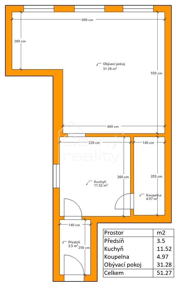
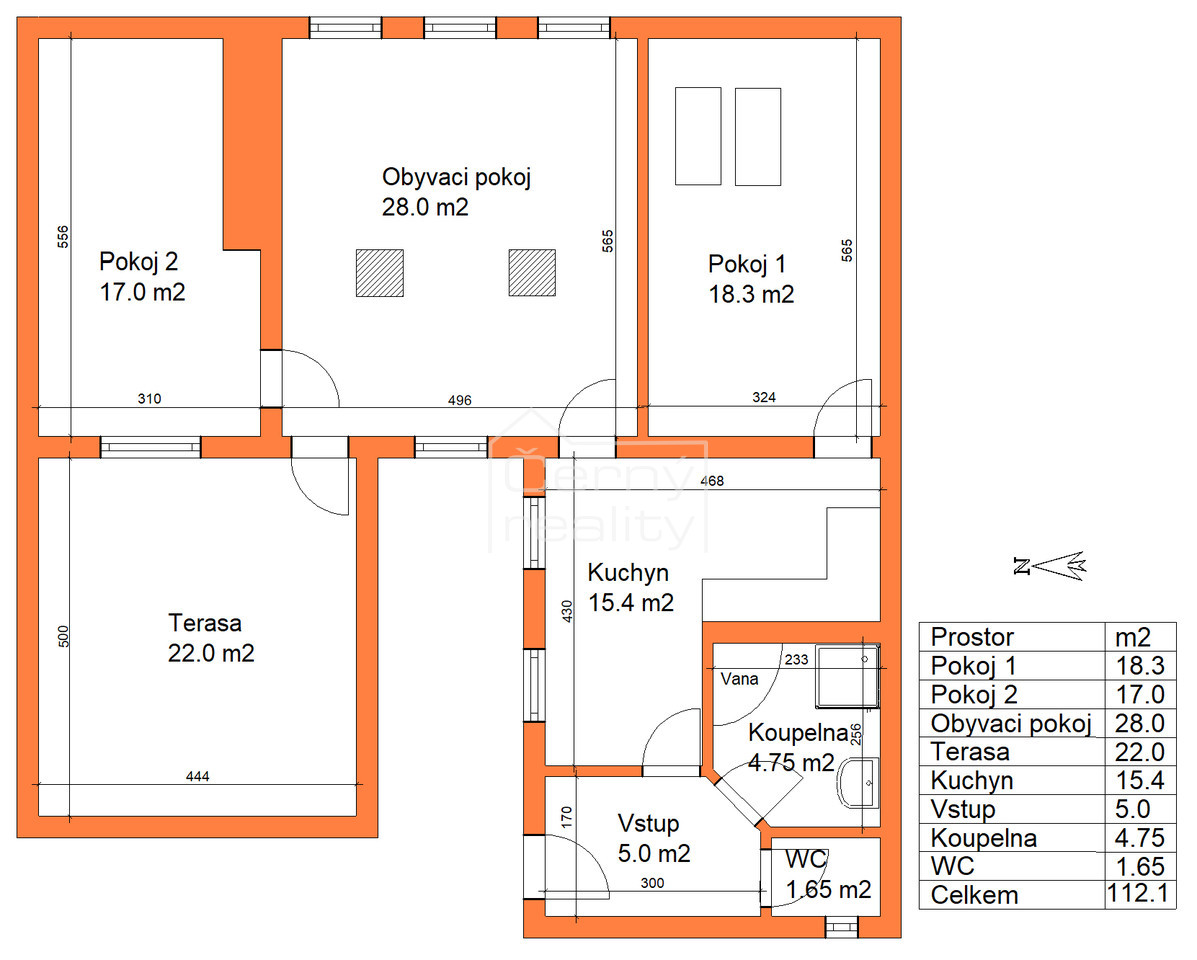
Prodej komerčního objektu (350 m2) se stabilním výnosem 4% p.a., tzn. 780 tis.Kč/ rok, resp. 65 tis./měsíc, v centru Chrudimi, na adrese, Soukenická č.p. 155, Chrudim. Jedná se o komerční objekt v centru Chrudimi, který prošel zásadní rekonstrukcí v letech 2004 - 2024. V přízemí se nachází 3 nebytové prostory, o plochách 58 m2 (pks okna), 42 m2 (starožitnictví) a 37 m2 (kadeřnictví) + dvorek 24 m2.V 1.patře jsou 2 bytové jednotky 2+kk, o plochách 47 m2 a 52 m2 + společná terasa 35 m2.Ve 2.patře se nachází byt 3+1 o ploše 110 m2 (88 m2 byt + terasa 22 m2).Výnos z nájemného je 760 tis.Kč/rok. Dispozice podlaží : 1.NP : 1) PKS okna - showroom 55 m2, WC 3 m2, celkem 58 m22) Starožitnictví - showroom 42 m2, WC 1,5 m2 (v patře),společná umývárna 3,5 m2 (v patře) 3) Kadeřnictví - showroom 37 m2, WC 1,5 m2 (v patře), společná umývárna 3,5 m2 (v patře). 2.NP:Byt 1+1, 47 m2 (dispozice : kuchyň 11,50 m2, vchod 2,9 m2, koupelna s WC 3,30 m2, obývací pokoj 29 m2) Byt 1+1, 52 m2+ terasa 35 m2 (dispozice : vchod 4 m2, kuchyň s jídelnou 12,50 m2, koupelna s WC 5 m2, obývací pokoj 30,50 m2).3.NP:Byt 3+1, 88 m2 + terasa 22m2, (dispozice: vstup 5,5 m2, koupelna 4,75 m2, WC 1,65 m2, kuchyň s jídelnou 15,5 m2, pokoj se střešními okny 18,30 m2, obývací pokoj 28 m2, pokoj s oknem do terasy 17 m2). Dům je v udržovaném stavu. Nachází se v atraktivní lokalitě v centru města, pod širokými schody. Celková plocha pozemku je 230 m2. Kvalitní investice se stabilním výnosem, Doporučujeme prohlídku. ID 155025.
Pomocí naší hypoteční kalkulačky si můžete udělat orientační představu o výši měsíčních splátek hypotéky. O vše ostatní se pak postaráme my ve spolupráci s našimi obchodními partnery.
79 962 Kč
* Odhadovaná měsíční splátka vychází z výše úvěru Kč s pevnou úrokovou sazbou % po celou dobu trvání úvěru.
Uživatel serveru RealityMIX.cz (dále jen „Server“) dostupného na internetové adrese (URL) https://www.realitymix.cz, který provozuje společnost DALTEN media s.r.o., se sídlem Na Harfě 916/9a, Praha 9, 190 00, IČO: 271 35 306 (dále jen „Správce“) jako provozovateli tohoto Serveru uděluje svůj výslovný souhlas v souladu s ustanovením § 5 zákona č. 101/2000 Sb. O ochraně osobních údajů a o změně některých zákonů, v platném znění (dále jen „zákon o ochraně osobních údajů“), se zpracováním uživatelem poskytnutých osobních údajů a dalších dat.
Uživatel poskytuje Správci osobní údaje v rozsahu: jméno, příjmení, e-mailová adresa, telefonický kontakt a další data, a to z důvodu projeveného zájmu o nemovitost, kde prostřednictvím služby Serveru Správce osloví Uživatel inzerenta uvedeného v detailu
nemovitosti - Reality Černý s.r.o. (IČ 62064304) se zájmem o jeho služby.
Uživatel tyto osobní údaje poskytuje dobrovolně a bere na vědomí, že součástí služeb Správce, které Správce Uživateli poskytuje, je vyhledání všech Uživateli vyhovujících (dle parametrů - cena, typ nemovitosti, lokalita atd.) nemovitostí. Správce za tímto účelem provozuje aplikace Hlídací pes a newsletter. Tyto služby je možné z každého zaslaného emailu odhlásit. Souhlas se zpracováním osobních údajů Uživatel poskytuje Správci na dobu neurčitou s tím, že svůj udělený souhlas může Uživatel kdykoliv na drese správce info@realitymix.cz odvolat. Správce garantuje Uživateli i další práva uvedené v ustanovení §11 a §21 zákoba č. 101/200 Sb. Ve znění pozdějších předpisů.
Více informací o zpracování údajů získáte zde (realitymix.cz/zasady-ochrany-osobnich-udaju)