Nabízíme k prodeji prostorný a světlý rodinný dům o dispozici 6+kk, který se nachází v klidné části města Chrudim.
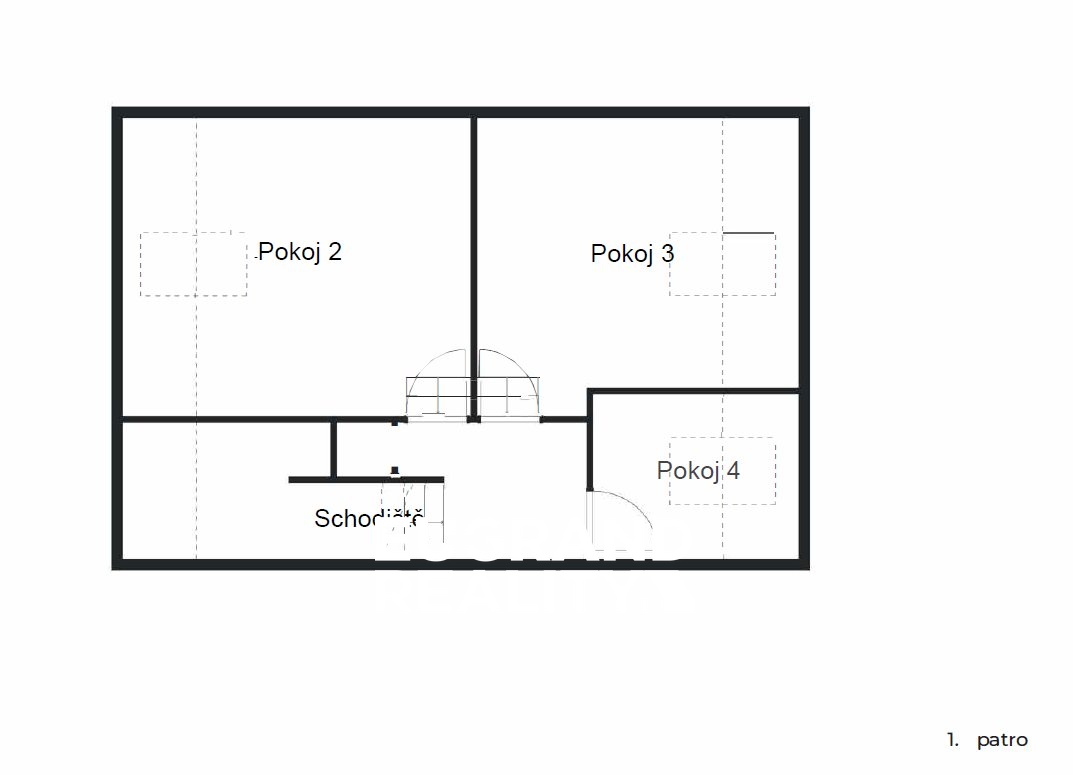
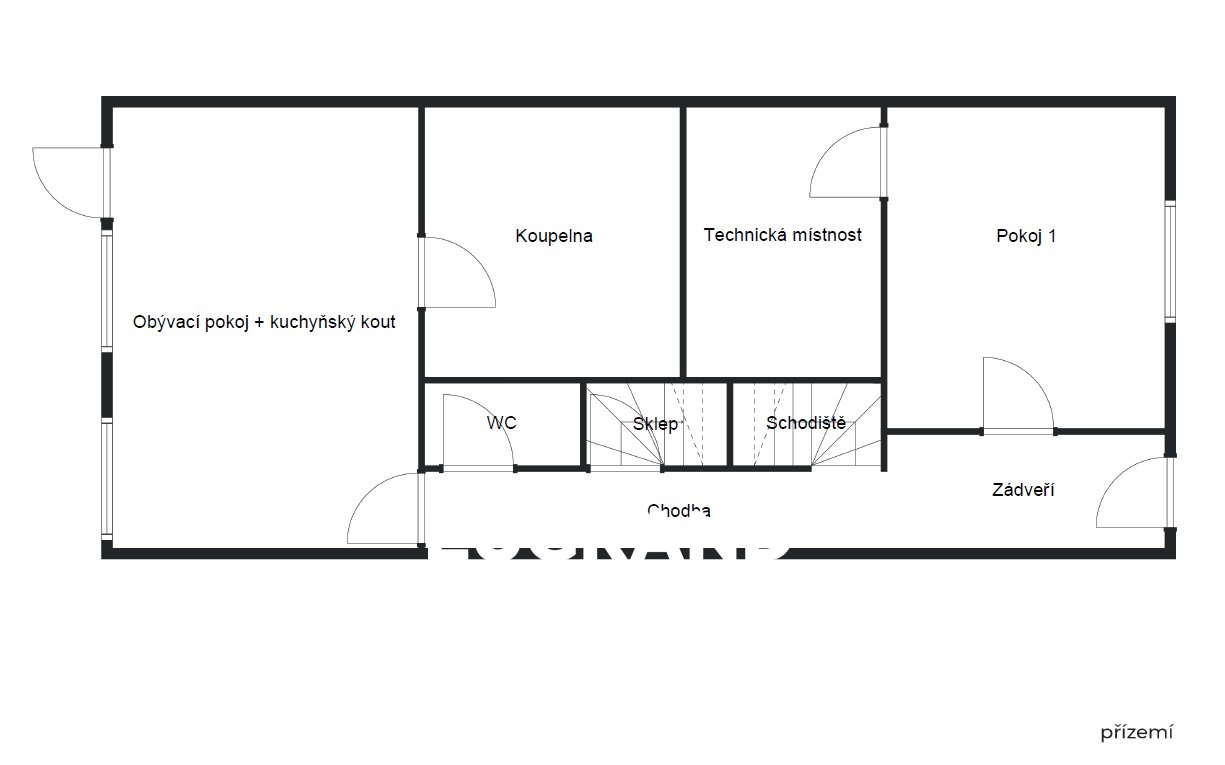
RD je situován na východní hranici pozemku o celkové velikosti 528 m². Jedná se o částečně podsklepený, řadový dům s jedním nadzemním podlažím a obytným podkrovím. Objekt je připojen na veřejné rozvody – vodovod, kanalizace, plyn. Současně disponuje i studnou. Dům je vytápěn plynovým kotlem, který se nachází v technické místnosti (viz plánek přízemí - fotografie).
Dominantní místností domu je obývací pokoj s kuchyňským koutem, z kterého vedou dveře přímo na slunnou terasu, která nabízí ideální zázemí pro grilování či posezení s přáteli.
Dům je ideální volbou pro ty, kteří hledají prostor pro realizaci domova dle vlastních představ. Inzerát obsahuje i několik vizualizací, které slouží jako inspirace pro možnou proměnu prostorů.
V okolí naleznete veškerou občanskou vybavenost, výborná dostupnost do centra města i nedalekých Pardubic. (20 minut jízdy autem)
Nemovitost lze financovat hypotečním úvěrem, s kterým Vám rádi pomůžeme.
Více informací u makléře. Budeme se těšit na osobní setkání.
Pomocí naší hypoteční kalkulačky si můžete udělat orientační představu o výši měsíčních splátek hypotéky. O vše ostatní se pak postaráme my ve spolupráci s našimi obchodními partnery.
27 122 Kč
* Odhadovaná měsíční splátka vychází z výše úvěru Kč s pevnou úrokovou sazbou % po celou dobu trvání úvěru.
Uživatel serveru RealityMIX.cz (dále jen „Server“) dostupného na internetové adrese (URL) https://www.realitymix.cz, který provozuje společnost DALTEN media s.r.o., se sídlem Na Harfě 916/9a, Praha 9, 190 00, IČO: 271 35 306 (dále jen „Správce“) jako provozovateli tohoto Serveru uděluje svůj výslovný souhlas v souladu s ustanovením § 5 zákona č. 101/2000 Sb. O ochraně osobních údajů a o změně některých zákonů, v platném znění (dále jen „zákon o ochraně osobních údajů“), se zpracováním uživatelem poskytnutých osobních údajů a dalších dat.
Uživatel poskytuje Správci osobní údaje v rozsahu: jméno, příjmení, e-mailová adresa, telefonický kontakt a další data, a to z důvodu projeveného zájmu o nemovitost, kde prostřednictvím služby Serveru Správce osloví Uživatel inzerenta uvedeného v detailu
nemovitosti - EU - Grand REALITY s.r.o. (IČ 25498410) se zájmem o jeho služby.
Uživatel tyto osobní údaje poskytuje dobrovolně a bere na vědomí, že součástí služeb Správce, které Správce Uživateli poskytuje, je vyhledání všech Uživateli vyhovujících (dle parametrů - cena, typ nemovitosti, lokalita atd.) nemovitostí. Správce za tímto účelem provozuje aplikace Hlídací pes a newsletter. Tyto služby je možné z každého zaslaného emailu odhlásit. Souhlas se zpracováním osobních údajů Uživatel poskytuje Správci na dobu neurčitou s tím, že svůj udělený souhlas může Uživatel kdykoliv na drese správce info@realitymix.cz odvolat. Správce garantuje Uživateli i další práva uvedené v ustanovení §11 a §21 zákoba č. 101/200 Sb. Ve znění pozdějších předpisů.
Více informací o zpracování údajů získáte zde (realitymix.cz/zasady-ochrany-osobnich-udaju)