Prodej domu s projektem na přestavbu na 3 byty v Čími, okes Příbram
Nabízíme exkluzivně k prodeji dům s projektem na přestavbu na 3 bytové jednotky.
Nabízíme exkluzivně k prodeji Společnost s ručením omezeným, v jejímž výlučném vlastnictví je dům s pozemke, na katastru vedený jako občanská vybavenost. Tento projekt je součástí prodeje. Prodávají předloží účetnictví a zajistí audit.
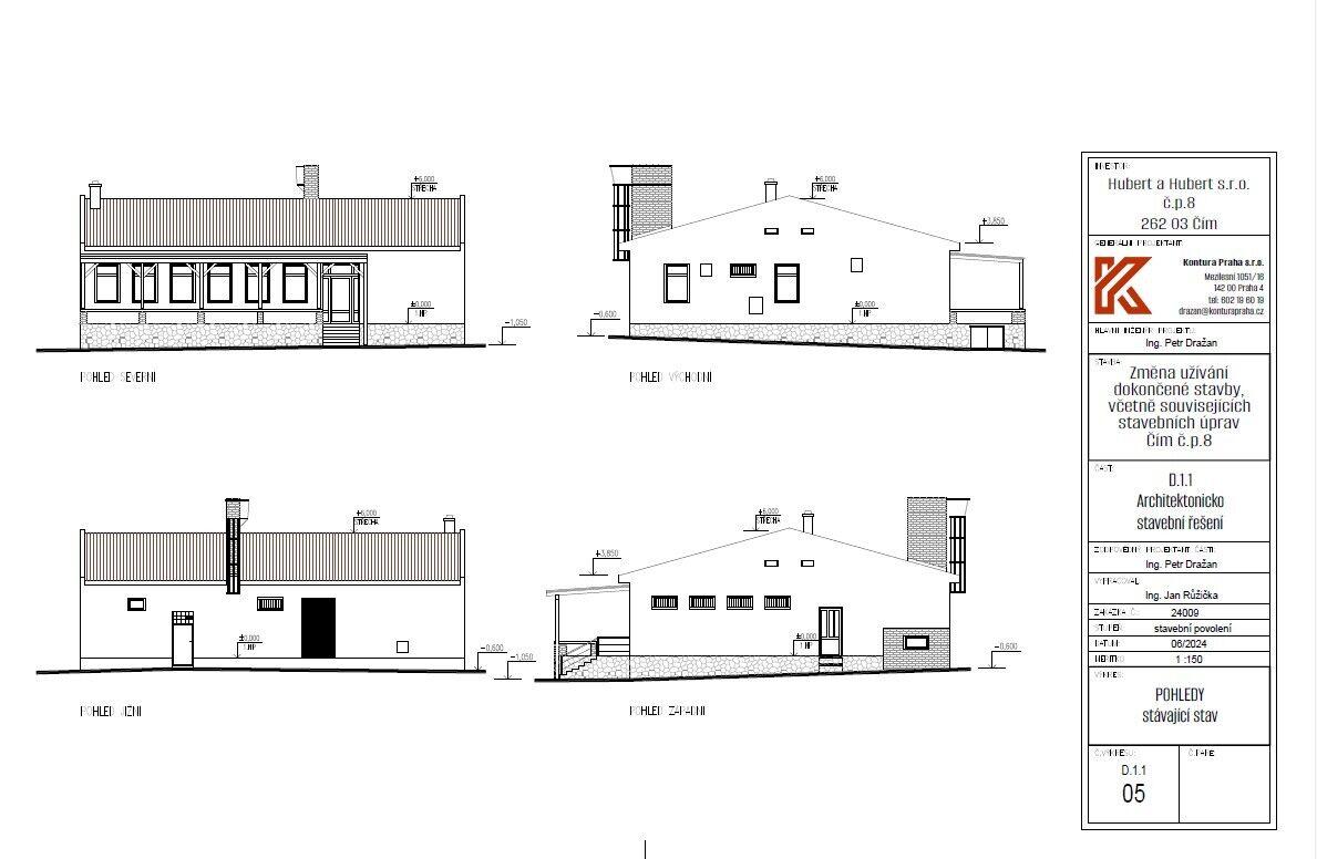
Doposud byl objekt využíván jako restaurace. K domu patří terasa. Vlastní studna + kanalizace. Elektřina 230/400 W. Jistič 32 A.
Topení - elektrokotel a kotel na tuhá paliva s podavačem. Bojler.
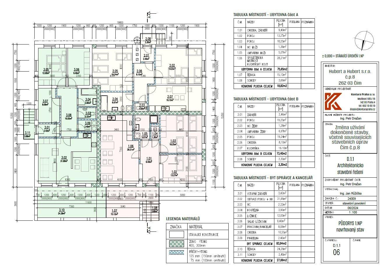
Projekt na přestavbu na 3 bytové jednotky je v ceně.
Byty: A) 75,65 m2 + terasa 15,12 m2 + schody 3,69 m2
B) 73,40 m2 + schody 3,3 m2
C) byt správce 83,94 m2 + terasa 24,9 m2 + schody 2,4 m2
Pozemek celkem 718 m2.
Kompletní dokumentaci na přestavbu zašleme na vyžádání.
Pomocí naší hypoteční kalkulačky si můžete udělat orientační představu o výši měsíčních splátek hypotéky. O vše ostatní se pak postaráme my ve spolupráci s našimi obchodními partnery.
21 863 Kč
* Odhadovaná měsíční splátka vychází z výše úvěru Kč s pevnou úrokovou sazbou % po celou dobu trvání úvěru.
Uživatel serveru RealityMIX.cz (dále jen „Server“) dostupného na internetové adrese (URL) https://www.realitymix.cz, který provozuje společnost DALTEN media s.r.o., se sídlem Na Harfě 916/9a, Praha 9, 190 00, IČO: 271 35 306 (dále jen „Správce“) jako provozovateli tohoto Serveru uděluje svůj výslovný souhlas v souladu s ustanovením § 5 zákona č. 101/2000 Sb. O ochraně osobních údajů a o změně některých zákonů, v platném znění (dále jen „zákon o ochraně osobních údajů“), se zpracováním uživatelem poskytnutých osobních údajů a dalších dat.
Uživatel poskytuje Správci osobní údaje v rozsahu: jméno, příjmení, e-mailová adresa, telefonický kontakt a další data, a to z důvodu projeveného zájmu o nemovitost, kde prostřednictvím služby Serveru Správce osloví Uživatel inzerenta uvedeného v detailu
nemovitosti - Šolc REALITY s.r.o. (IČ 26445212) se zájmem o jeho služby.
Uživatel tyto osobní údaje poskytuje dobrovolně a bere na vědomí, že součástí služeb Správce, které Správce Uživateli poskytuje, je vyhledání všech Uživateli vyhovujících (dle parametrů - cena, typ nemovitosti, lokalita atd.) nemovitostí. Správce za tímto účelem provozuje aplikace Hlídací pes a newsletter. Tyto služby je možné z každého zaslaného emailu odhlásit. Souhlas se zpracováním osobních údajů Uživatel poskytuje Správci na dobu neurčitou s tím, že svůj udělený souhlas může Uživatel kdykoliv na drese správce info@realitymix.cz odvolat. Správce garantuje Uživateli i další práva uvedené v ustanovení §11 a §21 zákoba č. 101/200 Sb. Ve znění pozdějších předpisů.
Více informací o zpracování údajů získáte zde (realitymix.cz/zasady-ochrany-osobnich-udaju)