Ráda bych Vám představila k prodeji částečně zrekonstruovaný rodinný dům se zahradou, pergolou a garáží v Přešíně, na Plzni jihu.
Podívejte se na samostatnou stránku domu na odkazu z video prohlídky.
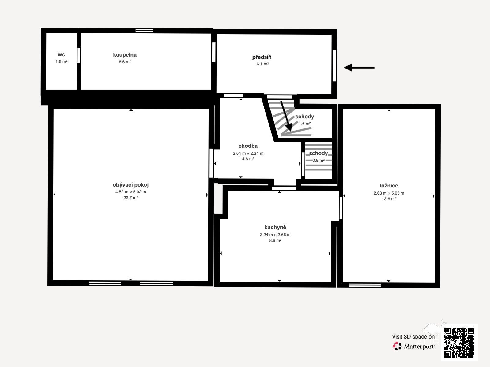
Dům je z části podsklepený, dispozičně řešený jako 2+1 s půdním prostorem. Nemovitost prošla postupně v letech 2004–2015 řadou rekonstrukcí a úprav, mezi které patří například:
> nová elektřina v mědi
> zateplení, nová plynová přípojka
> 2024 nový plynový sporák s elektrickou troubou
> 2015 nové podlahy
> 2012 nové plastové vstupní dveře
> 2011 nová plastová okna s 2 skly v obývacím pokoji, kuchyni a ložnici
> 2006 plynová přípojka
> 2005 vrt
> 2004 přístavba koupelny a zádveří
Sítě:
> dům je napojený na obecní vodovod, k dispozici také vrt (20m)
> topení (radiátory) a ohřev vody zjišťuje plynový kotel, jako rezerva je k dispozici bojler
> elektřina 230V, 400V
> kanalizace řešena jímkou (pro WC) z roku 2004 (5 m3) s přepadem do trativodu, ostatní splašky svedeny přímo do trativodu
Součástí domu je pěkná a udržovaná zahrada, která poskytuje dostatek prostoru pro odpočinek i zahradničení. Na pozemku se nachází také pergola, garáž a praktická kolna na uskladnění nářadí.
Velkou výhodou je, že se dům nabízí včetně vybavení (kromě lednice pračky a televize), takže může být připraven k okamžitému užívání.
Lokalita:
V okolí se nachází krásná příroda jižního Plzeňska a výhledy směrem k Šumavě.
V obci najdete základní zázemí v podobě místní hospody a především příjemnou atmosféru venkovského života.
Veškerá další občanská vybavenost, kde najdete školy, školky, obchody, lékaře i další služby, je dostupná např. v 10 minut vzdálených Blovicích nebo ve Spáleném Poříčí, cca za 28 minut jste na okraji Plzně.
Uvedené výměry jsou orientační.
Energetický štítek je ve zpracování, proto je nyní uvedena třída "G".
Pokud hledáte dům se zahradou na klidném místě obklopený lesy a přírodou, který můžete využít jak pro bydlení, tak pro víkendový odpočinek, ozvěte se mi.
Pomocí naší hypoteční kalkulačky si můžete udělat orientační představu o výši měsíčních splátek hypotéky. O vše ostatní se pak postaráme my ve spolupráci s našimi obchodními partnery.
14 130 Kč
* Odhadovaná měsíční splátka vychází z výše úvěru Kč s pevnou úrokovou sazbou % po celou dobu trvání úvěru.
Uživatel serveru RealityMIX.cz (dále jen „Server“) dostupného na internetové adrese (URL) https://www.realitymix.cz, který provozuje společnost DALTEN media s.r.o., se sídlem Na Harfě 916/9a, Praha 9, 190 00, IČO: 271 35 306 (dále jen „Správce“) jako provozovateli tohoto Serveru uděluje svůj výslovný souhlas v souladu s ustanovením § 5 zákona č. 101/2000 Sb. O ochraně osobních údajů a o změně některých zákonů, v platném znění (dále jen „zákon o ochraně osobních údajů“), se zpracováním uživatelem poskytnutých osobních údajů a dalších dat.
Uživatel poskytuje Správci osobní údaje v rozsahu: jméno, příjmení, e-mailová adresa, telefonický kontakt a další data, a to z důvodu projeveného zájmu o nemovitost, kde prostřednictvím služby Serveru Správce osloví Uživatel inzerenta uvedeného v detailu
nemovitosti - TAURUM reality s.r.o. (IČ 05904498) se zájmem o jeho služby.
Uživatel tyto osobní údaje poskytuje dobrovolně a bere na vědomí, že součástí služeb Správce, které Správce Uživateli poskytuje, je vyhledání všech Uživateli vyhovujících (dle parametrů - cena, typ nemovitosti, lokalita atd.) nemovitostí. Správce za tímto účelem provozuje aplikace Hlídací pes a newsletter. Tyto služby je možné z každého zaslaného emailu odhlásit. Souhlas se zpracováním osobních údajů Uživatel poskytuje Správci na dobu neurčitou s tím, že svůj udělený souhlas může Uživatel kdykoliv na drese správce info@realitymix.cz odvolat. Správce garantuje Uživateli i další práva uvedené v ustanovení §11 a §21 zákoba č. 101/200 Sb. Ve znění pozdějších předpisů.
Více informací o zpracování údajů získáte zde (realitymix.cz/zasady-ochrany-osobnich-udaju)