Rodinný dům 2+1 se zahradou a dvorem v centru Dačic
Hledáte bydlení v centru města, ale přitom s kouskem soukromí?
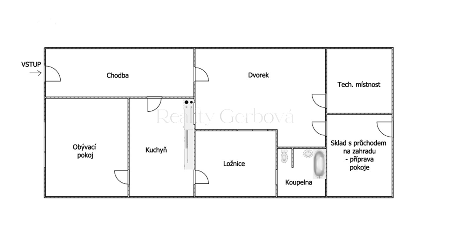
V samotném srdci Dačic nabízím řadový rodinný dům o dispozici 2+1 s možností rozšíření o další místnosti – jedna z nich už je dokonce částečně připravena.
Užitná plocha domu je 98 m², celková výměra pozemku činí 349 m².
Nemovitost je napojená na obecní vodovod i kanalizaci. Vytápění zajišťují nové úsporné plynové karmy. Dům prošel částečnou rekonstrukcí a je ihned obyvatelný, ale zároveň nabízí prostor pro úpravy podle vašich představ.
Součástí nabídky je i vizualizace interiéru, která vám pomůže lépe si představit budoucí podobu jednotlivých místností a celkový potenciál domu.
Za zmínku stojí uzavřený dvůr, který poskytuje klid a soukromí. Navazuje na něj zahrada – ideální pro relax, děti, domácí mazlíčky nebo menší zahrádku.
Dům se nachází v samotném centru Dačic, odkud máte všechno důležité v docházkové vzdálenosti:
- škola a školka
- obchody, kavárny, restaurace
- lékárna a pošta
- autobusové nádraží
- městský úřad
- zdravotní středisko
- kulturní dům a zámek Dačice
- městský park a sportoviště
Město nabízí vše, co potřebujete pro pohodlný každodenní život i volný čas.
S financováním vám ráda pomohu – spolupracuji s ověřeným hypotečním specialistou, který vám zdarma spočítá možnosti a pomůže vybrat nejvýhodnější variantu.
Nezáleží, jestli už hypotéku řešíte, nebo teprve zvažujete, co si můžete dovolit – začít se dá vždy bezpečně a s přehledem.
Pro koho je nemovitost ideální?
- mladý pár, který hledá vlastní bydlení
- seniory, kteří ocení centrum města a klidný dvorek
- investiční příležitost k pronájmu
Máte zájem nebo jen otázku?
Neváhejte mě kontaktovat – klidně i o víkendu.
Ráda si najdu čas a vše vám vysvětlím osobně.
Pomocí naší hypoteční kalkulačky si můžete udělat orientační představu o výši měsíčních splátek hypotéky. O vše ostatní se pak postaráme my ve spolupráci s našimi obchodními partnery.
10 102 Kč
* Odhadovaná měsíční splátka vychází z výše úvěru Kč s pevnou úrokovou sazbou % po celou dobu trvání úvěru.
Uživatel serveru RealityMIX.cz (dále jen „Server“) dostupného na internetové adrese (URL) https://www.realitymix.cz, který provozuje společnost DALTEN media s.r.o., se sídlem Na Harfě 916/9a, Praha 9, 190 00, IČO: 271 35 306 (dále jen „Správce“) jako provozovateli tohoto Serveru uděluje svůj výslovný souhlas v souladu s ustanovením § 5 zákona č. 101/2000 Sb. O ochraně osobních údajů a o změně některých zákonů, v platném znění (dále jen „zákon o ochraně osobních údajů“), se zpracováním uživatelem poskytnutých osobních údajů a dalších dat.
Uživatel poskytuje Správci osobní údaje v rozsahu: jméno, příjmení, e-mailová adresa, telefonický kontakt a další data, a to z důvodu projeveného zájmu o nemovitost, kde prostřednictvím služby Serveru Správce osloví Uživatel inzerenta uvedeného v detailu
nemovitosti - Reality Gerbová (IČ 74797271) se zájmem o jeho služby.
Uživatel tyto osobní údaje poskytuje dobrovolně a bere na vědomí, že součástí služeb Správce, které Správce Uživateli poskytuje, je vyhledání všech Uživateli vyhovujících (dle parametrů - cena, typ nemovitosti, lokalita atd.) nemovitostí. Správce za tímto účelem provozuje aplikace Hlídací pes a newsletter. Tyto služby je možné z každého zaslaného emailu odhlásit. Souhlas se zpracováním osobních údajů Uživatel poskytuje Správci na dobu neurčitou s tím, že svůj udělený souhlas může Uživatel kdykoliv na drese správce info@realitymix.cz odvolat. Správce garantuje Uživateli i další práva uvedené v ustanovení §11 a §21 zákoba č. 101/200 Sb. Ve znění pozdějších předpisů.
Více informací o zpracování údajů získáte zde (realitymix.cz/zasady-ochrany-osobnich-udaju)