BO! Vám nabízí prostorný rodinný dům k rekonstrukci v obci Dešov.
Dešov je malebná obec kraji Vysočina, ležící 25 km jihozápadně od Třebíče. Obklopená kopcovitou krajinou s lesy a zemědělskou půdou. Nabízí turistické trasy a cyklostezky, včetně spojení k Vranovské přehradě. Obec žije bohatým kulturním životem. Dodržují se staré zvyky a tradice - pálení čarodějnic, stavění máje, masopustní průvod, pouť, posvícení atd. V obci je ZŠ a MŠ, praktický a dětský lékař, pošta, restaurace, obchod se smíšeným zbožím.
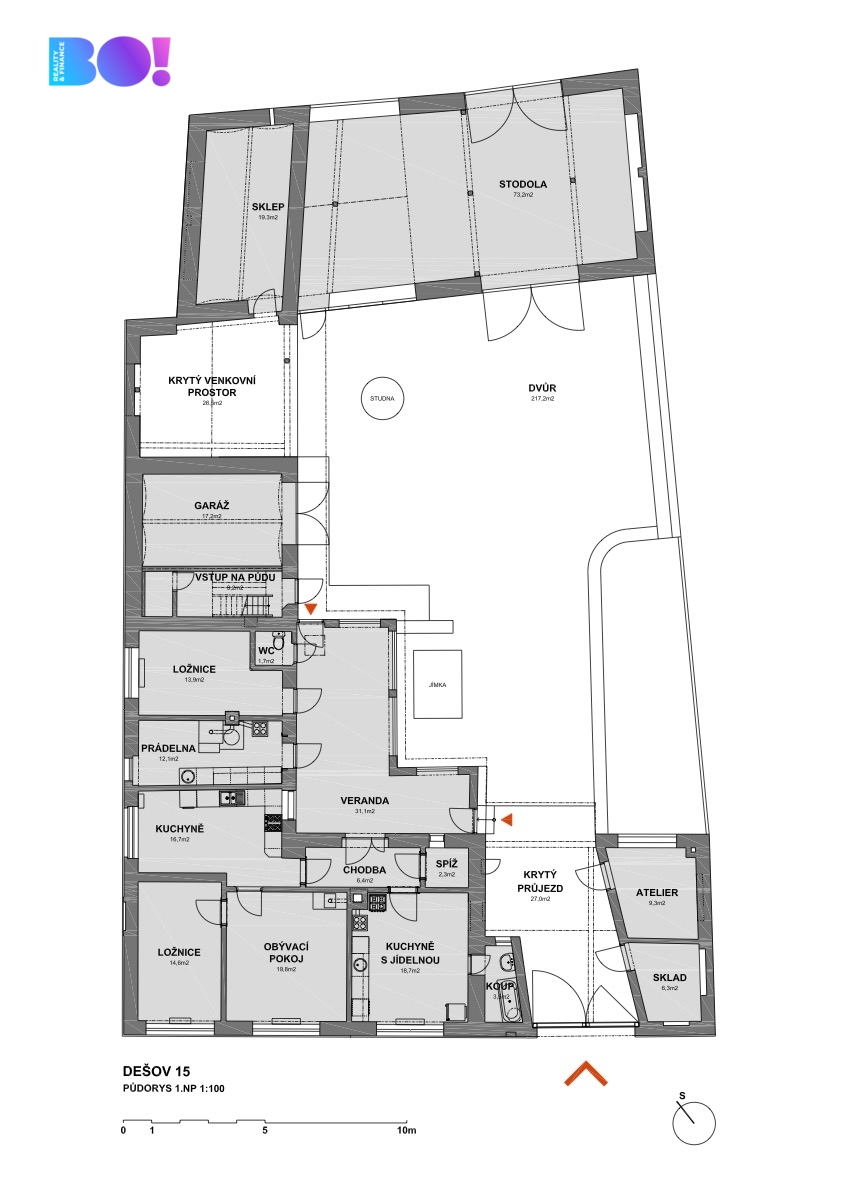
Dům je napojen na veřejný vodovod a plynovod, má vlastní studnu, kanalizace je řešena jímkou. Vytápění zajišťují plynové WAV, možno využít i kamna na TP. Ohřev vody ve sprše je vyřešen bojlerem, umyvadla a dřez mají mísící baterie. Kromě obytných místností nabízí dům i další prostory, které nový majitel bude jistě umět efektivně využít. Výhodou je i rozlehlý pozemek, který nabízí široké možnosti využití.
S financováním Vám rádi pomůžeme a dle vašich požadavků a možností najdeme nejlepší řešení přímo na míru. Dále jsme schopni v případě zájmu zajistit čerpání dotace ,,Oprav dům po babičce"
Majitel si vyhrazuje právo prodat nemovitost zájemci s nejvyšší nabídkou.
Pomocí naší hypoteční kalkulačky si můžete udělat orientační představu o výši měsíčních splátek hypotéky. O vše ostatní se pak postaráme my ve spolupráci s našimi obchodními partnery.
6 478 Kč
* Odhadovaná měsíční splátka vychází z výše úvěru Kč s pevnou úrokovou sazbou % po celou dobu trvání úvěru.
Uživatel serveru RealityMIX.cz (dále jen „Server“) dostupného na internetové adrese (URL) https://www.realitymix.cz, který provozuje společnost DALTEN media s.r.o., se sídlem Na Harfě 916/9a, Praha 9, 190 00, IČO: 271 35 306 (dále jen „Správce“) jako provozovateli tohoto Serveru uděluje svůj výslovný souhlas v souladu s ustanovením § 5 zákona č. 101/2000 Sb. O ochraně osobních údajů a o změně některých zákonů, v platném znění (dále jen „zákon o ochraně osobních údajů“), se zpracováním uživatelem poskytnutých osobních údajů a dalších dat.
Uživatel poskytuje Správci osobní údaje v rozsahu: jméno, příjmení, e-mailová adresa, telefonický kontakt a další data, a to z důvodu projeveného zájmu o nemovitost, kde prostřednictvím služby Serveru Správce osloví Uživatel inzerenta uvedeného v detailu
nemovitosti - BO! reality a finance s.r.o. (IČ 03739741) se zájmem o jeho služby. Tato společnost je součástí seskupení/sítě/franšízového modelu realitních kanceláří, jejich seznam můžete zobrazit kliknutím na tento odkaz.
BO! reality a finance s.r.o. (IČ 03739741) , BO! reality a finance s.r.o. (IČ 03739741) , BO! reality a finance s.r.o. (IČ 03739741) , BO! reality a finance s.r.o. (IČ 03739741) , BO! reality a finance s.r.o. (IČ 03739741) , BO! reality a finance s.r.o. (IČ 03739741) , BO! reality a finance s.r.o. (IČ 03739741) , BO! reality a finance s.r.o. (IČ 03739741) , BO! reality a finance s.r.o. (IČ 03739741) , BO! reality a finance s.r.o. (IČ 03739741) , Agrární půdní fond s.r.o. (IČ 09182098) , BO! reality a finance s.r.o. (IČ 03739741) , BO! reality a finance s.r.o. (IČ 03739741)
Uživatel tyto osobní údaje poskytuje dobrovolně a bere na vědomí, že součástí služeb Správce, které Správce Uživateli poskytuje, je vyhledání všech Uživateli vyhovujících (dle parametrů - cena, typ nemovitosti, lokalita atd.) nemovitostí. Správce za tímto účelem provozuje aplikace Hlídací pes a newsletter. Tyto služby je možné z každého zaslaného emailu odhlásit. Souhlas se zpracováním osobních údajů Uživatel poskytuje Správci na dobu neurčitou s tím, že svůj udělený souhlas může Uživatel kdykoliv na drese správce info@realitymix.cz odvolat. Správce garantuje Uživateli i další práva uvedené v ustanovení §11 a §21 zákoba č. 101/200 Sb. Ve znění pozdějších předpisů.
Více informací o zpracování údajů získáte zde (realitymix.cz/zasady-ochrany-osobnich-udaju)