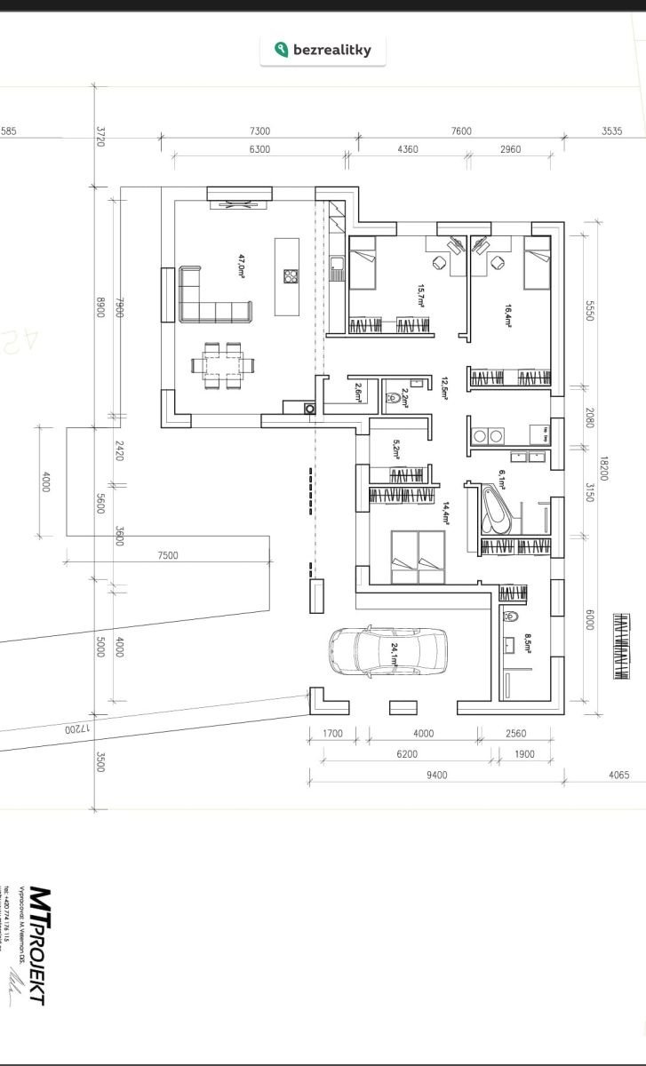
Nabízím k prodeji rodinného domu v obci Divišov, cca 40 km od Prahy, promyšlený s velmi praktickým řešením, dispozice 4+kk s garáží nabídne bezmála 170m2 podlahové plochy na pozemku o rozloze 814m2.
RD je připojen na městskou kanalizaci a vodovod a byl zde kladen důraz na velmi úsporný provoz o čemž svědčí použití 300mm cihel Porotherm s izolací 200mm a šestikomorových oken s izolačními trojskly, dále pak dům nabídne systém rekuperace, který spolu s výkonným tepelným čerpadlem a podlahovým vytápěním zajistí minimalizaci tepelných ztrát a třešničkou na dortu je pak systém splachování toalet akumulovanou dešťovou vodou, to vše zasazené v nádherné přírodě s dechberoucím výhledem ze všech oken obytných místností.
Termín dokončení - březen 2026.
RK prosím nevolat.
Cena je konečná - tzn. bez dalších nákladů v podobě provizí či právního servisu.
Můžete mě kontaktovat prostřednictvím zpráv na komunikační platformě a domluvit si prohlídku této zajímavé nabídky. Těším se na vaši zprávu. Tato nemovitost je určena výhradně přímým zájemcům o koupi. Na inzerát můžete také reagovat přímo na webu Bezrealitky: https://www.bezrealitky.cz/nemovitosti-byty-domy/953095-nabidka-prodej-domu-k-vodojemu-divisov
Pomocí naší hypoteční kalkulačky si můžete udělat orientační představu o výši měsíčních splátek hypotéky. O vše ostatní se pak postaráme my ve spolupráci s našimi obchodními partnery.
56 642 Kč
* Odhadovaná měsíční splátka vychází z výše úvěru Kč s pevnou úrokovou sazbou % po celou dobu trvání úvěru.
reklama
reklama
Mapa
* Umístění na mapě je na základě GPS informací dodaných realitní kanceláří.
* Pozice na mapě je pouze orientační.
Souhlas se zpracováním osobních údajů
Uživatel serveru RealityMIX.cz (dále jen „Server“) dostupného na internetové adrese (URL) https://www.realitymix.cz, který provozuje společnost DALTEN media s.r.o., se sídlem Na Harfě 916/9a, Praha 9, 190 00, IČO: 271 35 306 (dále jen „Správce“) jako provozovateli tohoto Serveru uděluje svůj výslovný souhlas v souladu s ustanovením § 5 zákona č. 101/2000 Sb. O ochraně osobních údajů a o změně některých zákonů, v platném znění (dále jen „zákon o ochraně osobních údajů“), se zpracováním uživatelem poskytnutých osobních údajů a dalších dat.
Uživatel poskytuje Správci osobní údaje v rozsahu: jméno, příjmení, e-mailová adresa, telefonický kontakt a další data, a to z důvodu projeveného zájmu o nemovitost, kde prostřednictvím služby Serveru Správce osloví Uživatel inzerenta uvedeného v detailu
nemovitosti - Bezrealitky s.r.o. (IČ 08063168) se zájmem o jeho služby.
Uživatel tyto osobní údaje poskytuje dobrovolně a bere na vědomí, že součástí služeb Správce, které Správce Uživateli poskytuje, je vyhledání všech Uživateli vyhovujících (dle parametrů - cena, typ nemovitosti, lokalita atd.) nemovitostí. Správce za tímto účelem provozuje aplikace Hlídací pes a newsletter. Tyto služby je možné z každého zaslaného emailu odhlásit. Souhlas se zpracováním osobních údajů Uživatel poskytuje Správci na dobu neurčitou s tím, že svůj udělený souhlas může Uživatel kdykoliv na drese správce info@realitymix.cz odvolat. Správce garantuje Uživateli i další práva uvedené v ustanovení §11 a §21 zákoba č. 101/200 Sb. Ve znění pozdějších předpisů.
Více informací o zpracování údajů získáte zde (realitymix.cz/zasady-ochrany-osobnich-udaju)