Nabízíme prostorný rodinný dům 5+kk situovaný na okraji Dobříše v klidné lokalitě. Umístění na rozhraní zástavby a lesa přináší soukromí, výhledy do krajiny a každodenní kontakt s přírodou bez kompromisu v dostupnosti služeb – centrum Dobříše 8 minut, dálnice D4 5 minut, Praha (Barrandovský most) 30 minut. Nemovitost je velmi vhodná pro rodinu s dětmi díky bezpečnému prostředí, rozlehlému pozemku a zázemí pro každodenní život i volný čas.
Hlavní přednosti:
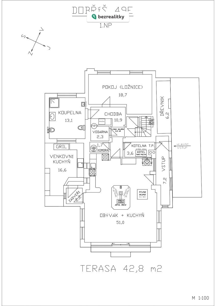
• zastavěná plocha 198 m²,
• udržovaná zahrada 1946 m²,
• velkorysá obytná místnost 51 m² + terasa 42 m² orientovaná na jihozápad,
• dvě koupelny, dvě kuchyňské zóny, relaxační místnost v nejvyšším patře,
• bazén, venkovní kuchyně, altán, dílna, kryté parkování, sklady,
• dvě studny, tři zdroje vytápění, septik, ČOV, retenční nádrž.
Původní chata prošla dvěma zásadními rekonstrukcemi s výrazným rozšířením. Výsledkem je domov, který působí útulně, ale zároveň překvapí svou velikostí a funkčností. Ve třech podlažích najdete atypické dispoziční řešení, dvě koupelny, dvě kuchyňské zóny a dokonce i relaxační místnost v nejvyšším patře. Dominantou domu je velká obytná místnost s kuchyní a vysokým stropem (51 m2), ze které je přímý vstup na velkou terasu (42 m2) orientovanou na jihozápad – ideální na dlouhé večery se sklenkou vína a výhledem do krajiny. Pozemek nabízí nejen soukromí, ale i bohaté zázemí: kryté parkování pro dva vozy, venkovní kuchyni s posezením a grilem, bazén (20 m³), altán, dětské hřiště, dílnu a prostorné sklady. Součástí domu je také vinný sklípek (2,3 m²) a malý pivní sklípek, oba přístupné zevnitř domu. Užitná plocha činí 183 m² bez venkovní kuchyně a zastřešené části.
Konstrukce domu kombinuje původní cihlové zdivo a novější část z Ytongu, obojí zateplené. Okna jsou dřevěná eurookna s dvojsklem. Střecha je částečně Bramac a částečně šindel, vše s kvalitní tepelnou izolací.
Vytápění radiátorů UT je řešeno dvěma zdroji: moderní kotel na tuhá paliva Atmos (účinnost 81-88 %) a plynový kotel Junkers (Pb). V obývací místnosti jsou krbová kamna Jotul s rozvodem tepla do patra.
Zásobování kvalitní pitnou vodou zajišťují dvě studny (vrtaná 23 m, kopaná 9 m). Odpad je veden do septiku (20 m³) s možností napojení na čističku a retenční nádrž (10 m³).
V oblasti je nově posílená elektrická infrastruktura vhodná pro další modernizaci (např. tepelné čerpadlo, elektromobilita).
V případě zájmu o prohlídku mě neváhejte kontaktovat.
Prosíme, realitní kanceláře nevolat.
Cena je konečná – neplatíte žádné provize ani poplatky.
Nemovitost je v soukromém vlastnictví bez právních vad. Tato nemovitost je určena výhradně přímým zájemcům o koupi. Na inzerát můžete také reagovat přímo na webu Bezrealitky.
Pomocí naší hypoteční kalkulačky si můžete udělat orientační představu o výši měsíčních splátek hypotéky. O vše ostatní se pak postaráme my ve spolupráci s našimi obchodními partnery.
59 111 Kč
* Odhadovaná měsíční splátka vychází z výše úvěru Kč s pevnou úrokovou sazbou % po celou dobu trvání úvěru.
reklama
reklama
Mapa
* Umístění na mapě je na základě GPS informací dodaných realitní kanceláří.
* Pozice na mapě je pouze orientační.
Souhlas se zpracováním osobních údajů
Uživatel serveru RealityMIX.cz (dále jen „Server“) dostupného na internetové adrese (URL) https://www.realitymix.cz, který provozuje společnost DALTEN media s.r.o., se sídlem Na Harfě 916/9a, Praha 9, 190 00, IČO: 271 35 306 (dále jen „Správce“) jako provozovateli tohoto Serveru uděluje svůj výslovný souhlas v souladu s ustanovením § 5 zákona č. 101/2000 Sb. O ochraně osobních údajů a o změně některých zákonů, v platném znění (dále jen „zákon o ochraně osobních údajů“), se zpracováním uživatelem poskytnutých osobních údajů a dalších dat.
Uživatel poskytuje Správci osobní údaje v rozsahu: jméno, příjmení, e-mailová adresa, telefonický kontakt a další data, a to z důvodu projeveného zájmu o nemovitost, kde prostřednictvím služby Serveru Správce osloví Uživatel inzerenta uvedeného v detailu
nemovitosti - Bezrealitky s.r.o. (IČ 08063168) se zájmem o jeho služby.
Uživatel tyto osobní údaje poskytuje dobrovolně a bere na vědomí, že součástí služeb Správce, které Správce Uživateli poskytuje, je vyhledání všech Uživateli vyhovujících (dle parametrů - cena, typ nemovitosti, lokalita atd.) nemovitostí. Správce za tímto účelem provozuje aplikace Hlídací pes a newsletter. Tyto služby je možné z každého zaslaného emailu odhlásit. Souhlas se zpracováním osobních údajů Uživatel poskytuje Správci na dobu neurčitou s tím, že svůj udělený souhlas může Uživatel kdykoliv na drese správce info@realitymix.cz odvolat. Správce garantuje Uživateli i další práva uvedené v ustanovení §11 a §21 zákoba č. 101/200 Sb. Ve znění pozdějších předpisů.
Více informací o zpracování údajů získáte zde (realitymix.cz/zasady-ochrany-osobnich-udaju)