Exkluzivně nabízím k prodeji prostorný rodinný dům o dispozici 4+1 na pozemku o celkové výměře 690 m² v klidné obci Dolní Habartice.
Nemovitost zaujme velmi dobrým technickým stavem, nízkými provozními náklady a příjemným zázemím pro rodinné bydlení bez nutnosti dalších investic.
Na pozemku se nachází pergola s venkovním posezením, grilem a udírnou, která vytváří ideální prostor pro relaxaci i společenská setkání.
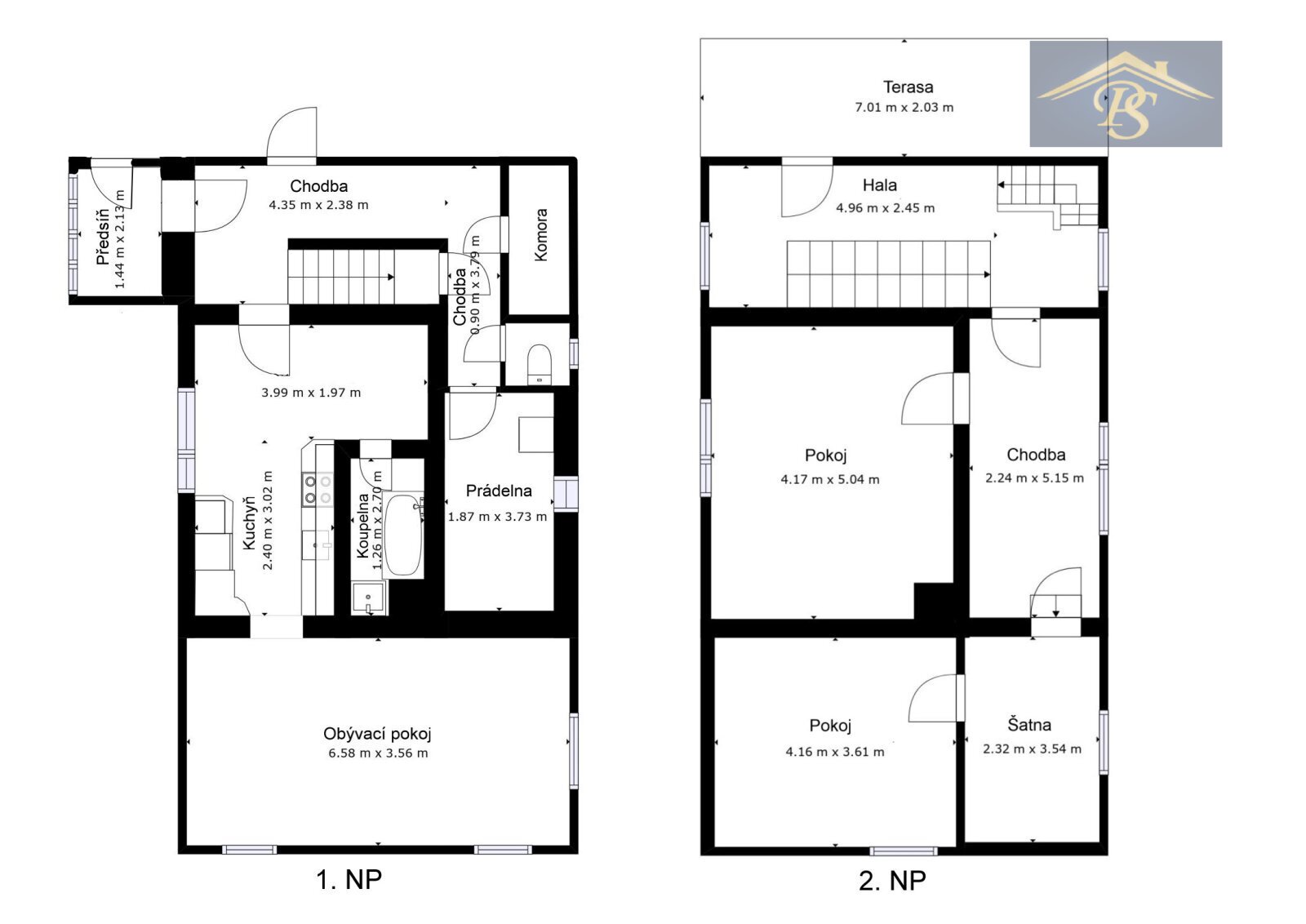
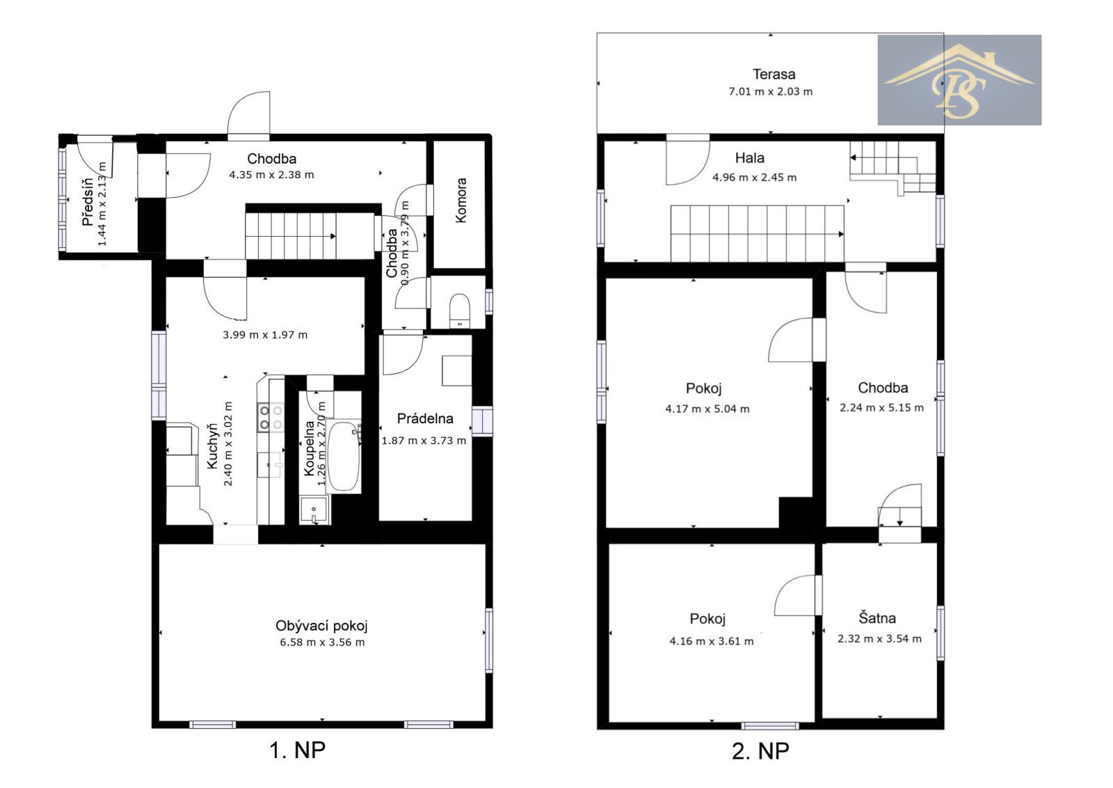
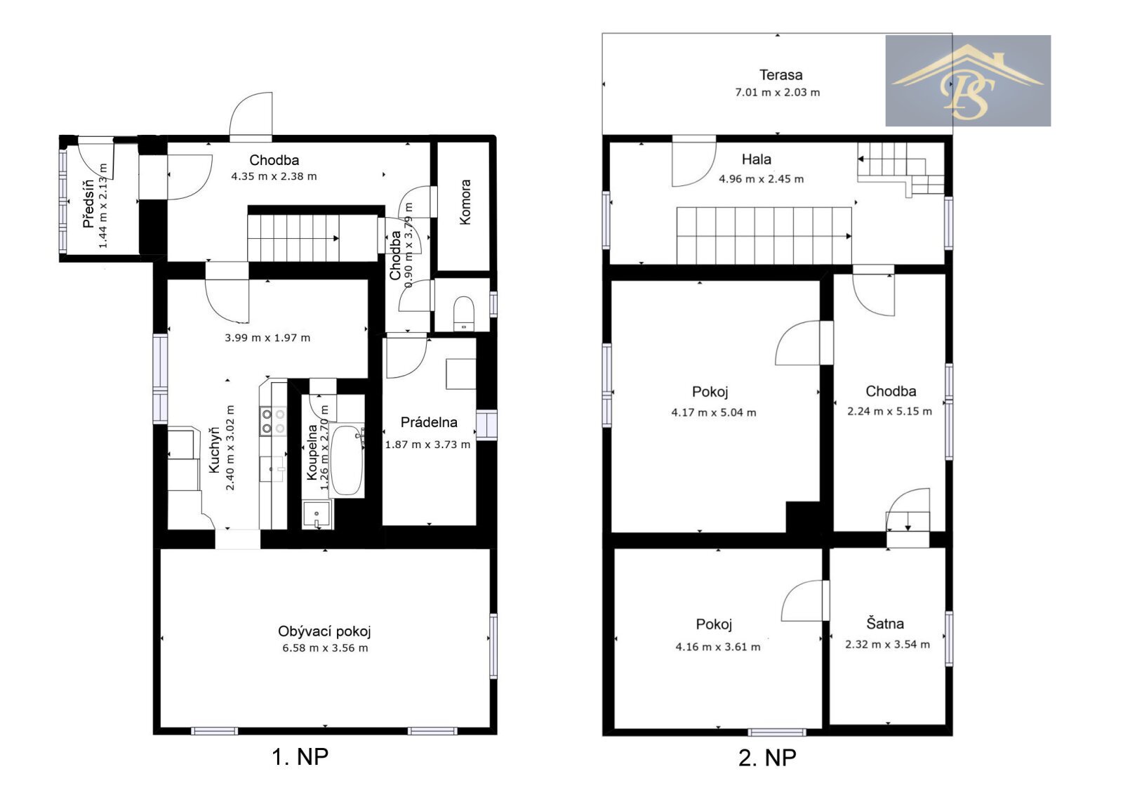
Dispoziční řešení domu:
Přízemí nabízí praktické zádveří, chodbu se vstupem do garáže, samostatnou kuchyni, světlý obývací pokoj s jídelnou, koupelnu, oddělené WC, spíž, technickou místnost a prádelnu s potenciálem vybudování druhé koupelny.
V patře jsou tři samostatné pokoje propojené chodbou. Dřevěné schodiště pokračuje na půdu, která poskytuje další možnosti rozšíření obytné plochy.
Velkým benefitem je prostorná garáž s připraveným vstupem z patra pro budoucí realizaci střešní terasy.
Technický stav a vybavení:
Dům je zateplený včetně střechy, osazen plastovými okny s dvojskly a elektroinstalací v mědi. Odpad je řešen plastovým tříkomorovým septikem.
O komfortní vytápění se stará kondenzační plynový kotel Prestige 18 (cca 7 let) doplněný krbovými kamny s výměníkem v obývacím pokoji.
Měsíční náklady na bydlení činí přibližně 6.000 Kč.
V posledních 2 letech proběhla nákladná a rozsáhlá rekonstrukce:
nový hlavní přívod elektro a jističe
komín s nerezovou vložkou
zateplení střechy (16 cm foukaná izolace)
nové interiérové dveře (masivní, prosklené i plné)
nové kovové vchodové dveře
nové vinylové podlahy (obývací pokoj, kuchyně)
kompletně nová koupelna
kompletně nová kuchyně včetně spotřebičů
nová vjezdová vrata do garáže včetně střechy
sítě proti hmyzu v oknech
kompletní oplocení pozemku, a mnoho dalšího
Lokalita:
Dolní Habartice se rozkládají v malebném prostředí Českého středohoří, přibližně 9 km od Děčína. Obec nabízí základní občanskou vybavenost — potraviny, mateřskou a základní školu, sportovní vyžití i restauraci. Dopravní dostupnost je zajištěna autobusovými i vlakovými spoji.
Nemovitost představuje ideální volbu pro klienty hledající klidné rodinné bydlení v dobrém technickém stavu s minimálními budoucími investicemi.
Veškeré informace týkající se domu a rozsahu rekonstrukce jsou k nahlédnutí u makléřky. PENB se zpracovává.
Cena:
8 200 000 Kč
Poznámka:
Cena k jednání - pojďme najít řešení, které bude vyhovovat oběma stranám
Pomocí naší hypoteční kalkulačky si můžete udělat orientační představu o výši měsíčních splátek hypotéky. O vše ostatní se pak postaráme my ve spolupráci s našimi obchodními partnery.
33 200 Kč
* Odhadovaná měsíční splátka vychází z výše úvěru Kč s pevnou úrokovou sazbou % po celou dobu trvání úvěru.
Uživatel serveru RealityMIX.cz (dále jen „Server“) dostupného na internetové adrese (URL) https://www.realitymix.cz, který provozuje společnost DALTEN media s.r.o., se sídlem Na Harfě 916/9a, Praha 9, 190 00, IČO: 271 35 306 (dále jen „Správce“) jako provozovateli tohoto Serveru uděluje svůj výslovný souhlas v souladu s ustanovením § 5 zákona č. 101/2000 Sb. O ochraně osobních údajů a o změně některých zákonů, v platném znění (dále jen „zákon o ochraně osobních údajů“), se zpracováním uživatelem poskytnutých osobních údajů a dalších dat.
Uživatel poskytuje Správci osobní údaje v rozsahu: jméno, příjmení, e-mailová adresa, telefonický kontakt a další data, a to z důvodu projeveného zájmu o nemovitost, kde prostřednictvím služby Serveru Správce osloví Uživatel inzerenta uvedeného v detailu
nemovitosti - Petra Suchá (IČ 87582325) se zájmem o jeho služby.
Uživatel tyto osobní údaje poskytuje dobrovolně a bere na vědomí, že součástí služeb Správce, které Správce Uživateli poskytuje, je vyhledání všech Uživateli vyhovujících (dle parametrů - cena, typ nemovitosti, lokalita atd.) nemovitostí. Správce za tímto účelem provozuje aplikace Hlídací pes a newsletter. Tyto služby je možné z každého zaslaného emailu odhlásit. Souhlas se zpracováním osobních údajů Uživatel poskytuje Správci na dobu neurčitou s tím, že svůj udělený souhlas může Uživatel kdykoliv na drese správce info@realitymix.cz odvolat. Správce garantuje Uživateli i další práva uvedené v ustanovení §11 a §21 zákoba č. 101/200 Sb. Ve znění pozdějších předpisů.
Více informací o zpracování údajů získáte zde (realitymix.cz/zasady-ochrany-osobnich-udaju)