© 1999–2026 DALTEN media s.r.o.
Dolní Podluží, okr. Děčín
900 000 KčDolní Podluží, okr. Děčín
| Cena: | 900 000 Kč |
| Poznámka: | včetně provize, včetně právního servisu, cena k jednání |
| Hypotéka: | od 3 644 Kč/měsíc |
| Datum k nastěhování: | 11.08.2025 |
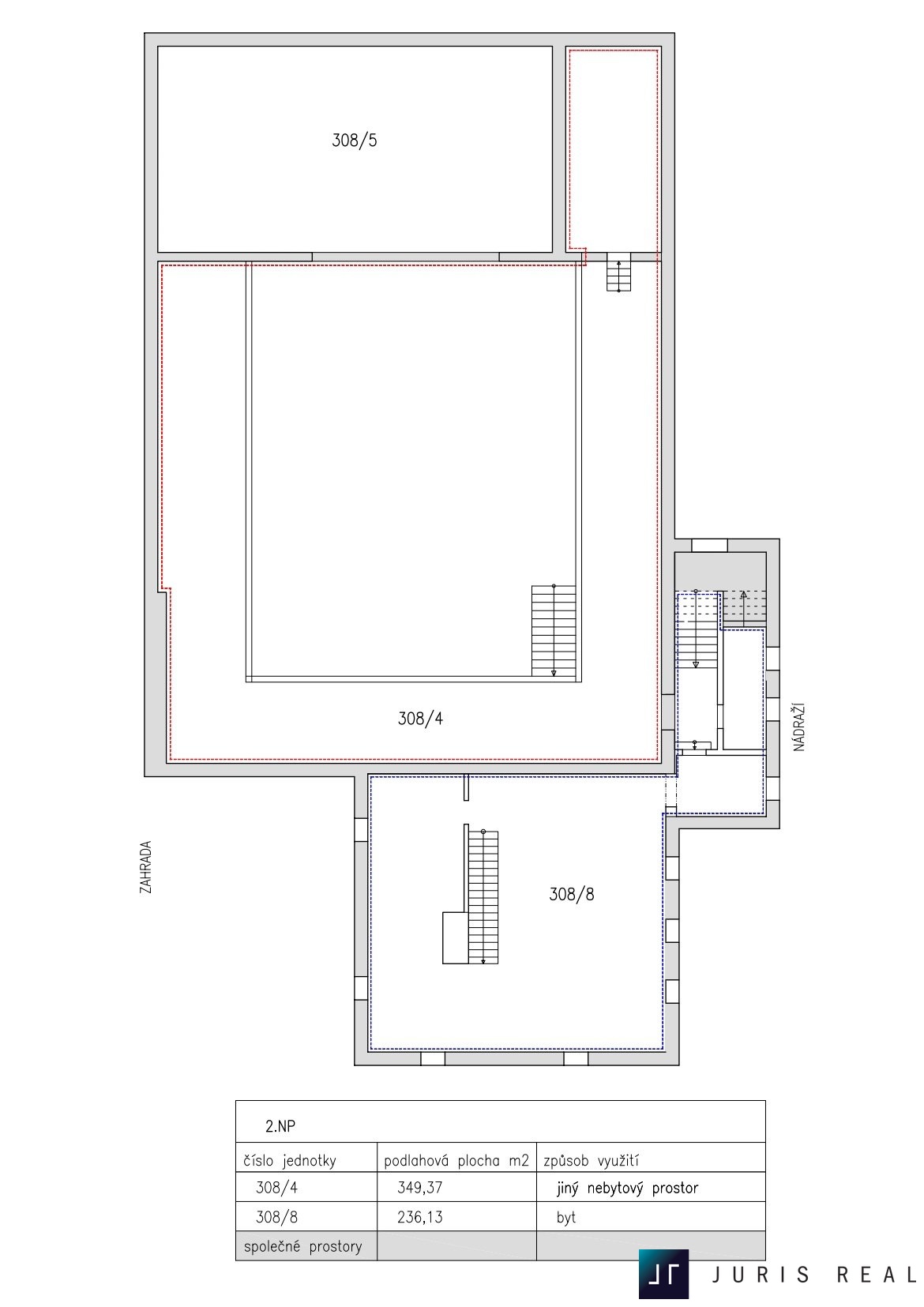
| Dispozice/podlahová plocha: | Atypický/246 m² |
| Číslo zakázky: | REALITYMIX-100957 |
Pomocí naší hypoteční kalkulačky si můžete udělat orientační představu o výši měsíčních splátek hypotéky. O vše ostatní se pak postaráme my ve spolupráci s našimi obchodními partnery.