Prodej hrubé stavby vícegeneračního RD se zahradou v obci Dolní Rožínka
Ve výhradním zastoupení nabízím k prodeji RD v klidné ulici v obci Dolní Rožínka.
Nové Město na Moravě je vzdáleno 16km, Bystřice n. Pernštejnem 8km.
Celková plocha pozemku činí 798m2, z toho aktuálně zastavěná plocha domu je cca 120m2.
Dům je nyní ve fázi hrubé stavby - rekonstrukce / rozšíření.
Vydáno stavební povolení, v ceně je k dispozici projekt a stavební dokumentace vč. PENB.
Veškeré IS + Cetin.
Možnost dvougeneračního bydlení, nebo dvou samostatných bytových jednotek 3+1 (příp. další v podkroví).
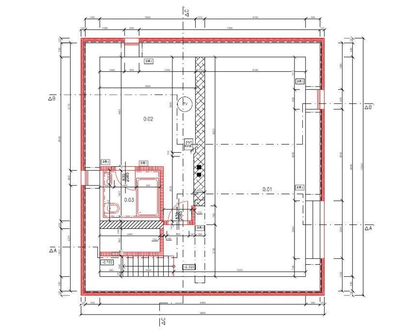
Dispozice :
1.PP 64m - kotelna 19,67m2, koupelna + WC 4,35m2, dílna / sklad 40m2
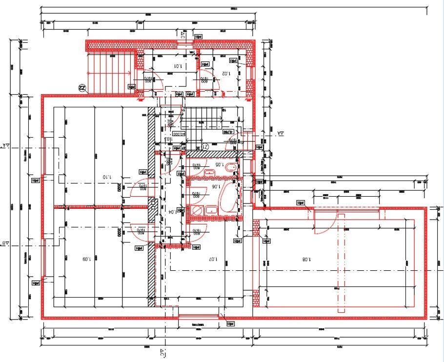
1.NP 112,2,m2 - schodiště 8,61m2, předsíň 5,34m2, šatna 4,66m2, hala 5,92m2, WC 2,07m2, koupelna 4,17m2, kuchyně 14,11m2 s výstupem na zahradu, obývací pokoj 28,44m2, 2x pokoj 19,44m2
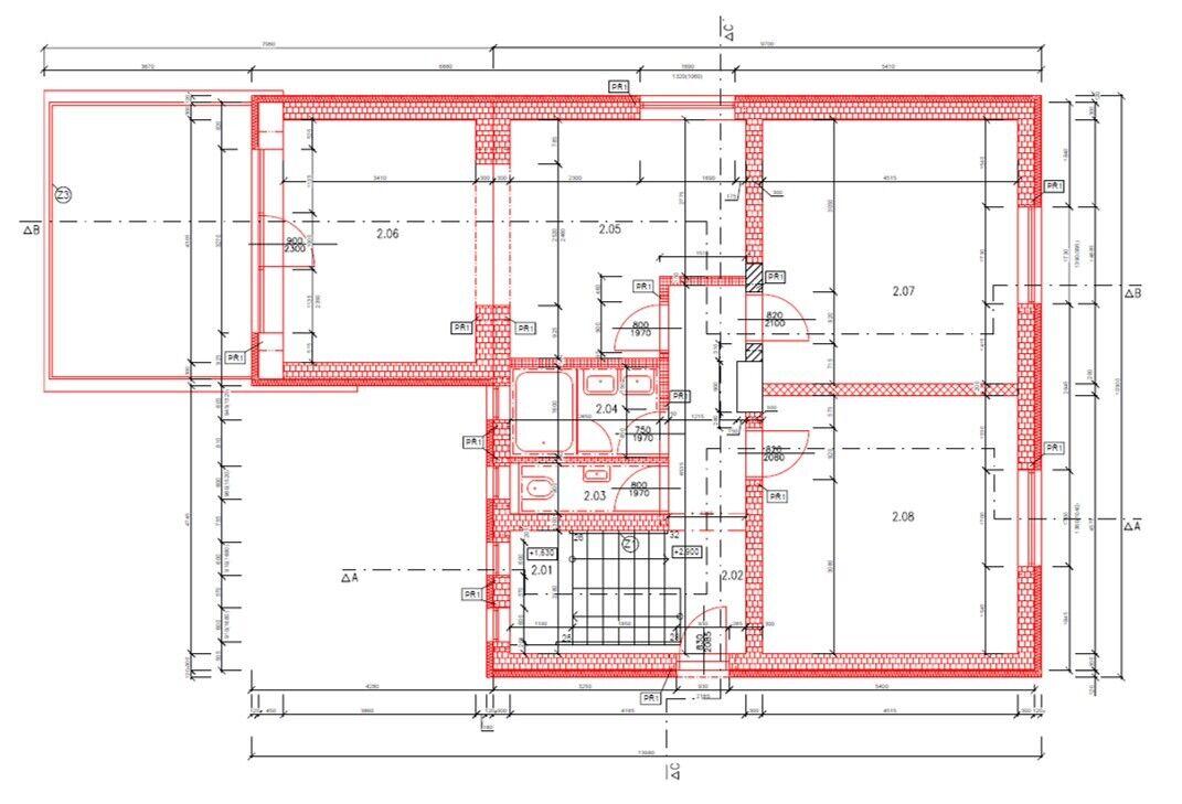
2.NP 112,79m2m - schodiště 6,1m2, chodba 8,62m2, WC 2,52m2, koupelna 4,24m2, kuchyně 15,42m2 s výstupem na terasu 19,4m2, obývací pokoj 14,68m2, pokoj 21,15m2, pokoj 20,66m2.
3.NP (Podkroví) 45,5m2 - schodiště 9,5m2, koupelna / WC 3,7m2, prostor 32,3m2 (možnost využití herna / pracovna / úložný půdní prostor...)
Prohlídka možná po dohodě na tel. 605 931 999 nebo e-mailu holub@bravoreality.cz
Pomocí naší hypoteční kalkulačky si můžete udělat orientační představu o výši měsíčních splátek hypotéky. O vše ostatní se pak postaráme my ve spolupráci s našimi obchodními partnery.
9 676 Kč
* Odhadovaná měsíční splátka vychází z výše úvěru Kč s pevnou úrokovou sazbou % po celou dobu trvání úvěru.
Uživatel serveru RealityMIX.cz (dále jen „Server“) dostupného na internetové adrese (URL) https://www.realitymix.cz, který provozuje společnost DALTEN media s.r.o., se sídlem Na Harfě 916/9a, Praha 9, 190 00, IČO: 271 35 306 (dále jen „Správce“) jako provozovateli tohoto Serveru uděluje svůj výslovný souhlas v souladu s ustanovením § 5 zákona č. 101/2000 Sb. O ochraně osobních údajů a o změně některých zákonů, v platném znění (dále jen „zákon o ochraně osobních údajů“), se zpracováním uživatelem poskytnutých osobních údajů a dalších dat.
Uživatel poskytuje Správci osobní údaje v rozsahu: jméno, příjmení, e-mailová adresa, telefonický kontakt a další data, a to z důvodu projeveného zájmu o nemovitost, kde prostřednictvím služby Serveru Správce osloví Uživatel inzerenta uvedeného v detailu
nemovitosti - David Holub - BRAVO reality (IČ 64306534) se zájmem o jeho služby.
Uživatel tyto osobní údaje poskytuje dobrovolně a bere na vědomí, že součástí služeb Správce, které Správce Uživateli poskytuje, je vyhledání všech Uživateli vyhovujících (dle parametrů - cena, typ nemovitosti, lokalita atd.) nemovitostí. Správce za tímto účelem provozuje aplikace Hlídací pes a newsletter. Tyto služby je možné z každého zaslaného emailu odhlásit. Souhlas se zpracováním osobních údajů Uživatel poskytuje Správci na dobu neurčitou s tím, že svůj udělený souhlas může Uživatel kdykoliv na drese správce info@realitymix.cz odvolat. Správce garantuje Uživateli i další práva uvedené v ustanovení §11 a §21 zákoba č. 101/200 Sb. Ve znění pozdějších předpisů.
Více informací o zpracování údajů získáte zde (realitymix.cz/zasady-ochrany-osobnich-udaju)