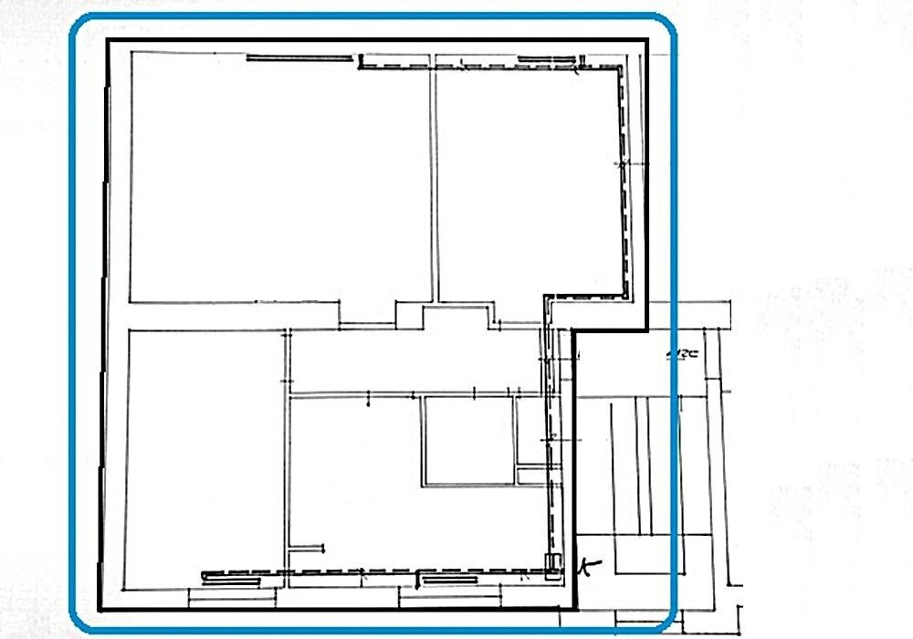
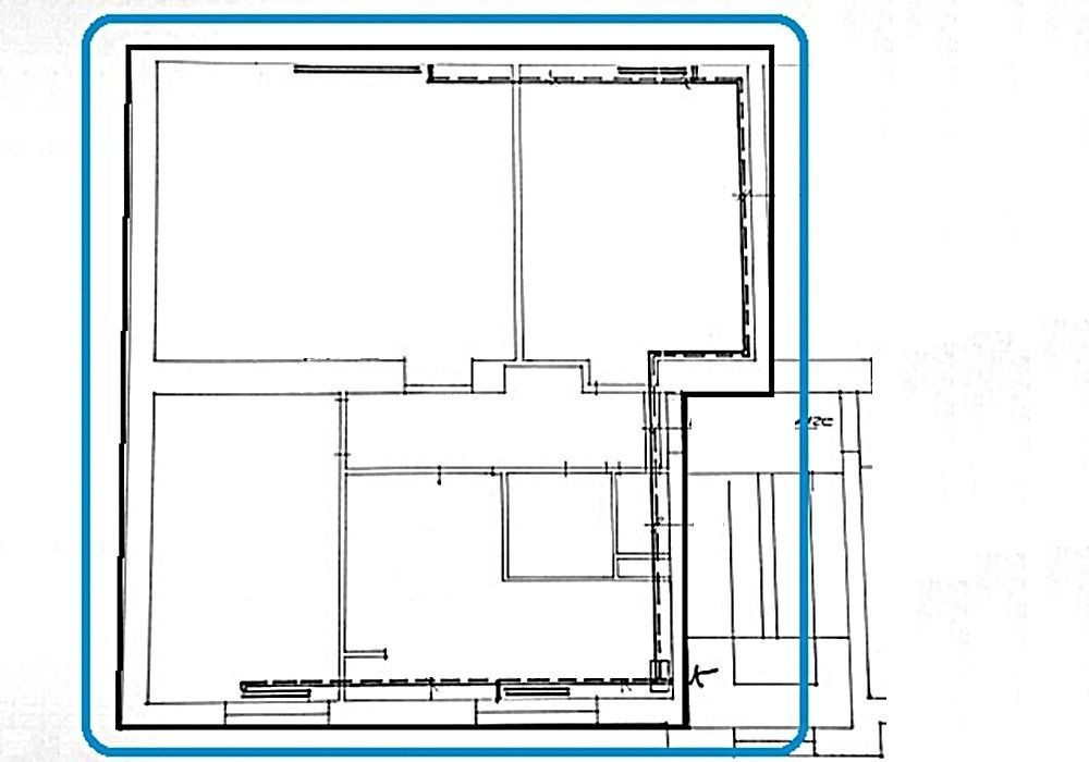
Byt 3+1 s lodžií a garáží 83 m2 v obci Drahotín u Poběžovic.
Byt o dispozici 3+1 (3x místnost + kuchyně) s lodžií, příslušenstvím, provozním vybavením a vlastní garáží, situovaný v 1.NP (zvýšené přízemí) bytového domu v klidné, zastavěné části obce. Byt s původním provozním vybavením o celkové výměře podlahové plochy s lodžií 68,5 m2 s externím příslušenstvím 82,80 m2, zbudovaný v bytovém domu s celkem šesti bytovými jednotkami, bez výtahu s vlastními skladovacími prostorami (sklep 1,7 m2) a vlastní vestavěnou garáží (nyní sklad 16,7 m2). K bytu náleží, možnost užívání všech společných prostor v bytovém domu (kolárna, prádelna, kotelna) a užívání obecního prostranství navazujícího na bytový dům. V letech 201517 byla provedena výměna oken za plastová s izolačními skly, rekonstrukce koupelny, částečná výměna elektroinstalace a instalace krbových kamen, jinak je byt v původním technickém stavu. Byt je připraven k okamžitému předání a užívání ihned po převodu nemovitosti, vhodný k zahájení rekonstrukce prostor dle představ nového vlastníka, bez jakéhokoli omezení vlastnických práv. Orientace oken v bytu na jihovýchod a severozápad. Bytový dům je dvoupodlažní objekt panelové konstrukce, navazující na okolní zástavbu bytových a rodinných vesnických domů s provedením renovace střešní části objektu, situován v obytné zástavbě klidné obce Drahotín se základní vybaveností, cca 4 km od střediskové obce Poběžovice se základní občanskou vybaveností, dostupností služeb a dopravní infrastrukturou. Třída ENB: „G“ průkaz nezpracován. Nabízený byt s příslušenstvím je využitelný k trvalému nebo nájemnímu bydlení v klidné obci v přírodní pohraniční lokalitě navazující na CHKO Český les. Dispozice: vstup, předsíň, obytná místnost s lodžií, kuchyně, 2x ložnice, koupelna (vana, umyvadlo), WC. Vybavení bytu: kuchyňská linka, sporák, koupelnové vybavení, zařizovací předměty, krbová kamna, osvětlovací tělesa, rozvody TV / tel. / internet. Vytápění: vlastní etážové elektrické (vlastní kotel) + lokální palivové (1x krbová kana). Celková užitná plocha bytu s příslušenstvím: 82,80 m2 byt s lodžií 68,50 m2 + sklep 1,7 m2 + garáž 16,7 m2.
Pomocí naší hypoteční kalkulačky si můžete udělat orientační představu o výši měsíčních splátek hypotéky. O vše ostatní se pak postaráme my ve spolupráci s našimi obchodními partnery.
5 587 Kč
* Odhadovaná měsíční splátka vychází z výše úvěru Kč s pevnou úrokovou sazbou % po celou dobu trvání úvěru.
Prodáváte nemovitost a potřebujete zjistit její reálnou hodnotu?
Uživatel serveru RealityMIX.cz (dále jen „Server“) dostupného na internetové adrese (URL) https://www.realitymix.cz, který provozuje společnost DALTEN media s.r.o., se sídlem Na Harfě 916/9a, Praha 9, 190 00, IČO: 271 35 306 (dále jen „Správce“) jako provozovateli tohoto Serveru uděluje svůj výslovný souhlas v souladu s ustanovením § 5 zákona č. 101/2000 Sb. O ochraně osobních údajů a o změně některých zákonů, v platném znění (dále jen „zákon o ochraně osobních údajů“), se zpracováním uživatelem poskytnutých osobních údajů a dalších dat.
Uživatel poskytuje Správci osobní údaje v rozsahu: jméno, příjmení, e-mailová adresa, telefonický kontakt a další data, a to z důvodu projeveného zájmu o nemovitost, kde prostřednictvím služby Serveru Správce osloví Uživatel inzerenta uvedeného v detailu
nemovitosti - 1. Chodská realitní kancelář v.o.s. (IČ 46885366) se zájmem o jeho služby.
Uživatel tyto osobní údaje poskytuje dobrovolně a bere na vědomí, že součástí služeb Správce, které Správce Uživateli poskytuje, je vyhledání všech Uživateli vyhovujících (dle parametrů - cena, typ nemovitosti, lokalita atd.) nemovitostí. Správce za tímto účelem provozuje aplikace Hlídací pes a newsletter. Tyto služby je možné z každého zaslaného emailu odhlásit. Souhlas se zpracováním osobních údajů Uživatel poskytuje Správci na dobu neurčitou s tím, že svůj udělený souhlas může Uživatel kdykoliv na drese správce info@realitymix.cz odvolat. Správce garantuje Uživateli i další práva uvedené v ustanovení §11 a §21 zákoba č. 101/200 Sb. Ve znění pozdějších předpisů.
Více informací o zpracování údajů získáte zde (realitymix.cz/zasady-ochrany-osobnich-udaju)