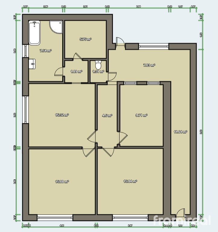
Nabízíme k prodeji rodinný dům v obci Drnholec, situovaný na pozemku o celkové výměře 472 m². Nemovitost je v původním stavu, určená k rekonstrukci, což novému majiteli dává ideální příležitost přizpůsobit si bydlení přesně podle svých představ.
Dům má aktuálně 3 obytné pokoje, součástí stavby je také tzv. černá kuchyně a dílna, které přímo vybízejí k rozšíření obytné plochy. Dispozičně i konstrukčně dům nabízí možnost vybudování dalších pokojů a také rozšíření o další nadzemní podlaží.
Na pozemku se nachází samostatná garáž a stodola, která je navíc podsklepená – ideální prostor pro dílnu, skladování nebo třeba stylový vinný sklep.
Velkým benefitem je technický stav domu – stavba je podřezaná, bez známek vlhkosti, trámy i stěny jsou zachovalé a ve velmi dobré kondici vzhledem ke stáří nemovitosti. V domě je plynový kotel cca 5 let starý s ohřevem teplé vody. Nemovitost je napojena na veškeré inženýrské sítě.
Další výhodou je příjezd na pozemek ze dvou stran, což zvyšuje komfort i variabilitu využití.
Drnholec je oblíbená obec s kompletní občanskou vybaveností, nacházející se v dobré dojezdové vzdálenosti do Brna, cca 30 min. Lokalita je ideální jak pro rodinné bydlení, tak i jako investiční příležitost. Okolí nabízí klid, vinice, přírodu a zároveň rychlé spojení do větších měst.
Dům s charakterem, pevným základem a obrovským potenciálem pro ty, kteří hledají nemovitost, kde mohou realizovat vlastní představy o bydlení – ať už pro sebe, nebo jako investici.
Pomocí naší hypoteční kalkulačky si můžete udělat orientační představu o výši měsíčních splátek hypotéky. O vše ostatní se pak postaráme my ve spolupráci s našimi obchodními partnery.
19 393 Kč
* Odhadovaná měsíční splátka vychází z výše úvěru Kč s pevnou úrokovou sazbou % po celou dobu trvání úvěru.
Uživatel serveru RealityMIX.cz (dále jen „Server“) dostupného na internetové adrese (URL) https://www.realitymix.cz, který provozuje společnost DALTEN media s.r.o., se sídlem Na Harfě 916/9a, Praha 9, 190 00, IČO: 271 35 306 (dále jen „Správce“) jako provozovateli tohoto Serveru uděluje svůj výslovný souhlas v souladu s ustanovením § 5 zákona č. 101/2000 Sb. O ochraně osobních údajů a o změně některých zákonů, v platném znění (dále jen „zákon o ochraně osobních údajů“), se zpracováním uživatelem poskytnutých osobních údajů a dalších dat.
Uživatel poskytuje Správci osobní údaje v rozsahu: jméno, příjmení, e-mailová adresa, telefonický kontakt a další data, a to z důvodu projeveného zájmu o nemovitost, kde prostřednictvím služby Serveru Správce osloví Uživatel inzerenta uvedeného v detailu
nemovitosti - FRAMI REAL (IČ 75892189) se zájmem o jeho služby.
Uživatel tyto osobní údaje poskytuje dobrovolně a bere na vědomí, že součástí služeb Správce, které Správce Uživateli poskytuje, je vyhledání všech Uživateli vyhovujících (dle parametrů - cena, typ nemovitosti, lokalita atd.) nemovitostí. Správce za tímto účelem provozuje aplikace Hlídací pes a newsletter. Tyto služby je možné z každého zaslaného emailu odhlásit. Souhlas se zpracováním osobních údajů Uživatel poskytuje Správci na dobu neurčitou s tím, že svůj udělený souhlas může Uživatel kdykoliv na drese správce info@realitymix.cz odvolat. Správce garantuje Uživateli i další práva uvedené v ustanovení §11 a §21 zákoba č. 101/200 Sb. Ve znění pozdějších předpisů.
Více informací o zpracování údajů získáte zde (realitymix.cz/zasady-ochrany-osobnich-udaju)