Prodej samostatně stojícího domu v nově vznikající vilkové čtvrti
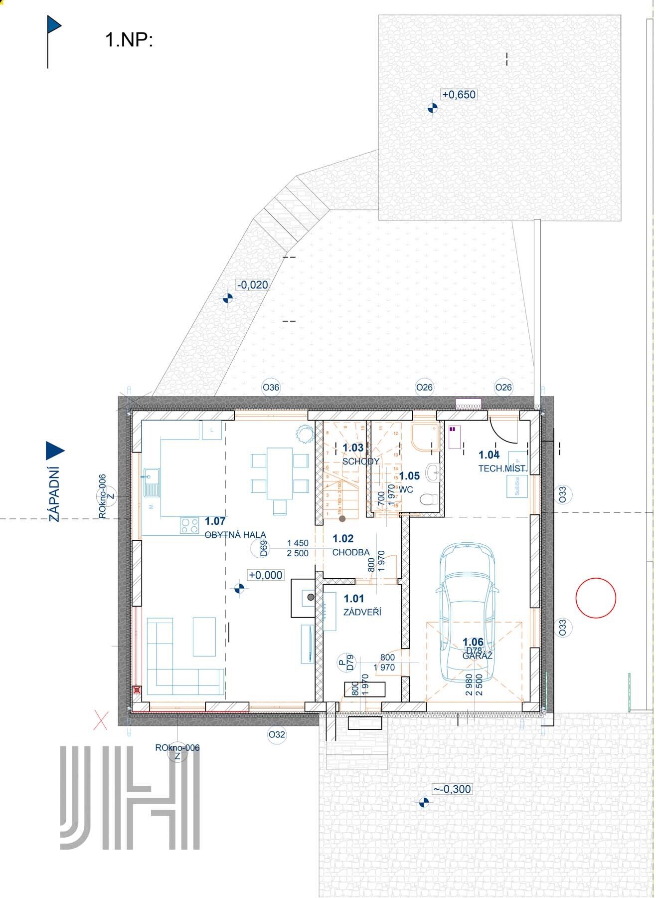
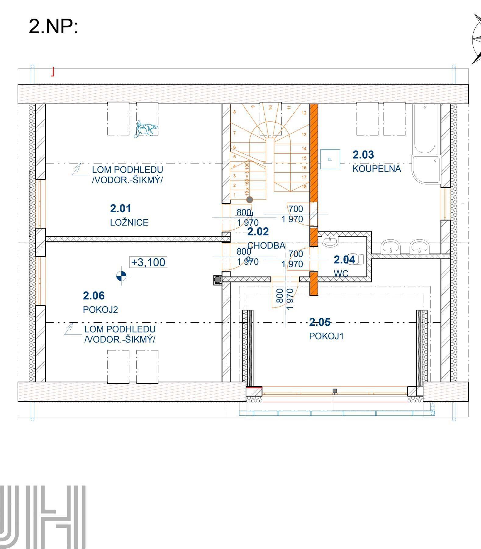
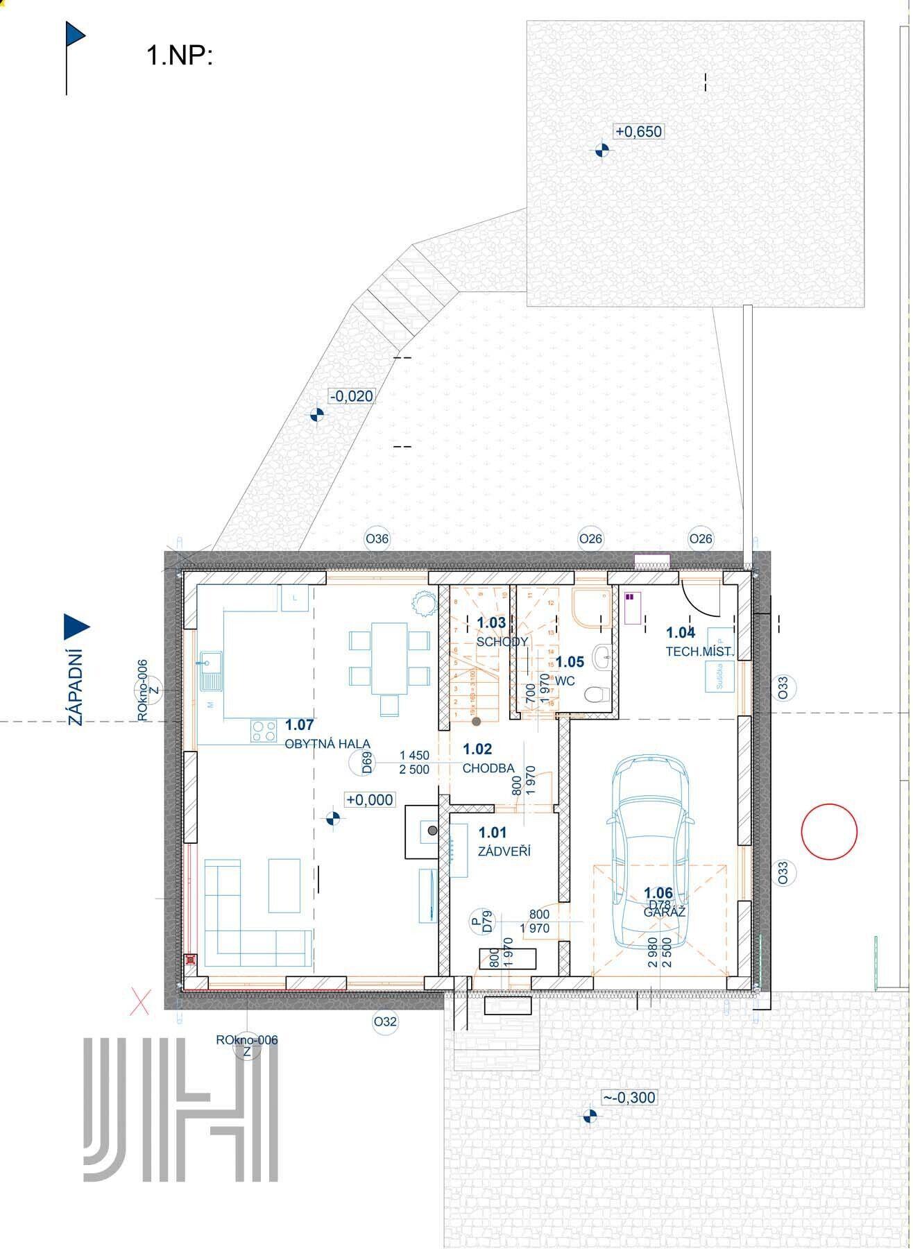
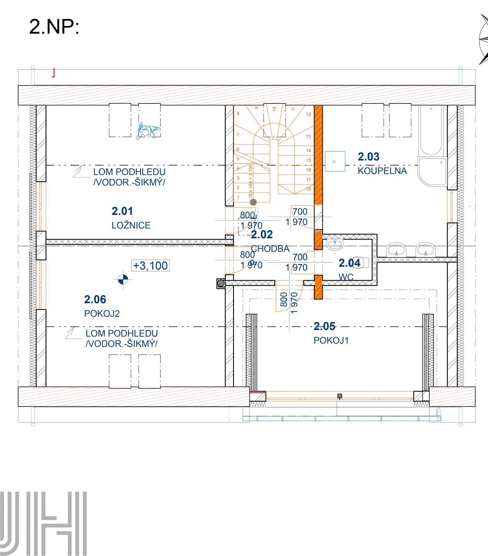
Nabízíme téměř dokončený rodinný dům vel. 4+kk s garáží na okraji obce v nově vznikající vilkové čtvrti s výbornou dostupností na dálnici Brno – Olomouc. Dům bude dokončen v 3Q/2026, napojen na inženýrské sítě. Dům o podlahové ploše přízemí 103 m2 a 1. patra o ploše 92 m2 má v přízemí zádveří, obývací pokoj s kuchyňským koutem, schodiště, WC s umyvadlem a sprchovým koutem a garáž s technickou místností. V 1. patře jsou 3 pokoje, samostatné WC s umývátkem a koupelna (2x umyvadlo, vana, sprchový kout, místo pro pračku). Vytápění domu a ohřev teplé vody je zajištěno tepelným čerpadlem systému vzduch – voda, podlahové teplovodní vytápění v obou podlažích, příprava na krb v přízemí. Exteriér domu bude dokončen, příprava pro venkovní žaluzie, keramická střešní krytina Tondach, el. garážová vrata, příjezdová cesta do garáže ze zámkové dlažby. V interiéru domu budou dokončeny omítky, vnitřní podlahy obytných místností budou připraveny pro pokládku vinylových podlah. Zahrada bude srovnána a upravena zemina. V ceně domu není kuchyňská linka, vybavení koupelen a WC (obklady, sanita), nášlapy schodišťových stupňů, interiérové dveře, krbová vložka, zábradlí schodiště, okapové chodníky a vinylové podlahy. Orientace domu na jižní a severní stranu. PENB – A. Výborná poloha na okraji obce s krásným výhledem na město, snadná dostupnost do centra města i na dálnici. Celková výměra pozemku: 662 m2.
Pomocí naší hypoteční kalkulačky si můžete udělat orientační představu o výši měsíčních splátek hypotéky. O vše ostatní se pak postaráme my ve spolupráci s našimi obchodními partnery.
42 471 Kč
* Odhadovaná měsíční splátka vychází z výše úvěru Kč s pevnou úrokovou sazbou % po celou dobu trvání úvěru.
Uživatel serveru RealityMIX.cz (dále jen „Server“) dostupného na internetové adrese (URL) https://www.realitymix.cz, který provozuje společnost DALTEN media s.r.o., se sídlem Na Harfě 916/9a, Praha 9, 190 00, IČO: 271 35 306 (dále jen „Správce“) jako provozovateli tohoto Serveru uděluje svůj výslovný souhlas v souladu s ustanovením § 5 zákona č. 101/2000 Sb. O ochraně osobních údajů a o změně některých zákonů, v platném znění (dále jen „zákon o ochraně osobních údajů“), se zpracováním uživatelem poskytnutých osobních údajů a dalších dat.
Uživatel poskytuje Správci osobní údaje v rozsahu: jméno, příjmení, e-mailová adresa, telefonický kontakt a další data, a to z důvodu projeveného zájmu o nemovitost, kde prostřednictvím služby Serveru Správce osloví Uživatel inzerenta uvedeného v detailu
nemovitosti - JH REALITY (IČ 45443769) se zájmem o jeho služby.
Uživatel tyto osobní údaje poskytuje dobrovolně a bere na vědomí, že součástí služeb Správce, které Správce Uživateli poskytuje, je vyhledání všech Uživateli vyhovujících (dle parametrů - cena, typ nemovitosti, lokalita atd.) nemovitostí. Správce za tímto účelem provozuje aplikace Hlídací pes a newsletter. Tyto služby je možné z každého zaslaného emailu odhlásit. Souhlas se zpracováním osobních údajů Uživatel poskytuje Správci na dobu neurčitou s tím, že svůj udělený souhlas může Uživatel kdykoliv na drese správce info@realitymix.cz odvolat. Správce garantuje Uživateli i další práva uvedené v ustanovení §11 a §21 zákoba č. 101/200 Sb. Ve znění pozdějších předpisů.
Více informací o zpracování údajů získáte zde (realitymix.cz/zasady-ochrany-osobnich-udaju)