Nabízíme k prodeji krásnou chalupu v klidné lokalitě, která splňuje vše, co potřebuje moderní rodina. Díky prostorné zahradě a okolí plnému přírody zde najdete dokonalé zázemí pro děti, rodinný život i volnočasové aktivity.
Hlavní přednosti:
- v dosahu škola, školka, obchody i lékař
- velká zahrada - ideální pro hry dětí, zahradničení i odpočinek
- možnost vytvořit rodinnou chalupu či chovnou stanici pro psy, kočky nebo jiné zvířecí miláčky
- klidná lokalita se soukromím a přesto skvělou dostupností všeho potřebného
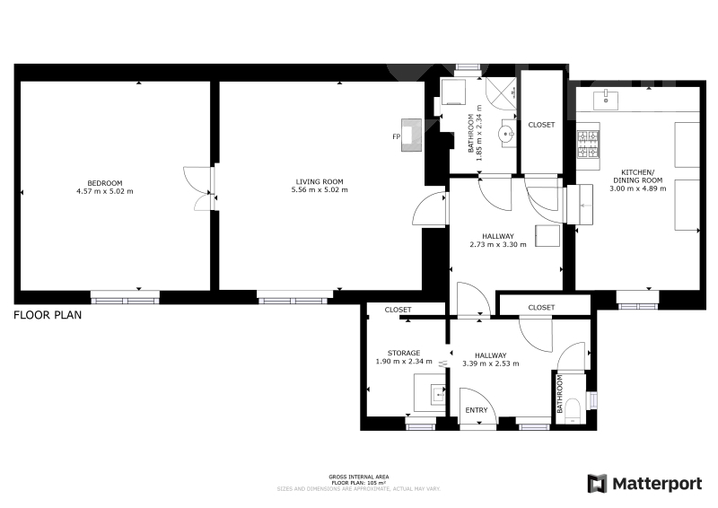
Chalupa má dispozici 2+1 a je připravená k okamžitému užívání, zároveň ale dává prostor pro další úpravy - zejména půda je natolik vysoká (3 m) a prostorná (23 x 5 m), že si z ní bez problémů vytvoříte další obytnou část. Stavba je částečně rekonstruována - nová voda, odpady, izolace, elektřina a omítky. Vytápění tuhými palivy - klasika, která má své kouzlo i praktičnost.
Na pozemku najdete vše, co k chalupě patří: velkou vzrostlou zahradu, kde se dá relaxovat i pěstovat, stodolu, bývalé chlévy, kůlnu a sklep. Každý kousek tu má své využití - ať už chcete tvořit, skladovat, hospodařit nebo jen posedět ve stínu stromů.
Lokalita: Nasavrky jsou malá obec uprostřed přírody, obklopená lesy a poli. Ideální pro ty, kdo hledají jednoduchost a klid. Přitom do Golčova Jeníkova je to jen 2 km - pěšky pohodových 20 minut, autem jste tam za 5. Ve městě je veškerá občanská vybavenost: obchod, škola, školka, lékař, pošta, restaurace i vlakové a autobusové spojení.
Navíc jen cca 25 minut autem leží Kutná Hora, památka UNESCO s historickým centrem, kavárnami, galeriemi i kulturním životem - ideální na výlety i inspirativní zastavení. A pokud milujete přírodu, za dalších 25 minut se dostanete do Železných hor - CHKO s lesy, přehradou Seč a výbornými podmínkami pro turistiku i cyklistiku.
Tato chalupa je ideální volbou pro ty, kteří hledají kombinaci rodinného pohodlí, přírody a praktického zázemí - ať už k trvalému bydlení, nebo jako rodinnou rekreační chalupu.
Pomocí naší hypoteční kalkulačky si můžete udělat orientační představu o výši měsíčních splátek hypotéky. O vše ostatní se pak postaráme my ve spolupráci s našimi obchodními partnery.
19 434 Kč
* Odhadovaná měsíční splátka vychází z výše úvěru Kč s pevnou úrokovou sazbou % po celou dobu trvání úvěru.
Uživatel serveru RealityMIX.cz (dále jen „Server“) dostupného na internetové adrese (URL) https://www.realitymix.cz, který provozuje společnost DALTEN media s.r.o., se sídlem Na Harfě 916/9a, Praha 9, 190 00, IČO: 271 35 306 (dále jen „Správce“) jako provozovateli tohoto Serveru uděluje svůj výslovný souhlas v souladu s ustanovením § 5 zákona č. 101/2000 Sb. O ochraně osobních údajů a o změně některých zákonů, v platném znění (dále jen „zákon o ochraně osobních údajů“), se zpracováním uživatelem poskytnutých osobních údajů a dalších dat.
Uživatel poskytuje Správci osobní údaje v rozsahu: jméno, příjmení, e-mailová adresa, telefonický kontakt a další data, a to z důvodu projeveného zájmu o nemovitost, kde prostřednictvím služby Serveru Správce osloví Uživatel inzerenta uvedeného v detailu
nemovitosti - Bidli reality, a.s. (IČ 06790763) se zájmem o jeho služby. Tato společnost je součástí seskupení/sítě/franšízového modelu realitních kanceláří, jejich seznam můžete zobrazit kliknutím na tento odkaz.
Hypocentrum modré pyramidy - Praha (IČ ) , Hypocentrum modré pyramidy - Brno (IČ ) , Hypocentrum Modré pyramidy - Hradec Králové (IČ ) , Hypocentrum Modré pyramidy - České Budějovice (IČ ) , Hypocentrum Modré pyramidy - Pardubice (IČ ) , Hypocentrum Modré pyramidy - Plzeň (IČ ) , Hypocentrum Modré pyramidy - Ústí nad Labem (IČ ) , Hypocentrum Modré pyramidy - Ostrava (IČ ) , Hypocentrum Modré pyramidy - Olomouc (IČ ) , Bidli reality, a.s. (IČ 06790763)
Uživatel tyto osobní údaje poskytuje dobrovolně a bere na vědomí, že součástí služeb Správce, které Správce Uživateli poskytuje, je vyhledání všech Uživateli vyhovujících (dle parametrů - cena, typ nemovitosti, lokalita atd.) nemovitostí. Správce za tímto účelem provozuje aplikace Hlídací pes a newsletter. Tyto služby je možné z každého zaslaného emailu odhlásit. Souhlas se zpracováním osobních údajů Uživatel poskytuje Správci na dobu neurčitou s tím, že svůj udělený souhlas může Uživatel kdykoliv na drese správce info@realitymix.cz odvolat. Správce garantuje Uživateli i další práva uvedené v ustanovení §11 a §21 zákoba č. 101/200 Sb. Ve znění pozdějších předpisů.
Více informací o zpracování údajů získáte zde (realitymix.cz/zasady-ochrany-osobnich-udaju)