Nabízíme ke koupi prostorný a světlý byt 3+kk v malebné obci Hamr v blízkosti Chlumu u Třeboně. Pokud hledáte klidné bydlení s nádhernou přírodou na dosah ruky, je tento byt ideální volbou!
Byt se nachází ve 2. patře bytového domu a je momentálně koncipován jako ložnice s obývacím pokojem a dva oddělené pokoje. Vytápění zajišťují moderní elektronické infrapanely, které jsou efektivní a úsporné. Byt bude předán částečně vybaven, což umožňuje okamžité nastěhování, popřípadě si prostor přizpůsobit dle vlastních potřeb.
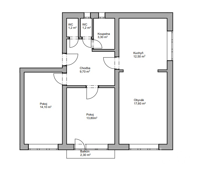
Celková plocha: 83,7 m2 (včetně balkónu 2,3 m2 a samostatného sklepa 8 m2), k bytu náleží půdní prostor (cca 40 m2), sdílená kolárna, soukromá zahrada (cca 280 m2) perfektní pro relaxaci, grilování nebo zahrádkaření.
Poplatky do fondu oprav: 1 000 Kč/měsíc
Parkování: 2+ parkovací stání
Hamr je vyhledávaná lokalita díky svému klidu a blízkosti přírody. V okolí najdete krásné pískovny, ideální pro letní koupání, rybaření nebo příjemné procházky. Okolní příroda je perfektní pro milovníky cyklistiky a dalších venkovních aktivit.
Neváhejte mě kontaktovat pro více informací a sjednání prohlídky!
Pomocí naší hypoteční kalkulačky si můžete udělat orientační představu o výši měsíčních splátek hypotéky. O vše ostatní se pak postaráme my ve spolupráci s našimi obchodními partnery.
12 106 Kč
* Odhadovaná měsíční splátka vychází z výše úvěru Kč s pevnou úrokovou sazbou % po celou dobu trvání úvěru.
Prodáváte nemovitost a potřebujete zjistit její reálnou hodnotu?
Uživatel serveru RealityMIX.cz (dále jen „Server“) dostupného na internetové adrese (URL) https://www.realitymix.cz, který provozuje společnost DALTEN media s.r.o., se sídlem Na Harfě 916/9a, Praha 9, 190 00, IČO: 271 35 306 (dále jen „Správce“) jako provozovateli tohoto Serveru uděluje svůj výslovný souhlas v souladu s ustanovením § 5 zákona č. 101/2000 Sb. O ochraně osobních údajů a o změně některých zákonů, v platném znění (dále jen „zákon o ochraně osobních údajů“), se zpracováním uživatelem poskytnutých osobních údajů a dalších dat.
Uživatel poskytuje Správci osobní údaje v rozsahu: jméno, příjmení, e-mailová adresa, telefonický kontakt a další data, a to z důvodu projeveného zájmu o nemovitost, kde prostřednictvím služby Serveru Správce osloví Uživatel inzerenta uvedeného v detailu
nemovitosti - Keller Williams Czech Republic (IČ 07796340) se zájmem o jeho služby. Tato společnost je součástí seskupení/sítě/franšízového modelu realitních kanceláří, jejich seznam můžete zobrazit kliknutím na tento odkaz.
Keller Williams Czech Republic (IČ 07796340) , Nemovito by Keller Williams (IČ 10826971) , Keller Williams Czech Republic (IČ 07796340) , Keller Williams - centrála (IČ 06521924)
Uživatel tyto osobní údaje poskytuje dobrovolně a bere na vědomí, že součástí služeb Správce, které Správce Uživateli poskytuje, je vyhledání všech Uživateli vyhovujících (dle parametrů - cena, typ nemovitosti, lokalita atd.) nemovitostí. Správce za tímto účelem provozuje aplikace Hlídací pes a newsletter. Tyto služby je možné z každého zaslaného emailu odhlásit. Souhlas se zpracováním osobních údajů Uživatel poskytuje Správci na dobu neurčitou s tím, že svůj udělený souhlas může Uživatel kdykoliv na drese správce info@realitymix.cz odvolat. Správce garantuje Uživateli i další práva uvedené v ustanovení §11 a §21 zákoba č. 101/200 Sb. Ve znění pozdějších předpisů.
Více informací o zpracování údajů získáte zde (realitymix.cz/zasady-ochrany-osobnich-udaju)