Komerční objekt s pozemkem pro výstavbu haly, 7592m2, Havlíčkův Brod
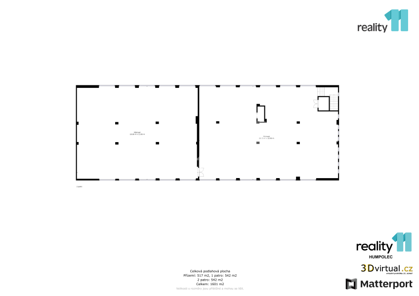
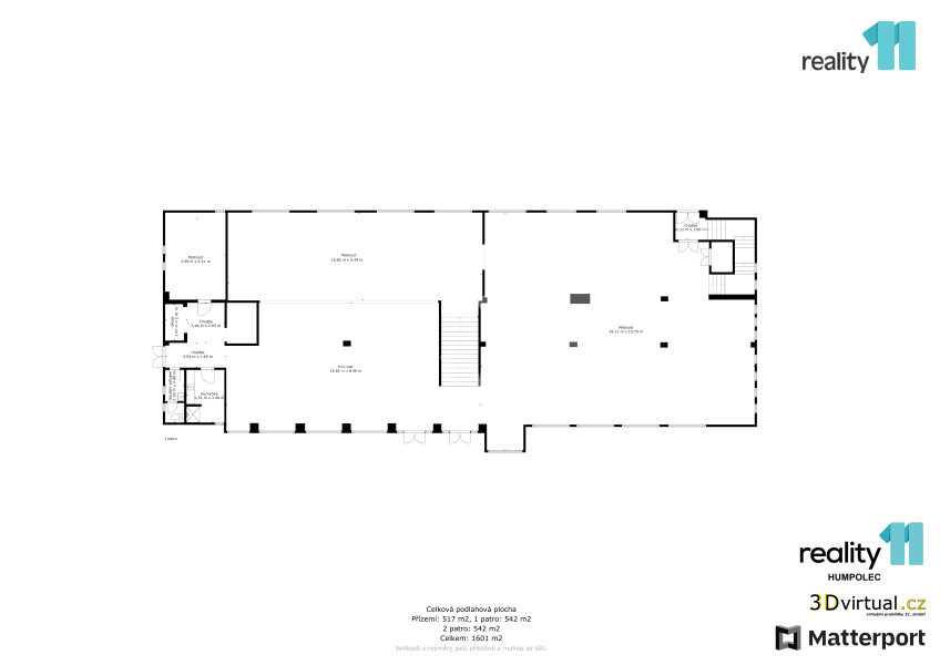
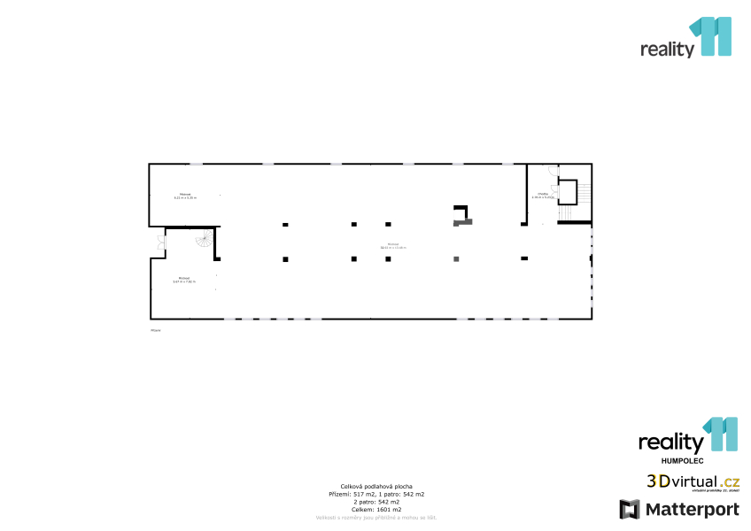
Naše společnost Vám zprostředkuje koupi komerční budovy včetně pozemku ke komerční výstavbě o celkové ploše 7.592m². Jedná se o třípodlažní budovu s celkovou užitnou plochou 1601m², s tím, že 1.PP má užitnou plochu 517m², 1.NP má užitnou plochu 542m², 2.NP má užitnou plochu 542m². Stavba byla v minulosti využívána pro vojenské účely v areálu havlíčkobrodských kasáren, aktuálně je využívána ke skladování zboží. Je více možností dalšího komerčního využití a dále možnost výstavby skladovací, výrobní haly na pozemku, který je v územním plánu určen jako plocha VD - plocha výroby a skladování - drobná a řemeslná výroba. Hlavní využití území: malovýroba, řemeslná či přidružená výroba, výrobní i nevýrobní služby, plochy pro malé a střední formy podnikání. Přípustné využití: skladování pro potřeby výroby, podniková administrativa, obchodní zařízení do 2000 m² hrubé podlažní plochy, služební byty správců objektů či nezbytného technického personálu, zařízení a infrastruktura pro průmyslový výzkum, vývoj a inovace ve vazbě na výrobu (více zašleme). Koeficient zastavení pozemku 60. Komerční zóna se nachází na okraji Města Havlíčkův Brod s příjezdem z ulice Humpolecká, dostupnost dálnice D1 velmi dobrá (exit D90 Humpolec je vzdálen 20km). K dispozici pro vás máme půdorysy objektu a dále také 3Dvirtuální prohlídku od společnosti 3Dvirtualcz, kde si objekt můžete projít z pohodlí své kanceláře, svého domova. V případě zájmu o více informací kontaktujte makléře společnosti. Ev. číslo: 24237.
Pomocí naší hypoteční kalkulačky si můžete udělat orientační představu o výši měsíčních splátek hypotéky. O vše ostatní se pak postaráme my ve spolupráci s našimi obchodními partnery.
80 934 Kč
* Odhadovaná měsíční splátka vychází z výše úvěru Kč s pevnou úrokovou sazbou % po celou dobu trvání úvěru.
Uživatel serveru RealityMIX.cz (dále jen „Server“) dostupného na internetové adrese (URL) https://www.realitymix.cz, který provozuje společnost DALTEN media s.r.o., se sídlem Na Harfě 916/9a, Praha 9, 190 00, IČO: 271 35 306 (dále jen „Správce“) jako provozovateli tohoto Serveru uděluje svůj výslovný souhlas v souladu s ustanovením § 5 zákona č. 101/2000 Sb. O ochraně osobních údajů a o změně některých zákonů, v platném znění (dále jen „zákon o ochraně osobních údajů“), se zpracováním uživatelem poskytnutých osobních údajů a dalších dat.
Uživatel poskytuje Správci osobní údaje v rozsahu: jméno, příjmení, e-mailová adresa, telefonický kontakt a další data, a to z důvodu projeveného zájmu o nemovitost, kde prostřednictvím služby Serveru Správce osloví Uživatel inzerenta uvedeného v detailu
nemovitosti - Reality 11 (IČ 29132886) se zájmem o jeho služby. Tato společnost je součástí seskupení/sítě/franšízového modelu realitních kanceláří, jejich seznam můžete zobrazit kliknutím na tento odkaz.
Dumrealit.cz (IČ 00537861) , HOME 4 PEOPLE (IČ 29132886) , Reality 11 (IČ 29132886) , REAL ESTATE CZECH REPUBLIC a.s. (IČ 29132886) , Národní Realitní Holding a.s. (IČ 02918897)
Uživatel tyto osobní údaje poskytuje dobrovolně a bere na vědomí, že součástí služeb Správce, které Správce Uživateli poskytuje, je vyhledání všech Uživateli vyhovujících (dle parametrů - cena, typ nemovitosti, lokalita atd.) nemovitostí. Správce za tímto účelem provozuje aplikace Hlídací pes a newsletter. Tyto služby je možné z každého zaslaného emailu odhlásit. Souhlas se zpracováním osobních údajů Uživatel poskytuje Správci na dobu neurčitou s tím, že svůj udělený souhlas může Uživatel kdykoliv na drese správce info@realitymix.cz odvolat. Správce garantuje Uživateli i další práva uvedené v ustanovení §11 a §21 zákoba č. 101/200 Sb. Ve znění pozdějších předpisů.
Více informací o zpracování údajů získáte zde (realitymix.cz/zasady-ochrany-osobnich-udaju)