Každý kout zde má svůj příběh, a už při vstupu je jasné, že tohle není žádná tuctová stavba. Zvenku působí dům nenápadně – o to větší překvapení čeká uvnitř. Za fasádou se skrývá překvapivě velkorysý prostor, který nabízí víc, než byste čekali.
Tento rodinný dům v samotném centru Hlučína je ideální volbou pro velkou rodinu, vícegenerační bydlení i pro ty, kteří chtějí propojit bydlení s podnikáním nebo investicí. Dispozice domu umožňuje rozdělení na dvě samostatné bytové jednotky, aniž by ztratil svůj charakter a atmosféru skutečného domova. Navíc se na zahradě nachází dřevostavba, sloužící jako kadeřnictví a bistro klub.
Dům se nachází přímo v centru Hlučína, kde máte vše, co potřebujete pro pohodlný každodenní život. Obchody, školy, školky, lékaři i veškeré služby jsou v docházkové vzdálenosti, takže se obejdete bez zdlouhavého dojíždění. Lokalita je ideální jak pro rodinné bydlení, tak pro podnikání – centrum města zajišťuje výbornou dostupnost, viditelnost a dlouhodobou hodnotu nemovitosti.
Rodinný dům
- kombinace původní části s přístavbou
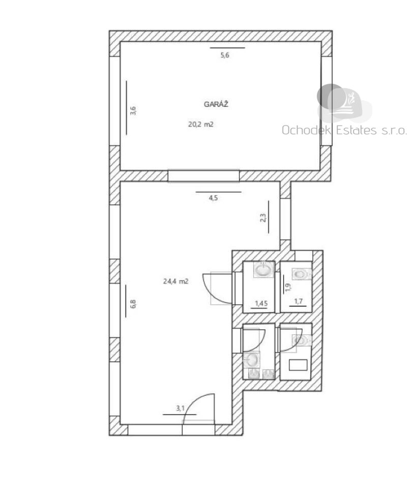
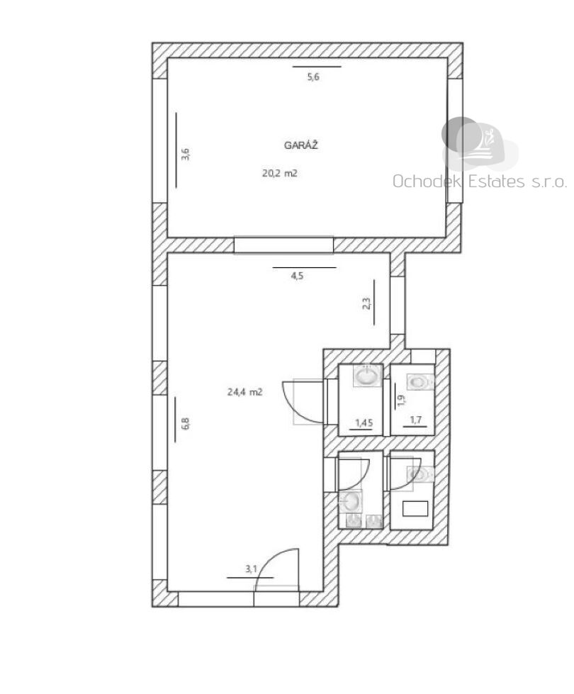
- cca 140 m² obytné plochy
- plastová okna (pouze dvě původní okna dodávají domu autentický šarm)
- voda v plastu, přístavba zateplená
- velmi dobrý stav – dům je obyvatelný ihned
- možnost rozdělení na dvě bytové jednotky
- zahrada s novým přístřeškem na auto, zahradní chata na nářadí, 3 dlážděná parkovací stání
- parkování možné také na ulici před domem
Dispozice RD
V přízemí kuchyň s jídelnou, ložnice, obývák, dětský pokoj, koupelna s vanou i sprchovým koutem, samostatné WC, praktický úložný prostor pod schodištěm
V prvním patře velký otevřený obývací prostor se vstupem do ložnice a druhého pokoje, kde je příprava sítí pro vybudování kuchyně, koupelna s WC, a hlavně vstup na velkou terasu, která výrazně rozšiřuje obytný prostor
Komerční prostor
Podnikatelský bonus, který dává smysl a kde se otevírá obrovský potenciál celé nemovitosti. Od prvního dne zde můžete provozovat kadeřnictví, bistro nebo klidně obojí společně.
- dva samostatné záchody, z toho jeden bezbariérový
- velký otevřený prostor, dříve využívaný k posezení a výčep.
Proč právě tato nemovitost?
_ centrum města
_ bydlení + podnikání nebo pronájem na jednom místě
_ možnost dvou bytových jednotek
_ zachovalý stav, pouze drobné úpravy dle vkusu
_ investice s reálným výnosem
Možná výměna za byt v Hlučíně.
Pozn.: Financování pomůžeme zařídit. Energetický štítek se v současné době zpracovává, prozatím uvádíme zákonné "G". Uvedená kupní cena nezahrnuje zprostředkovatelský poplatek ve výši 3%+DPH z ujednané ceny.
Pomocí naší hypoteční kalkulačky si můžete udělat orientační představu o výši měsíčních splátek hypotéky. O vše ostatní se pak postaráme my ve spolupráci s našimi obchodními partnery.
31 985 Kč
* Odhadovaná měsíční splátka vychází z výše úvěru Kč s pevnou úrokovou sazbou % po celou dobu trvání úvěru.
Uživatel serveru RealityMIX.cz (dále jen „Server“) dostupného na internetové adrese (URL) https://www.realitymix.cz, který provozuje společnost DALTEN media s.r.o., se sídlem Na Harfě 916/9a, Praha 9, 190 00, IČO: 271 35 306 (dále jen „Správce“) jako provozovateli tohoto Serveru uděluje svůj výslovný souhlas v souladu s ustanovením § 5 zákona č. 101/2000 Sb. O ochraně osobních údajů a o změně některých zákonů, v platném znění (dále jen „zákon o ochraně osobních údajů“), se zpracováním uživatelem poskytnutých osobních údajů a dalších dat.
Uživatel poskytuje Správci osobní údaje v rozsahu: jméno, příjmení, e-mailová adresa, telefonický kontakt a další data, a to z důvodu projeveného zájmu o nemovitost, kde prostřednictvím služby Serveru Správce osloví Uživatel inzerenta uvedeného v detailu
nemovitosti - Ochodek Estates s.r.o. (IČ 19934661) se zájmem o jeho služby.
Uživatel tyto osobní údaje poskytuje dobrovolně a bere na vědomí, že součástí služeb Správce, které Správce Uživateli poskytuje, je vyhledání všech Uživateli vyhovujících (dle parametrů - cena, typ nemovitosti, lokalita atd.) nemovitostí. Správce za tímto účelem provozuje aplikace Hlídací pes a newsletter. Tyto služby je možné z každého zaslaného emailu odhlásit. Souhlas se zpracováním osobních údajů Uživatel poskytuje Správci na dobu neurčitou s tím, že svůj udělený souhlas může Uživatel kdykoliv na drese správce info@realitymix.cz odvolat. Správce garantuje Uživateli i další práva uvedené v ustanovení §11 a §21 zákoba č. 101/200 Sb. Ve znění pozdějších předpisů.
Více informací o zpracování údajů získáte zde (realitymix.cz/zasady-ochrany-osobnich-udaju)