Hledáte byt po kompletní rekonstrukci na klidném místě v Hodoníně? Hledáte investiční byt ke krátkodobemu ubytování? S bezproblémovým parkováním a ihned k nastěhování / provozování?
Ve výhradním zastoupení majitelky Vám zprostředkujeme koupi bytu o velikosti 3+kk po kompletní modernizaci
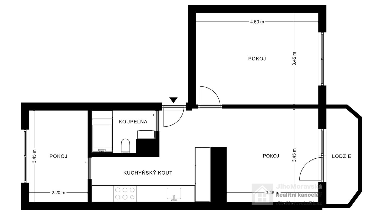
v ulici I. Olbrachta v okresním městě Hodonín.
Bytová jednotka se nachází ve třetím nadzemním podlaží ze čtyř bez výtahu. Je v osobním vlastnictví a bez dluhů na revitalizaci bytového domu.
Kompletní rekonstrukce bytu proběhla v roce 2025.
Dispozice bytu: chodba, koupelna s toaletou a sprchovým koutem, kuchyňský kout s vestavěnými spotřebiči,
ložnice, pokoj, pokoj s přístupem do lodžie, který má výhed do nově budovaného parku.
V mezipatře se nachází komora. Ve sklepních prostorách bytového domu je prostorný uzamykatelný sklep.
Užitná plocha bytu je 68 m² s obytnou plochou 51 m². (plocha lodžie 4,30 m², komora v mezipatře 1,30 m² a zděný sklep 11,60 m².
Měsíční náklady na provoz bytu jsou ve výši 4.895 Kč (elektřina, voda, stočné, služby a fond oprav). Byt má vlastní bojler a je vytápěn vlastním plynovým kotlem.
Kuchyňská linka je vybavena elektrickou troubou, mikrovlnou troubu a indukční varnou deskudále je v kuchyňské lince zabudována digestoř, myčka, pračka a lednice s mrazničkou. Dveře do
koupelny a ložnice se zasouvají do pouzdra. Byt je vytápěn vlastním elektrickým kotlem.
V blízkém okolí bytového domu je mateřská i základní škola, obchod s potravinami a dětské hřiště. V širším
okolí pošta a sportovní hala. Na autobusovou zastávku MHD dojdete do 7 minut chůze.
Parkování přímo před domem.
K nastěhování dohodou.
Zaujala Vás tato nabídka? Máte zájem o prohlídku? Vám vyhovující termín prohlídky (datum a čas) s kontakty na Vás (e-mail + tel. číslo) zasílejte formou odpovědi na tuto inzerci. Realitní makléř Vás následně bude telefonicky kontaktovat.
V případě více vážných zájemců, si prodávající vyhrazuje právo vybrat kupujícího, na základě jím stanovených kritérií.
Pomocí naší hypoteční kalkulačky si můžete udělat orientační představu o výši měsíčních splátek hypotéky. O vše ostatní se pak postaráme my ve spolupráci s našimi obchodními partnery.
20 831 Kč
* Odhadovaná měsíční splátka vychází z výše úvěru Kč s pevnou úrokovou sazbou % po celou dobu trvání úvěru.
Prodáváte nemovitost a potřebujete zjistit její reálnou hodnotu?
Uživatel serveru RealityMIX.cz (dále jen „Server“) dostupného na internetové adrese (URL) https://www.realitymix.cz, který provozuje společnost DALTEN media s.r.o., se sídlem Na Harfě 916/9a, Praha 9, 190 00, IČO: 271 35 306 (dále jen „Správce“) jako provozovateli tohoto Serveru uděluje svůj výslovný souhlas v souladu s ustanovením § 5 zákona č. 101/2000 Sb. O ochraně osobních údajů a o změně některých zákonů, v platném znění (dále jen „zákon o ochraně osobních údajů“), se zpracováním uživatelem poskytnutých osobních údajů a dalších dat.
Uživatel poskytuje Správci osobní údaje v rozsahu: jméno, příjmení, e-mailová adresa, telefonický kontakt a další data, a to z důvodu projeveného zájmu o nemovitost, kde prostřednictvím služby Serveru Správce osloví Uživatel inzerenta uvedeného v detailu
nemovitosti - JihoMoravská Realitní kancelář s.r.o. (IČ 05470722) se zájmem o jeho služby.
Uživatel tyto osobní údaje poskytuje dobrovolně a bere na vědomí, že součástí služeb Správce, které Správce Uživateli poskytuje, je vyhledání všech Uživateli vyhovujících (dle parametrů - cena, typ nemovitosti, lokalita atd.) nemovitostí. Správce za tímto účelem provozuje aplikace Hlídací pes a newsletter. Tyto služby je možné z každého zaslaného emailu odhlásit. Souhlas se zpracováním osobních údajů Uživatel poskytuje Správci na dobu neurčitou s tím, že svůj udělený souhlas může Uživatel kdykoliv na drese správce info@realitymix.cz odvolat. Správce garantuje Uživateli i další práva uvedené v ustanovení §11 a §21 zákoba č. 101/200 Sb. Ve znění pozdějších předpisů.
Více informací o zpracování údajů získáte zde (realitymix.cz/zasady-ochrany-osobnich-udaju)