Rodinný dům s projektem na rekonstrukci, 6+2 (211 m²), Hodslavice
Představuji vám unikátní příležitost ke koupi vícegeneračního rodinného domu s vytvořeným kompletním projektem na rekonstrukci, situovaného v malebné obci Hodslavice. Dům je aktuálně členěn do dvou nadzemních podlaží a jednoho podzemního. Okolí a lokalita nabízí idylický venkovský život s dobrou dostupností do velkých měst a veškerou občanskou vybavenost. Přiložené vizualizace odpovídají připravenému projektu na rekonstrukci, ale není podmínkou dle tohoto projektu rekonstrukci realizovat.
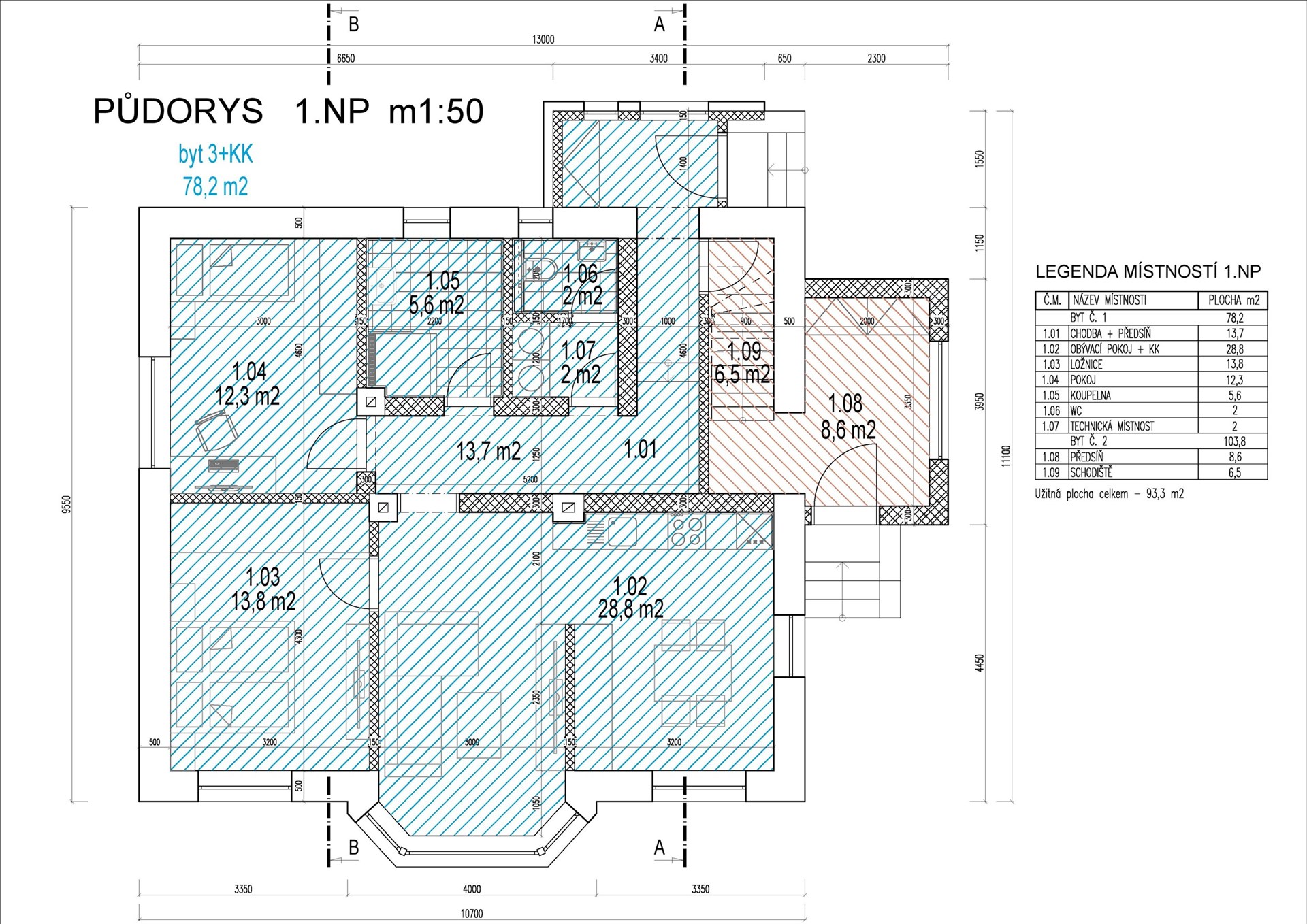
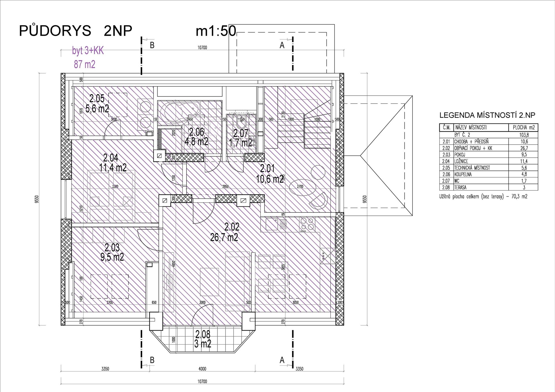
Dům má celkovou obytnou plochu 178 m² a užitkovou plochu 211 m², která je rozložena mezi dvěma nadzemními patry a jedním podzemním podlažím. Dle vytvořené studie a stavebního projektu lze dům přestavět na dvě samostatná bytové jednotky s dispozicí 3+kk, kdy byt ve 2.NP disponuje balkonem a menším podkroví. Obě bytové jednotky budou mít svoje vlastní, oddělené a samostatně přístupné sklepní prostory. Spodní byt v přízemí nabízí potom 78,2 m² užitné plochy a byt ve druhém podlaží potom 87 m². Oba byty počítají s vlastním vstupem, a tedy jsou absolutně na sobě nezávislé. Díky tomu je dům a byty ideální pro rodiny hledající prostor a soukromí. Nicméně lze zachovat aktuální společné prostory a pak může být dům kompletně vícegenerační a nabízet více společných prostor pro rodiny. V současné stavu je dům určen k rekonstrukci, což představuje skvělou příležitost přizpůsobit interiér podle vlastních představ a potřeb, kdy se projekt může změnit dle představ nových majitelů. Po vybudování samostatných bytů lze využít jako investiční příležitost se ziskem z pronájmů.
U domu může vzniknout dle studie 5 parkovacích míst na pozemku za bránou. Aktuálně se počítá s využitím pozemku, který je zastavěný hospodářským stavením, a tento po demolici využít na výstavbu druhého rodinného domu. Není to však podmínkou.
Hodslavice jsou položeny ideálně uprostřed cesty mezi Novým Jičínem a Valašským Meziříčím, kdy do obou měst se dostanete pohodlně autobusem či do 10 minut osobním vozidlem. Dům s projektem je k dispozici ihned a nákup je možný prostřednictvím hypotečního úvěr jehož nejlepší podmínky vám pomohu zajistit.
Dům je aktuálně napojen na elektřinu a obecní vodovod. Plynová přípojka a kanalizace se nachází před domem a je možné dům bez problémů napojit. V projektu se počítá s elektrickým kotlem na vytápění a ohřev vody.
Těším se, až vám tento dům a projekt na rekonstrukci budu moci představit osobně. Martin Matela LEV REALIT
Cena:
Cena na vyžádání
Poznámka:
Info v RK
Datum k nastěhování:
07.11.2024
Číslo zakázky:
REALITYMIX-922248
Podrobné informace
Poloha objektu:samostatný
Druh objektu:cihlová
Stav objektu:před rekonstrukcí
Počet podlaží objektu:2
Typ domu:patrový
Zastavěná plocha:137 m²
Plocha parcely:840 m²
Zahrada:369 m²
Užitná plocha:211 m²
Sklep:32 m²
Balkon:3 m²
Doprava:silnice
Voda:Zdroj pro celý objekt, Voda - dálkový vodovod
Uživatel serveru RealityMIX.cz (dále jen „Server“) dostupného na internetové adrese (URL) https://www.realitymix.cz, který provozuje společnost DALTEN media s.r.o., se sídlem Na Harfě 916/9a, Praha 9, 190 00, IČO: 271 35 306 (dále jen „Správce“) jako provozovateli tohoto Serveru uděluje svůj výslovný souhlas v souladu s ustanovením § 5 zákona č. 101/2000 Sb. O ochraně osobních údajů a o změně některých zákonů, v platném znění (dále jen „zákon o ochraně osobních údajů“), se zpracováním uživatelem poskytnutých osobních údajů a dalších dat.
Uživatel poskytuje Správci osobní údaje v rozsahu: jméno, příjmení, e-mailová adresa, telefonický kontakt a další data, a to z důvodu projeveného zájmu o nemovitost, kde prostřednictvím služby Serveru Správce osloví Uživatel inzerenta uvedeného v detailu
nemovitosti - LEV REALIT s.r.o. (IČ 29202884) se zájmem o jeho služby.
Uživatel tyto osobní údaje poskytuje dobrovolně a bere na vědomí, že součástí služeb Správce, které Správce Uživateli poskytuje, je vyhledání všech Uživateli vyhovujících (dle parametrů - cena, typ nemovitosti, lokalita atd.) nemovitostí. Správce za tímto účelem provozuje aplikace Hlídací pes a newsletter. Tyto služby je možné z každého zaslaného emailu odhlásit. Souhlas se zpracováním osobních údajů Uživatel poskytuje Správci na dobu neurčitou s tím, že svůj udělený souhlas může Uživatel kdykoliv na drese správce info@realitymix.cz odvolat. Správce garantuje Uživateli i další práva uvedené v ustanovení §11 a §21 zákoba č. 101/200 Sb. Ve znění pozdějších předpisů.
Více informací o zpracování údajů získáte zde (realitymix.cz/zasady-ochrany-osobnich-udaju)