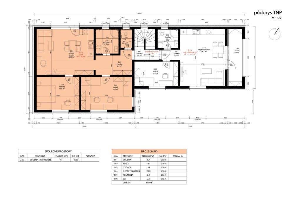
Nabízíme k prodeji byt novostavbu bytu v OV o velikosti 3+kk, o výměře 81,1 m2, který je součástí moderní novostavby domu se třemi bytovými jednotkami v obci Holubice. Jedná se o poslední nabídku bytu v tomto domě. Byt se nachází ve 2.NP. Možnost dokoupit parkovací stání u domu, kryté parkovací stání, garáž, sklep, klimatizaci, venkovní žaluzie. Dále možnost pronájmu zahrady u bytu o výměře cca 81 m2 ( možnost odkupu). Byt je ve výstavbě.
V ceně bytu:
- vylité podlahy + omítky
- okna plastová, 5-ti komorová, trojsklo
- vytápění - tepelné čerpadlo - podlahové vytápění do systémových desek vč. rozdělovače, v koupelně i topné těleso
- vzduchotechnika průduchy, rekuperace, fotovoltaika
Cena bytu bez dokončeného interiéru za cenu 6.290.000,-Kč včetně provize.
Možnost koupě včetně dokončeného interiéru za cenu 7.220.000,-Kč včetně provize.
Více informací ohledně financování a vč. podkladů v RK. V případě financování hypotečním úvěrem - finanční poradce zajištěn.
Energetická třída A.
Pomocí naší hypoteční kalkulačky si můžete udělat orientační představu o výši měsíčních splátek hypotéky. O vše ostatní se pak postaráme my ve spolupráci s našimi obchodními partnery.
25 467 Kč
* Odhadovaná měsíční splátka vychází z výše úvěru Kč s pevnou úrokovou sazbou % po celou dobu trvání úvěru.
Prodáváte nemovitost a potřebujete zjistit její reálnou hodnotu?
Uživatel serveru RealityMIX.cz (dále jen „Server“) dostupného na internetové adrese (URL) https://www.realitymix.cz, který provozuje společnost DALTEN media s.r.o., se sídlem Na Harfě 916/9a, Praha 9, 190 00, IČO: 271 35 306 (dále jen „Správce“) jako provozovateli tohoto Serveru uděluje svůj výslovný souhlas v souladu s ustanovením § 5 zákona č. 101/2000 Sb. O ochraně osobních údajů a o změně některých zákonů, v platném znění (dále jen „zákon o ochraně osobních údajů“), se zpracováním uživatelem poskytnutých osobních údajů a dalších dat.
Uživatel poskytuje Správci osobní údaje v rozsahu: jméno, příjmení, e-mailová adresa, telefonický kontakt a další data, a to z důvodu projeveného zájmu o nemovitost, kde prostřednictvím služby Serveru Správce osloví Uživatel inzerenta uvedeného v detailu
nemovitosti - OK REAL (IČ 49488104) se zájmem o jeho služby.
Uživatel tyto osobní údaje poskytuje dobrovolně a bere na vědomí, že součástí služeb Správce, které Správce Uživateli poskytuje, je vyhledání všech Uživateli vyhovujících (dle parametrů - cena, typ nemovitosti, lokalita atd.) nemovitostí. Správce za tímto účelem provozuje aplikace Hlídací pes a newsletter. Tyto služby je možné z každého zaslaného emailu odhlásit. Souhlas se zpracováním osobních údajů Uživatel poskytuje Správci na dobu neurčitou s tím, že svůj udělený souhlas může Uživatel kdykoliv na drese správce info@realitymix.cz odvolat. Správce garantuje Uživateli i další práva uvedené v ustanovení §11 a §21 zákoba č. 101/200 Sb. Ve znění pozdějších předpisů.
Více informací o zpracování údajů získáte zde (realitymix.cz/zasady-ochrany-osobnich-udaju)