Prodej NOVOSTAVBY rodinného domu 4 kk 155 m2 Holýšov
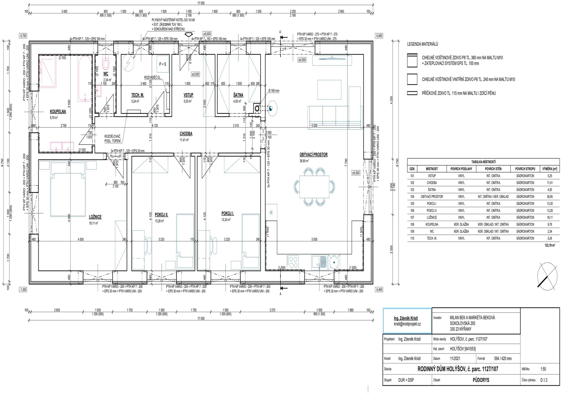
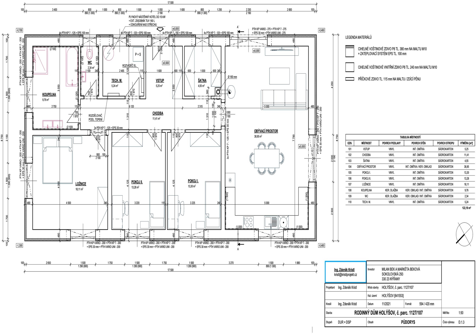
Nabízíme k prodeji novostavbu rodinného domu o celkové užitné ploše 122,2 m2 a zastavěné ploše 155 m2
- čistá užitná plocha obytných místností je 122,2 m2
- obývací pokoj s kuchyňským a jídelním koutem s vchodem na terasy domu
- 3 samostatné pokoje
- šatna
- koupelna, samostatná toaleta
- velká technická místnost s druhou toaletou
- vytápění a ohřev vody plynový kotel
- boiler obsah 120 l
- velmi nízké provozní náklady celého domu PENB C
- topení plyn - podlahového topení celého domu
- topení je možné doplnit i kombinací elektrokotel, či tepelné čerpadlo
- voda - městský vodovod
- odpady - obecní kanalizace
- možnost umístění krbu či krbových kamen
- kvalitní plastová okna s izolačními trojskly
- venkovní předokenní žaluzie "Z" na elektrické ovládání
Při výstavbě a celkové realizaci domu byl kladen velký důraz na použití kvalitních materiálů.
- výstavba 2024 , kolaudace 2025
- prodávající poskytne zájemci kompletní fotodokumentaci z průběhu výstavby, elektroinstalací,
instalace topení, vody, zateplovaní atd
- nový majitel dokončí nemovitost přesně dle svých představ a designu materiálů jako jsou krytiny podlah,
obklady a sanita koupelny a wc a realizace kuchyně, zahrady a oplocení
- poloha domu a umístění domu na pozemku poskytuje absolutní soukromí
- krásný pozemek v blízkosti lesa
- perfektní dostupnost dálnice D5, centra města Plzně a dalších měst
- velmi klidná část obce v dostupnosti přírody, cyklostezky a další možnosti aktivního odpočinku
- v blízkosti zároveň veškerá občanská vybavenost, školky, školy, lékárna, obchody, restaurace, kavárny a další
- minimální provoz v této lokalitě, vjezd pouze rezidenti
- použité plánky půdorysů jsou pouze s orientačními rozměry, zájemce obdrží přesné stavební výkresy a půdorysy
- prodávající si vyhrazuje právo vybrat a určit si kupujícího
- pro financování a dokončení realizace domu Vám doporučím odborníky v oboru
Pomocí naší hypoteční kalkulačky si můžete udělat orientační představu o výši měsíčních splátek hypotéky. O vše ostatní se pak postaráme my ve spolupráci s našimi obchodními partnery.
33 847 Kč
* Odhadovaná měsíční splátka vychází z výše úvěru Kč s pevnou úrokovou sazbou % po celou dobu trvání úvěru.
Uživatel serveru RealityMIX.cz (dále jen „Server“) dostupného na internetové adrese (URL) https://www.realitymix.cz, který provozuje společnost DALTEN media s.r.o., se sídlem Na Harfě 916/9a, Praha 9, 190 00, IČO: 271 35 306 (dále jen „Správce“) jako provozovateli tohoto Serveru uděluje svůj výslovný souhlas v souladu s ustanovením § 5 zákona č. 101/2000 Sb. O ochraně osobních údajů a o změně některých zákonů, v platném znění (dále jen „zákon o ochraně osobních údajů“), se zpracováním uživatelem poskytnutých osobních údajů a dalších dat.
Uživatel poskytuje Správci osobní údaje v rozsahu: jméno, příjmení, e-mailová adresa, telefonický kontakt a další data, a to z důvodu projeveného zájmu o nemovitost, kde prostřednictvím služby Serveru Správce osloví Uživatel inzerenta uvedeného v detailu
nemovitosti - Hedvika Varcholková (IČ 66978203) se zájmem o jeho služby.
Uživatel tyto osobní údaje poskytuje dobrovolně a bere na vědomí, že součástí služeb Správce, které Správce Uživateli poskytuje, je vyhledání všech Uživateli vyhovujících (dle parametrů - cena, typ nemovitosti, lokalita atd.) nemovitostí. Správce za tímto účelem provozuje aplikace Hlídací pes a newsletter. Tyto služby je možné z každého zaslaného emailu odhlásit. Souhlas se zpracováním osobních údajů Uživatel poskytuje Správci na dobu neurčitou s tím, že svůj udělený souhlas může Uživatel kdykoliv na drese správce info@realitymix.cz odvolat. Správce garantuje Uživateli i další práva uvedené v ustanovení §11 a §21 zákoba č. 101/200 Sb. Ve znění pozdějších předpisů.
Více informací o zpracování údajů získáte zde (realitymix.cz/zasady-ochrany-osobnich-udaju)