Vesnická usedlost-rodinný dům s hospodářskými stavbami v Hořanech u Poříčan
Nabízíme k prodeji jedinečnou vesnickou usedlost v malebné obci Hořany u Poříčan, v okrese Nymburk, která je součástí vyhledávaného mikroregionu Nymbursko. Tato usedlost nabízí ideální kombinaci pohodlí, soukromí a obrovského potenciálu pro bydlení, rekreaci nebo podnikání v klidném venkovském prostředí, přesto s výbornou dostupností do Prahy i Nymburka (Nymburk 13 km, Praha Černý Most cca 20 minut autem).
Dispozice a parametry nabídky:
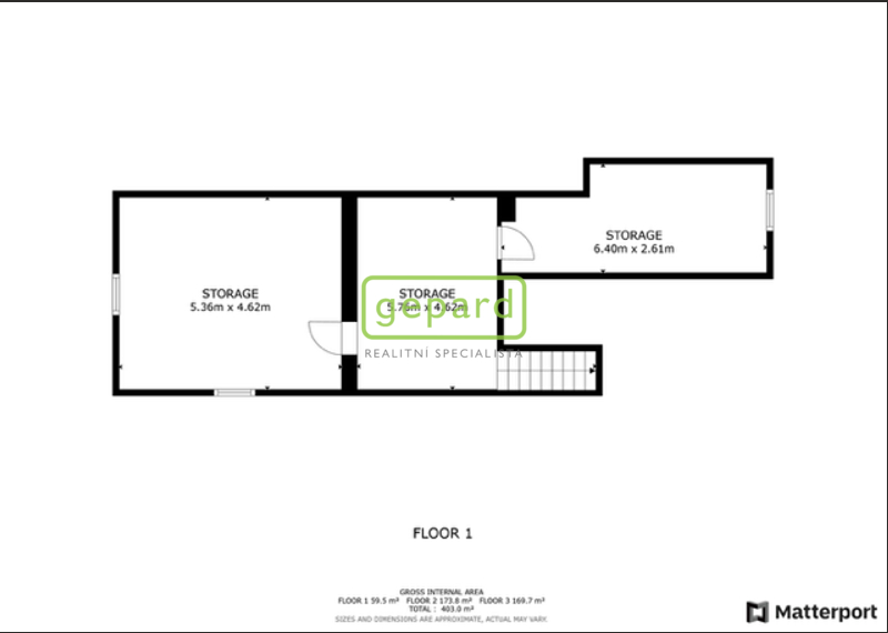
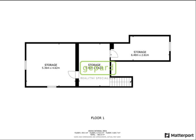
Rodinný dům 4+1 k rekonstrukci – obytná plocha přízemí činí prostorných 173 m². Dům byl postaven kolem roku 1918 na průtočných základech, má dřevěná okna a je částečně podsklepený (60 m² sklep).
Vnitřní členění domu: v přízemí se nachází 3 pokoje a kuchyně, prostorná hala, komora, koupelna s toaletou. V mezipatře je menší pokoj a v podkroví další pokoj spolu s rozlehlou půdou o výměře v součtu 170 m², která se přímo nabízí k rozšíření obytných prostor a vybudování obytných metrů.
Vynikající technický stav krovu a střechy - střešní krytina je bobrovka, dva dvou průduchové komíny: jeden z nich má průduch vyvložkovaný, druhý komín je nevyužívaný a slouží k odvětrávání.
Sklep: sklad uhlí, místnost na usnadnění ovoce i zeleniny, prostor pro vodní nádrž Darling.
Voda: z vlastní kopané studny (cca 6 m od domu), možnost připojení na veřejný vodovod (přípojka vyhotovena).
Odpad: dvoukomorová jímka s přepadem (cca 12 m od domu), možnost připojení na kanalizaci (přípojka vyhotovena).
Vytápění: kamna na tuhá paliva a el. přímotopy, ohřev vody bojlerem jak v koupelně tak i v kuchyni.
Elektřina: v domě hliníkové rozvody, ve sklepě jsou nové měděné rozvody.
Hospodářské stavby: stodola zděná stavba o ploše 282 m² s hurdiskovým stropem ve výborném stavu, samostatný vstup, příjezd, vlastní elektroměr a přívod elektřiny. Součástí usedlosti jsou i další drobné stavby, ideální pro podnikání, skladování, chov zvířat nebo jiné využití dle vašich potřeb.
Lokalita: Hořany jsou klidná obec v srdci Polabí, obklopená přírodou a zemědělskou krajinou. V blízkosti najdete veškerou občanskou vybavenost – školu, školku, obchod, poštu, restaurace, lékaře, sportovní a volnočasové možnosti. Výborné spojení vlakem i autobusem (ve vesnici), nájezd na dálnici D11 je vzdálen jen několik minut.
Klíčové výhody této nemovitosti: výjimečně prostorné zázemí, ideální pro multifunkční využití - rodinné i vícegenerační bydlení, podnikání, hospodaření, či přestavbu na stylové venkovské sídlo, penzion nebo farmu. Ten kdo podniká v oblasti autodopravy, autoservisu , drobné řemeslné výroby, zemědělské výroby, truhlářství apod. ocení široké možnosti využití stodoly, včetně komfortního parkovací prostoru okolo stavby.
Neváhejte a přijďte se přesvědčit o jedinečné atmosféře a potenciálu této usedlosti. Pro více informací nebo sjednání osobní prohlídky nás kontaktujte ještě dnes!
Splňte si sen o životě na venkově – tato nabídka je jedinečná! Uvidíte sami.
Poznámka: vedené výměry jsou orientaci, zdrojem je matterport Scan a podklady dodané majitelem
Pomocí naší hypoteční kalkulačky si můžete udělat orientační představu o výši měsíčních splátek hypotéky. O vše ostatní se pak postaráme my ve spolupráci s našimi obchodními partnery.
44 334 Kč
* Odhadovaná měsíční splátka vychází z výše úvěru Kč s pevnou úrokovou sazbou % po celou dobu trvání úvěru.
Uživatel serveru RealityMIX.cz (dále jen „Server“) dostupného na internetové adrese (URL) https://www.realitymix.cz, který provozuje společnost DALTEN media s.r.o., se sídlem Na Harfě 916/9a, Praha 9, 190 00, IČO: 271 35 306 (dále jen „Správce“) jako provozovateli tohoto Serveru uděluje svůj výslovný souhlas v souladu s ustanovením § 5 zákona č. 101/2000 Sb. O ochraně osobních údajů a o změně některých zákonů, v platném znění (dále jen „zákon o ochraně osobních údajů“), se zpracováním uživatelem poskytnutých osobních údajů a dalších dat.
Uživatel poskytuje Správci osobní údaje v rozsahu: jméno, příjmení, e-mailová adresa, telefonický kontakt a další data, a to z důvodu projeveného zájmu o nemovitost, kde prostřednictvím služby Serveru Správce osloví Uživatel inzerenta uvedeného v detailu
nemovitosti - GEPARD REALITY/Tobi reality a finance (IČ 11733837) se zájmem o jeho služby. Tato společnost je součástí seskupení/sítě/franšízového modelu realitních kanceláří, jejich seznam můžete zobrazit kliknutím na tento odkaz.
GEPARD REALITY/BOARS (IČ 26066734) , GEPARD REALITY/AB Domus (IČ 27611736) , GEPARD REALITY/Absoluta Real (IČ 28947444) , GEPARD REALITY/REALITY MUZEJKA (IČ 60739606) , GEPARD REALITY/KWitka Group Reality (IČ 06295428) , GEPARD REALITY/Pallas Athena Group (IČ 28528263) , GEPARD REALITY/Living (IČ 27892531) , GEPARD REALITY/Tobi reality a finance (IČ 11733837) , GEPARD REALITY/Nesreality (IČ 08480150) , GEPARD REALITY/ČESKÁ HYPOTEČNÍ reality (IČ 14153971) , GEPARD REALITY/Specialisté na bydlení (IČ 04779282) , GEPARD REALITY/New Home (IČ 14053365) , GEPARD REALITY/Dream nemovitosti (IČ 17567807) , GEPARD REALITY/Omega Real Estate Agency (IČ 17637635) , GEPARD REALITY/ILIĆ REALITY (IČ 07656645) , GEPARD REALITY/Motyčka Reality a Finance (IČ 21201722) , GEPARD REALITY/MARATHON Reality (IČ 21674451) , GEPARD REALITY/Kuba’s Eleven (IČ 21678294) , GEPARD REALITY/Kyjonka Reality & Hypotéky (IČ 23001356) , GEPARD REALITY/WestVary (IČ 23808756) , GEPARD REALITY (IČ 28528263)
Uživatel tyto osobní údaje poskytuje dobrovolně a bere na vědomí, že součástí služeb Správce, které Správce Uživateli poskytuje, je vyhledání všech Uživateli vyhovujících (dle parametrů - cena, typ nemovitosti, lokalita atd.) nemovitostí. Správce za tímto účelem provozuje aplikace Hlídací pes a newsletter. Tyto služby je možné z každého zaslaného emailu odhlásit. Souhlas se zpracováním osobních údajů Uživatel poskytuje Správci na dobu neurčitou s tím, že svůj udělený souhlas může Uživatel kdykoliv na drese správce info@realitymix.cz odvolat. Správce garantuje Uživateli i další práva uvedené v ustanovení §11 a §21 zákoba č. 101/200 Sb. Ve znění pozdějších předpisů.
Více informací o zpracování údajů získáte zde (realitymix.cz/zasady-ochrany-osobnich-udaju)