Pronájem skladové haly o užitné ploše 895 m² v Tovární ulici v Horní Bříze
Předmětem pronájmu je skladová hala, která se nachází v uzavřeném, střeženém výrobním areálu v Horní Bříze - dojezdový čas z centra města Plzně je cca. 17 minut. Jedná se o halu postavenou kombinací betonové konstrukce a porobetonu.
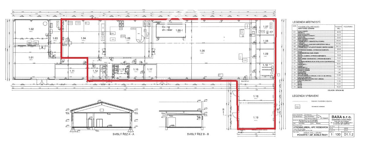
Užitná plocha haly je 895,m2, výška 3,5 m, vjezd je zajištěn průmyslovými vraty o rozměrech 3 m x 3 m. Před halou se nachází zpevněná venkovní betonová plocha, která použitelná na logistickou obsluhu haly a parkování osobních automobilů a dodávek. Hala disponuje průmyslovou betonovou podlahou a zahrnuje několik skladových prostor, kanceláří a kompletním zázemím pro zaměstnance. Půdorys haly je možné vidět mezi inzertními fotografiemi.
Venkovní zpevněná plocha má dostatečnou únosnost pro logistickou obsluhu haly nákladními auty či vozidly kategorie TIR.
Skladová hala je napojena na všechny inženýrské sítě tj. elektřinu, plyn, vodu a kanalizaci. Elektroinstalace je nyní dimenzována pro strojní výrobu cca. 3x140A. Vytápění je zajištěno plynovým kotlem s rozvodem teplé vody do radiátorů a sahar.
Pronájem haly je možný od 15.1.2026.
Areál disponuje 24 h ostrahou a vlastní trafostanicí. Zastávka autobusu a vlaku je vzdálena v dochozí vzdálenosti cca 700 m. Do areálu je bezproblémový příjezd nákladních vozidel a vozidel TIR. Zajištěn je i dostatek místa pro jejich vykládku či nakládku.
V případě dotazů, či přání si nabízené prostory prohlédnout, neváhejte kontaktovat našeho makléře pana Michala Maška.
Uživatel serveru RealityMIX.cz (dále jen „Server“) dostupného na internetové adrese (URL) https://www.realitymix.cz, který provozuje společnost DALTEN media s.r.o., se sídlem Na Harfě 916/9a, Praha 9, 190 00, IČO: 271 35 306 (dále jen „Správce“) jako provozovateli tohoto Serveru uděluje svůj výslovný souhlas v souladu s ustanovením § 5 zákona č. 101/2000 Sb. O ochraně osobních údajů a o změně některých zákonů, v platném znění (dále jen „zákon o ochraně osobních údajů“), se zpracováním uživatelem poskytnutých osobních údajů a dalších dat.
Uživatel poskytuje Správci osobní údaje v rozsahu: jméno, příjmení, e-mailová adresa, telefonický kontakt a další data, a to z důvodu projeveného zájmu o nemovitost, kde prostřednictvím služby Serveru Správce osloví Uživatel inzerenta uvedeného v detailu
nemovitosti - REALITNÍ KANCELÁŘ PUBEC s.r.o. (IČ 26331004) se zájmem o jeho služby.
Uživatel tyto osobní údaje poskytuje dobrovolně a bere na vědomí, že součástí služeb Správce, které Správce Uživateli poskytuje, je vyhledání všech Uživateli vyhovujících (dle parametrů - cena, typ nemovitosti, lokalita atd.) nemovitostí. Správce za tímto účelem provozuje aplikace Hlídací pes a newsletter. Tyto služby je možné z každého zaslaného emailu odhlásit. Souhlas se zpracováním osobních údajů Uživatel poskytuje Správci na dobu neurčitou s tím, že svůj udělený souhlas může Uživatel kdykoliv na drese správce info@realitymix.cz odvolat. Správce garantuje Uživateli i další práva uvedené v ustanovení §11 a §21 zákoba č. 101/200 Sb. Ve znění pozdějších předpisů.
Více informací o zpracování údajů získáte zde (realitymix.cz/zasady-ochrany-osobnich-udaju)