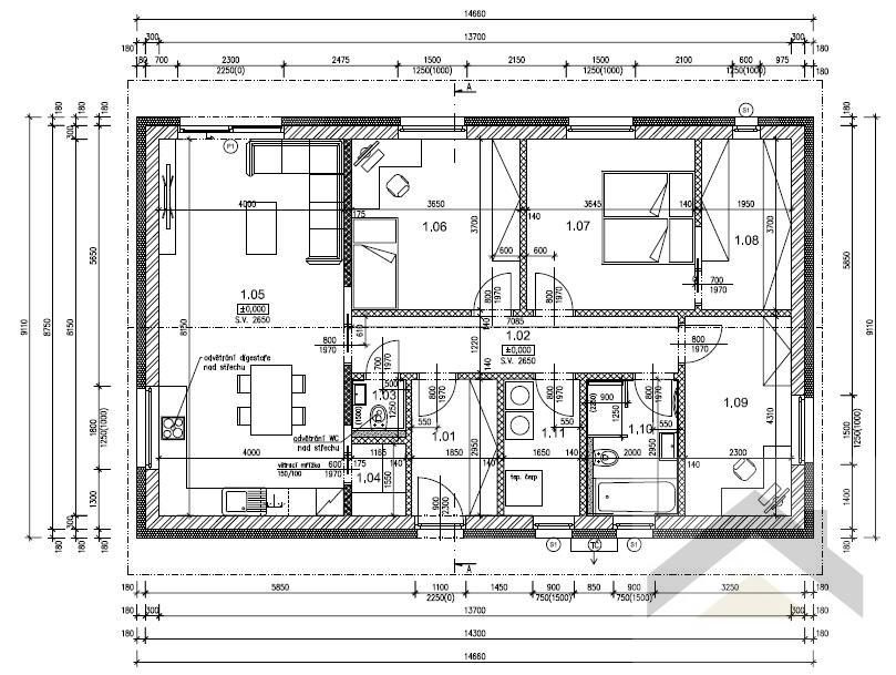
K prodeji je novostavba jednopodlažního rodinného domu (č. 1) ve and #34;městě mezi lesy and #34; - v Horním Jelení. Dům je situován na rovinatém pozemku o výměře 864 m2, v okrajové nově vznikající rezidenční čtvrti, severně od centrální části obce. Rodinný dům je půdorysného tvaru obdélníku s rozměry 14,66 m x 9,11 m. Výška objektu od úrovně 1. NP k hřebenu střechy je 5,5 m. Dům nabízí zastavěnou plochu 133,6 m2, užitnou plochu 104,6 m2 a je dispozičně řešený jako 4+kk. Skrze zádveří je vstup do chodby a následně do obývacího pokoje s kuchyní a jídelnou. Ze vstupní chodby je dále přístupná ložnice s šatnou, pokoj, pracovna, koupelna, technická místnost a WC. Z kuchyně je vstup do spíže. Pozemek bude oplocen. Dům bude předán zkolaudovaný, jeho dokončení je plánováno na červenec 2026. Okna a dveře na terasu jsou plastová s izolačním trojsklem. Střešní krytina je z keramických tašek Tondach. V obytných místnostech budou použity lepené vinylové dílce, v místnostech hygienického zázemí a technické místnosti keramická dlažba. Vnitřní dveře budou dřevěné plné s CPL povrchem osazené do dřevěných obložkových zárubní. Koupelna bude osazena sanitární technikou. Součástí domu při předání nebude kuchyňská linka. Dům je napojen na veřejný vodovod, kanalizaci a elektřinu. Vytápění domu zajistí tepelné čerpadlo vzduch-voda s podlahovým vytápěním. Pozemek je příjemně orientován, v zástavbě nízkopodlažních rodinných domů, s lesem za zády a v obci s dobrou úrovní občanské vybavenosti. Z Horního Jelení jsou skvěle dostupné Holice, Vysoké Mýto, Borohrádek a Choceň. Do 30 min. jste v Hradci Králové. Svou polohou uprostřed lesů láká ke sportu i k procházkám k blízkým rybníkům. Okolní lesy nabízí každoroční bohatou úrodu hub a borůvek.
Cena:
9 970 000 Kč
Poznámka:
cena je včetně právního servisu a provize realitní kanceláři
Pomocí naší hypoteční kalkulačky si můžete udělat orientační představu o výši měsíčních splátek hypotéky. O vše ostatní se pak postaráme my ve spolupráci s našimi obchodními partnery.
40 366 Kč
* Odhadovaná měsíční splátka vychází z výše úvěru Kč s pevnou úrokovou sazbou % po celou dobu trvání úvěru.
Uživatel serveru RealityMIX.cz (dále jen „Server“) dostupného na internetové adrese (URL) https://www.realitymix.cz, který provozuje společnost DALTEN media s.r.o., se sídlem Na Harfě 916/9a, Praha 9, 190 00, IČO: 271 35 306 (dále jen „Správce“) jako provozovateli tohoto Serveru uděluje svůj výslovný souhlas v souladu s ustanovením § 5 zákona č. 101/2000 Sb. O ochraně osobních údajů a o změně některých zákonů, v platném znění (dále jen „zákon o ochraně osobních údajů“), se zpracováním uživatelem poskytnutých osobních údajů a dalších dat.
Uživatel poskytuje Správci osobní údaje v rozsahu: jméno, příjmení, e-mailová adresa, telefonický kontakt a další data, a to z důvodu projeveného zájmu o nemovitost, kde prostřednictvím služby Serveru Správce osloví Uživatel inzerenta uvedeného v detailu
nemovitosti - Mgr. Monika Kindlová (IČ 74945360) se zájmem o jeho služby.
Uživatel tyto osobní údaje poskytuje dobrovolně a bere na vědomí, že součástí služeb Správce, které Správce Uživateli poskytuje, je vyhledání všech Uživateli vyhovujících (dle parametrů - cena, typ nemovitosti, lokalita atd.) nemovitostí. Správce za tímto účelem provozuje aplikace Hlídací pes a newsletter. Tyto služby je možné z každého zaslaného emailu odhlásit. Souhlas se zpracováním osobních údajů Uživatel poskytuje Správci na dobu neurčitou s tím, že svůj udělený souhlas může Uživatel kdykoliv na drese správce info@realitymix.cz odvolat. Správce garantuje Uživateli i další práva uvedené v ustanovení §11 a §21 zákoba č. 101/200 Sb. Ve znění pozdějších předpisů.
Více informací o zpracování údajů získáte zde (realitymix.cz/zasady-ochrany-osobnich-udaju)