Rodinný dům po rekonstrukci, až 3 bytové jednotky, garáž
NOVÁ CENA! Dům, který je reálně dělitelný až na 3 samostatné bytové jednotky.
Hledáte prostorný, technicky kvalitní dům, který nabízí okamžité bydlení, možnost pronájmu i podnikání, a to vše s nízkými provozními náklady?
Pak je tento dům v obci Horní Moštěnice přesně pro vás.
Základní informace
• vícegenerační rodinný dům
• užitná plocha cca 350 m²
• pozemek cca 781 m²
• slepá ulice – klid, soukromí, minimum provozu
• energetická náročnost B – velmi úsporná
• dům po rozsáhlé rekonstrukci
Dispozice – hlavní konkurenční výhoda
Dům je reálně dělitelný až na 3 samostatné bytové jednotky, případně ideální pro kombinaci bydlení + podnikání.
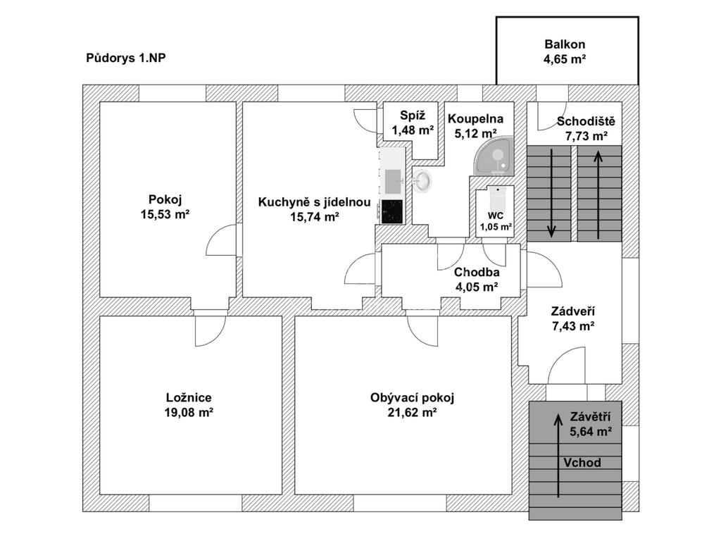
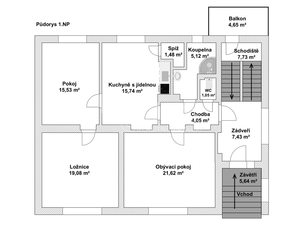
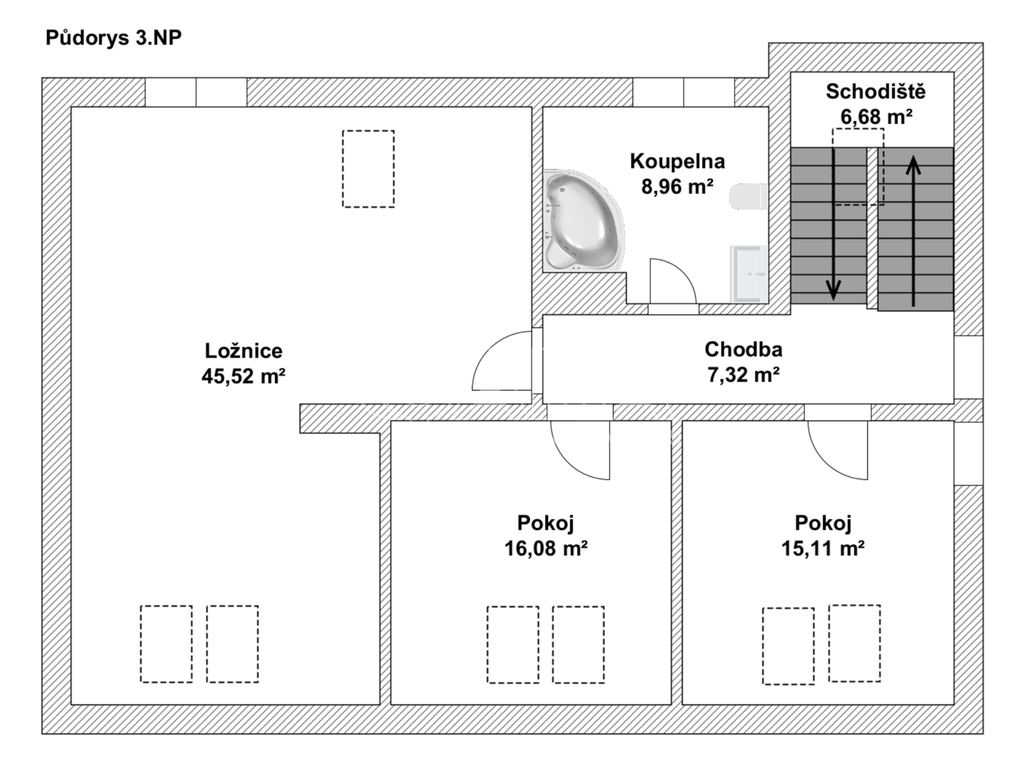
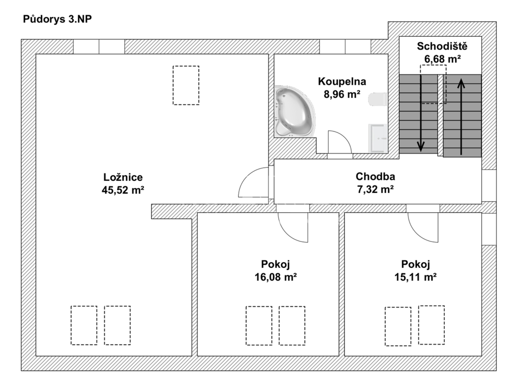
Přízemí – byt 3+1
• kuchyně se špajzem
• tři obytné pokoje
• koupelna se sprchovým koutem
• samostatné WC
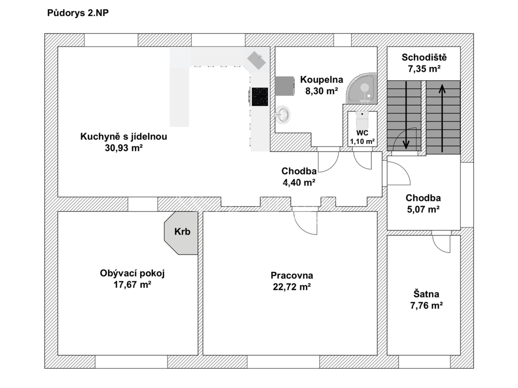
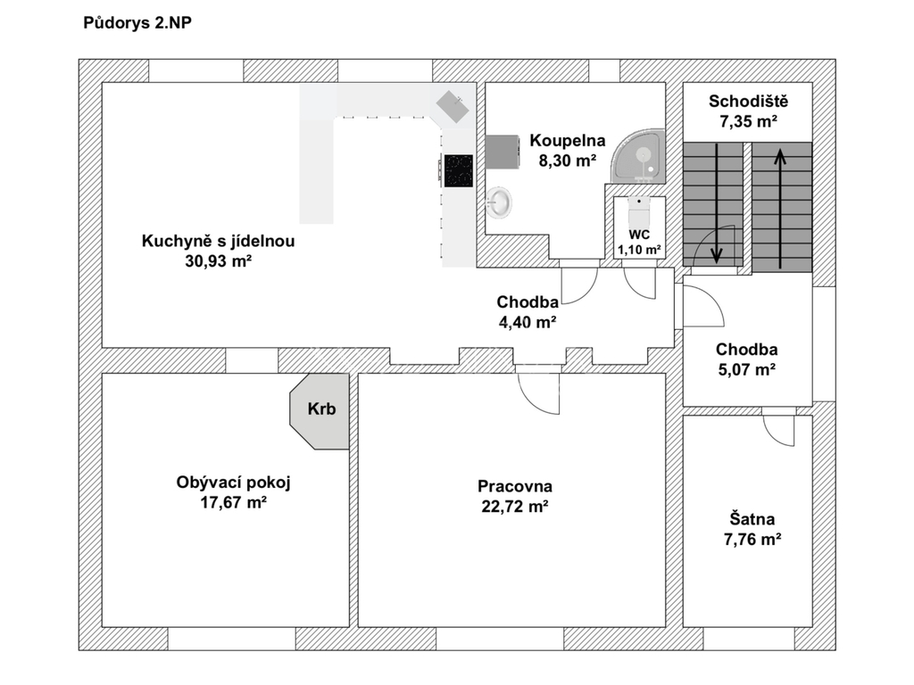
1. patro – byt 3+kk
• prostorná kuchyně s jídelnou
• obývací pokoj s krbem
• šatna
• koupelna se sprchovým koutem
• samostatné WC
Podkroví – samostatná bytová jednotka / mezonet
• dva samostatné pokoje
• plus velký pokoj s přípravou na kuchyňský kout
• koupelna s vanou, wc
Ideální řešení pro:
• vícegenerační bydlení
• samostatný pronájem bytů
• kanceláře, služby
• sídlo firmy s bydlením
Technický stav a vybavení
• kompletní rekonstrukce rozvodů (elektřina, voda, odpady)
• tepelné čerpadlo (2023)
• fotovoltaika (2023)
• zateplená fasáda (12–15 cm)
• masivní zdivo cca 50 cm
• zateplené sklepy i štíty
• pálená střešní krytina Tondach
• plastová okna s dvojskly
• internet + datové rozvody v každé místnosti
Výsledkem jsou velmi nízké provozní náklady, a to i vzhledem k velikosti domu.
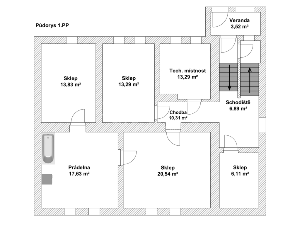
Sklep a hospodářské zázemí
• sklepní prostory cca 100 m²
• technická místnost
• prádelna
• sklad
• výborné zázemí pro provoz domu i podnikání
Díky velkorysé ploše se zde navíc přímo nabízí možnost vybudování domácí posilovny nebo wellness zóny.
Exteriér a pozemek
• uzavřený dvůr – maximální soukromí
• garáž
• sklad a hospodářská místnost
• zahrada 258m2
• bezproblémové parkování přímo na pozemku
Lokalita
• plná občanská vybavenost v obci
• školka, škola, lékař, obchody
• vlak, autobus i MHD v docházkové vzdálenosti
• Přerov pár minut jízdy, dobrá dostupnost z Olomouce – a s novou dálnicí ještě lepší
Potenciál
• k rodinnému bydlení
• možnost samostatného pronájmu jednotlivých bytů
• vhodné pro investory, podnikatele i kombinaci bydlení + příjem
• energetická třída B = dlouhodobě udržitelný provoz
Velký, energeticky úsporný vícegenerační dům po rekonstrukci, který nabízí okamžité bydlení, silný investiční potenciál a flexibilní využití v klidné lokalitě.
V případě zájmu o více informací, příp. o prohlídku mne prosím kontaktujte. Cena na požádání.
Cena:
Cena na vyžádání
Poznámka:
cena u makléře
Číslo zakázky:
REALITYMIX-18734
Podrobné informace
Poloha objektu:řadový
Druh objektu:cihlová
Stav objektu:velmi dobrý
Počet podlaží objektu:3
Typ domu:patrový
Zastavěná plocha:148 m²
Plocha parcely:781 m²
Zahrada:258 m²
Užitná plocha:350 m²
Sklep:100 m²
Doprava:vlak, dálnice, silnice, autobus
Komunikace:betonová
Voda:Voda - dálkový vodovod
Telekomunikace:Internet
Plyn:Plynovod
Odpad:Kanalizace
Energetická náročnost budovy:B - Velmi úsporná
Energetický ukazatel podle vyhlášky:č. 264/2020 Sb.
Uživatel serveru RealityMIX.cz (dále jen „Server“) dostupného na internetové adrese (URL) https://www.realitymix.cz, který provozuje společnost DALTEN media s.r.o., se sídlem Na Harfě 916/9a, Praha 9, 190 00, IČO: 271 35 306 (dále jen „Správce“) jako provozovateli tohoto Serveru uděluje svůj výslovný souhlas v souladu s ustanovením § 5 zákona č. 101/2000 Sb. O ochraně osobních údajů a o změně některých zákonů, v platném znění (dále jen „zákon o ochraně osobních údajů“), se zpracováním uživatelem poskytnutých osobních údajů a dalších dat.
Uživatel poskytuje Správci osobní údaje v rozsahu: jméno, příjmení, e-mailová adresa, telefonický kontakt a další data, a to z důvodu projeveného zájmu o nemovitost, kde prostřednictvím služby Serveru Správce osloví Uživatel inzerenta uvedeného v detailu
nemovitosti - QARA s.r.o. (IČ 01740113) se zájmem o jeho služby. Tato společnost je součástí seskupení/sítě/franšízového modelu realitních kanceláří, jejich seznam můžete zobrazit kliknutím na tento odkaz.
QARA s.r.o. Ostrava (IČ 01740113) , QARA s.r.o. Brno (IČ 01740113) , QARA s.r.o. (IČ 01740113)
Uživatel tyto osobní údaje poskytuje dobrovolně a bere na vědomí, že součástí služeb Správce, které Správce Uživateli poskytuje, je vyhledání všech Uživateli vyhovujících (dle parametrů - cena, typ nemovitosti, lokalita atd.) nemovitostí. Správce za tímto účelem provozuje aplikace Hlídací pes a newsletter. Tyto služby je možné z každého zaslaného emailu odhlásit. Souhlas se zpracováním osobních údajů Uživatel poskytuje Správci na dobu neurčitou s tím, že svůj udělený souhlas může Uživatel kdykoliv na drese správce info@realitymix.cz odvolat. Správce garantuje Uživateli i další práva uvedené v ustanovení §11 a §21 zákoba č. 101/200 Sb. Ve znění pozdějších předpisů.
Více informací o zpracování údajů získáte zde (realitymix.cz/zasady-ochrany-osobnich-udaju)